901 S Atlantic Avenue #202 Ormond Beach, FL 32176
For Sale MLS# NS1085173
2 beds 3 baths 1,854 sq ft Condo
Details for 901 S Atlantic Avenue #202
MLS# NS1085173
Description for 901 S Atlantic Avenue #202, Ormond Beach, FL, 32176
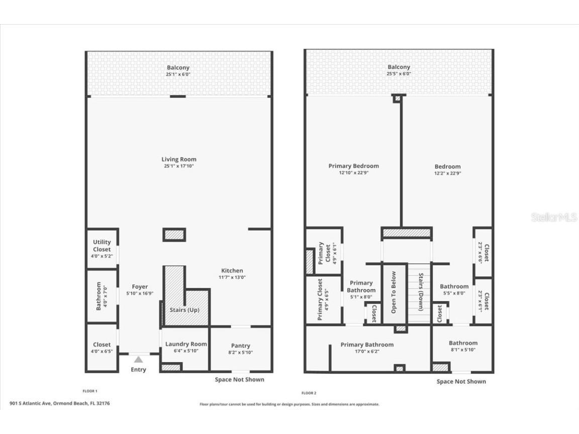
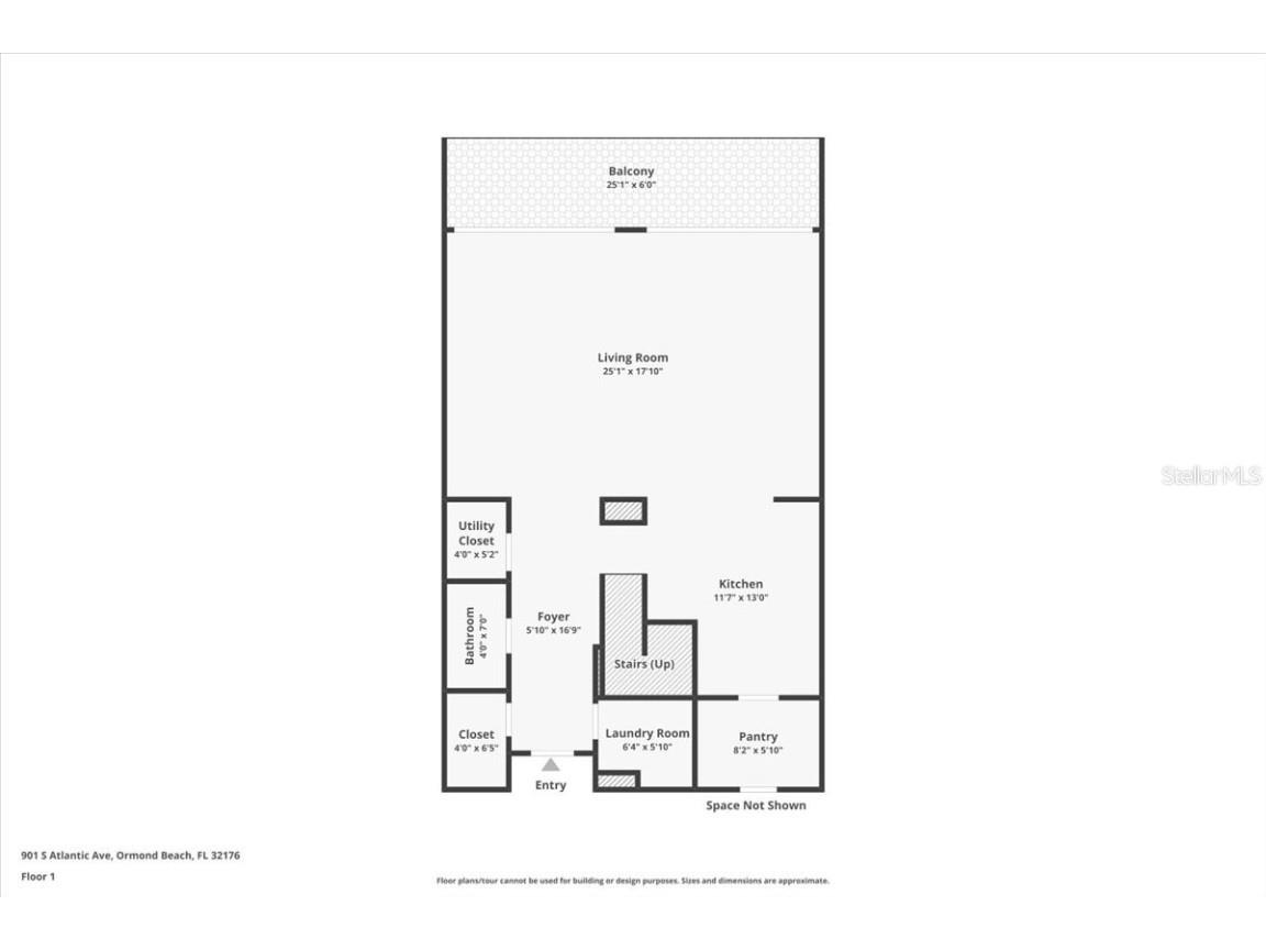
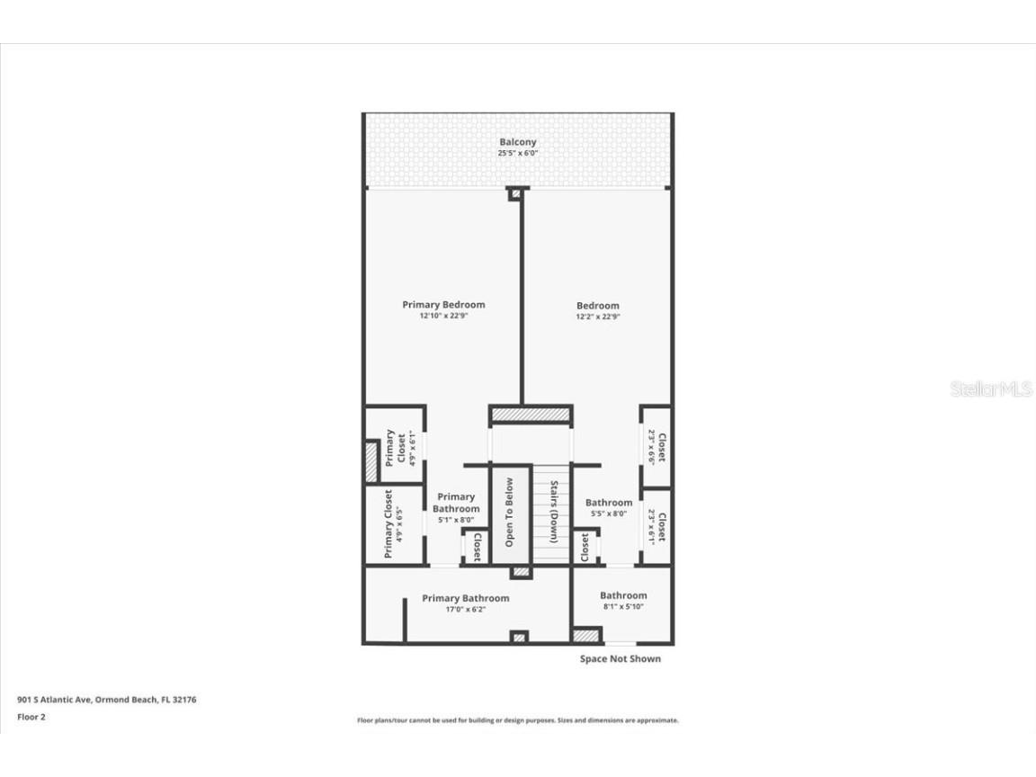
Stunning Intracoastal End Unit with Bridge Views. Enjoy breathtaking views of the Veterans Memorial Bridge right from your primary bedroom in this beautifully updated end unit. The spacious primary retreat features three extra storm-rated windows for added light and protection. Both bathrooms have been fully renovated with modern, designer finishes—including a sleek walk-in shower. The chef's kitchen impresses with a custom domed ceiling, granite countertops, tile flooring, a ceiling fan, and a breakfast bar perfect for casual dining. Elegant touches continue in the dining area with a crystal chandelier and matching sconces. The second bedroom includes an upgraded closet with sliding glass doors and custom built-in drawers (one suite even includes walk-in closets). A rare combination of style, comfort, and a prime Intracoastal location—this home truly stands out. This home boasts tile flooring throughout, a full laundry room in-unit, and exceptional storage options with multiple walk-in and utility closets. Step outside onto two expansive private balconiesone on each floorproviding beautiful views and the perfect space to relax and unwind. Community amenities include a sparkling oceanfront pool and social room. One-month minimum rental policy makes this ideal for full-time residents, snowbirds, or investors alike.
Listing Information
Property Type: Residential, Condominium
Status: Active
Bedrooms: 2
Bathrooms: 3
Lot Size: 2.84 Acres
Square Feet: 1,854 sq ft
Year Built: 1980
Stories: 2 Story
Construction: Block,Concrete,Stucco
Subdivision: Aliki Atrium Condo
Foundation: Slab
County: Volusia
Room Information
Main Floor
Dining Room: 13x11
Living Room: 17x25
Kitchen: 13x11
Upper Floor
Bedroom 2: 22x12
Primary Bedroom: 22x12
Bathrooms
Full Baths: 2
1/2 Baths: 1
Additonal Room Information
Laundry: Inside, Laundry Room
Interior Features
Appliances: Microwave, Dishwasher, Range, Refrigerator
Flooring: Tile
Additional Interior Features: Split Bedrooms, Ceiling Fan(s), Open Floorplan, Upper Level Primary, Crown Molding
Utilities
Water: Public
Sewer: Public Sewer
Other Utilities: Electricity Available
Cooling: Ceiling Fan(s), Central Air
Heating: Central, Electric
Exterior / Lot Features
Parking Description: Assigned
Roof: Other
Pool: Association, Community
Lot View: Beach,Ocean,Water
Additional Exterior/Lot Features: Balcony, Balcony
Waterfront Details
Water Front Features: Beach Access, Gulf Access, Ocean Access
Community Features
Community Features: Pool
Association Amenities: Maintenance Grounds, Pool, Cable TV, Elevator(s)
HOA Dues Include: Trash, Water, Cable TV, Security, Sewer, Insurance, Maintenance Grounds, Internet, Association Management, Pest Control, Maintenance Structure, Pool(s)
Homeowners Association: Yes
HOA Dues: $1,077 / Monthly
Driving Directions
From Granada, turn right on A1A. Building on left side.
Financial Considerations
Terms: Cash,Conventional
Tax/Property ID: 4224-03-00-2020
Tax Amount: 5911
Tax Year: 2024
A broker reciprocity listing courtesy: RE/MAX SIGNATURE
Based on information provided by Stellar MLS as distributed by the MLS GRID. Information from the Internet Data Exchange is provided exclusively for consumers’ personal, non-commercial use, and such information may not be used for any purpose other than to identify prospective properties consumers may be interested in purchasing. This data is deemed reliable but is not guaranteed to be accurate by Edina Realty, Inc., or by the MLS. Edina Realty, Inc., is not a multiple listing service (MLS), nor does it offer MLS access.
Copyright 2026 Stellar MLS as distributed by the MLS GRID. All Rights Reserved.
Payment Calculator
Interest rate and annual percentage rate (APR) are based on current market conditions, are for informational purposes only, are subject to change without notice and may be subject to pricing add-ons related to property type, loan amount, loan-to-value, credit score and other variables. Estimated closing costs used in the APR calculation are assumed to be paid by the borrower at closing. If the closing costs are financed, the loan, APR and payment amounts will be higher. If the down payment is less than 20%, mortgage insurance may be required and could increase the monthly payment and APR. Contact us for details. Additional loan programs may be available. Accuracy is not guaranteed, and all products may not be available in all borrower's geographical areas and are based on their individual situation. This is not a credit decision or a commitment to lend.
Sales History & Tax Summary for 901 S Atlantic Avenue #202
Sales History
| Date | Price | Change |
|---|---|---|
| Currently not available. | ||
Tax Summary
| Tax Year | Estimated Market Value | Total Tax |
|---|---|---|
| Currently not available. | ||
Data powered by ATTOM Data Solutions. Copyright© 2026. Information deemed reliable but not guaranteed.
Schools
Schools nearby 901 S Atlantic Avenue #202
| Schools in attendance boundaries | Grades | Distance | Rating |
|---|---|---|---|
| Loading... | |||
| Schools nearby | Grades | Distance | Rating |
|---|---|---|---|
| Loading... | |||
Data powered by ATTOM Data Solutions. Copyright© 2026. Information deemed reliable but not guaranteed.
The schools shown represent both the assigned schools and schools by distance based on local school and district attendance boundaries. Attendance boundaries change based on various factors and proximity does not guarantee enrollment eligibility. Please consult your real estate agent and/or the school district to confirm the schools this property is zoned to attend. Information is deemed reliable but not guaranteed.
SchoolDigger ® Rating
The SchoolDigger rating system is a 1-5 scale with 5 as the highest rating. SchoolDigger ranks schools based on test scores supplied by each state's Department of Education. They calculate an average standard score by normalizing and averaging each school's test scores across all tests and grades.
Coming soon properties will soon be on the market, but are not yet available for showings.