9012 14th Avenue S Bloomington, MN 55425
Pending MLS# 6826482
4 beds 2 baths 1,565 sq ft Single Family
Details for 9012 14th Avenue S
MLS# 6826482
Description for 9012 14th Avenue S, Bloomington, MN, 55425
Welcome home to this move-in ready single-level rambler with a finished basement, ideally located on a quiet, established street in Bloomington. This home offers a wonderful, functional layout filled with natural light from large windows throughout, featuring an eat-in kitchen with additional dining space in the living room near the kitchen entry, making it ideal for everyday living and entertaining. The main level includes three bedrooms and a full bathroom, while the finished lower level adds valuable living space with a fourth bedroom and second bathroom; the seller added this bedroom with HVAC ductwork, new lighting, and a legal egress window. Fresh paint throughout gives the home a clean, turnkey feel, and there is no shortage of storage space in the home, basement, and oversized detached two-car garage. Outside, enjoy a huge, flat, fully fenced backyard with a storage shed and back patio, perfect for relaxing or hosting gatherings, all in a convenient Bloomington location close to parks, shopping, dining, and major commuter routes.
Listing Information
Property Type: Residential, Single Family
Status: Pending
Bedrooms: 4
Bathrooms: 2
Lot Size: 0.26 Acres
Square Feet: 1,565 sq ft
Year Built: 1954
Foundation: 1,012 sq ft
Garage: Yes
Stories: 1 Story
Subdivision: Hohag 2nd Add
County: Hennepin
Days On Market: 42
Construction Status: Previously Owned
School Information
District: 271 - Bloomington
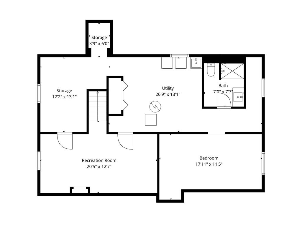
Room Information
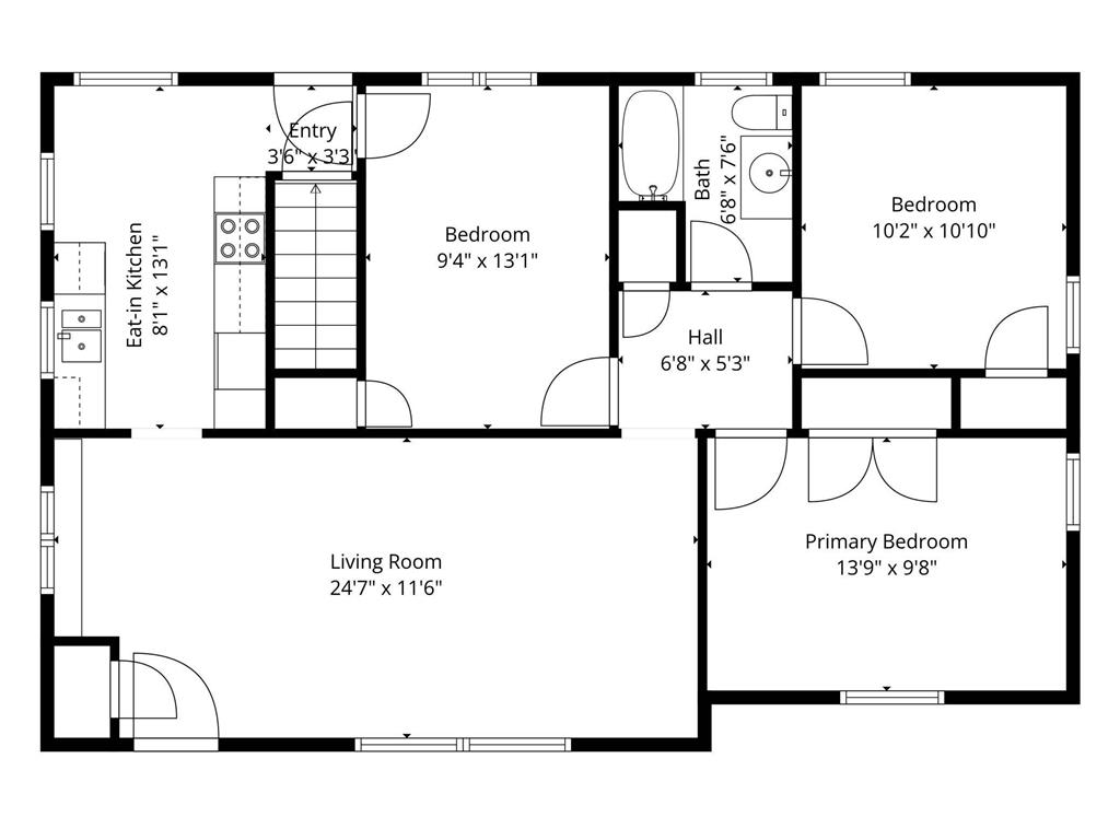
Main Floor
Bedroom 1: 14x10
Bedroom 2: 11x10
Bedroom 3: 13x9
Dining Room: 8x12
Kitchen: 13x8
Living Room: 16x12
Lower Floor
Bedroom 4: 18x11
Family Room: 20x13
Laundry:
Storage Room: 13x12
Bathrooms
Full Baths: 1
3/4 Baths: 1
Additonal Room Information
Family: 2 or More,Lower Level,Main Level
Dining: Breakfast Area,Eat In Kitchen,Living/Dining Room
Laundry: In Basement, Laundry Room
Bath Description: 3/4 Basement,Main Floor Full Bath
Interior Features
Square Footage above: 1,012 sq ft
Square Footage below: 553 sq ft
Appliances: Gas Water Heater, Dishwasher, Dryer, Washer, Range, Refrigerator, Microwave
Basement: Storage Space, Concrete Block, Full, Egress Windows, Finished (Livable)
Additional Interior Features: Ceiling Fan(s), Hardwood Floors, Kitchen Window, Tile Floors, Washer/Dryer Hookup, 3 BR on One Level, Main Floor Bedroom, Main Floor Primary
Utilities
Water: City Water/Connected
Sewer: City Sewer/Connected
Cooling: Central
Heating: Forced Air, Natural Gas
Exterior / Lot Features
Garage Spaces: 2
Parking Description: Garage Door Opener, Driveway - Concrete, Detached Garage, Garage Sq Ft - 528.0
Exterior: Wood, Cedar
Roof: Asphalt Shingles, Pitched
Lot Dimensions: 58x135
Zoning: Residential-Single Family
Fencing: Chain Link, Full
Additional Exterior/Lot Features: Patio, Tree Coverage - Light, Public Transit (w/in 6 blks), Road Frontage - Paved Streets, City
Out Buildings: Shed - Storage
Driving Directions
Portland Ave to East on 90th Street to South on 14th Ave S to property.
Financial Considerations
Other Annual Tax: $3,569
Tax/Property ID: 1102724420078
Tax Amount: 3569
Tax Year: 2025
HomeStead Description: Homesteaded
A broker reciprocity listing courtesy: RE/MAX Results
The data relating to real estate for sale on this web site comes in part from the Broker Reciprocity℠ Program of the Regional Multiple Listing Service of Minnesota, Inc. Real estate listings held by brokerage firms other than Edina Realty, Inc. are marked with the Broker Reciprocity℠ logo or the Broker Reciprocity℠ thumbnail and detailed information about them includes the name of the listing brokers. Edina Realty, Inc. is not a Multiple Listing Service (MLS), nor does it offer MLS access. This website is a service of Edina Realty, Inc., a broker Participant of the Regional Multiple Listing Service of Minnesota, Inc. IDX information is provided exclusively for consumers personal, non-commercial use and may not be used for any purpose other than to identify prospective properties consumers may be interested in purchasing. Open House information is subject to change without notice. Information deemed reliable but not guaranteed.
Copyright 2026 Regional Multiple Listing Service of Minnesota, Inc. All Rights Reserved.
Sales History & Tax Summary for 9012 14th Avenue S
Sales History
| Date | Price | |
|---|---|---|
| Currently not available. | ||
Tax Summary
| Tax Year | Estimated Market Value | Total Tax |
|---|---|---|
| Currently not available. | ||
Data powered by ATTOM Data Solutions. Copyright© 2026. Information deemed reliable but not guaranteed.
Schools
Schools nearby 9012 14th Avenue S
| Schools in attendance boundaries | Grades | Distance | Rating |
|---|---|---|---|
| Loading... | |||
| Schools nearby | Grades | Distance | Rating |
|---|---|---|---|
| Loading... | |||
Data powered by ATTOM Data Solutions. Copyright© 2026. Information deemed reliable but not guaranteed.
The schools shown represent both the assigned schools and schools by distance based on local school and district attendance boundaries. Attendance boundaries change based on various factors and proximity does not guarantee enrollment eligibility. Please consult your real estate agent and/or the school district to confirm the schools this property is zoned to attend. Information is deemed reliable but not guaranteed.
SchoolDigger ® Rating
The SchoolDigger rating system is a 1-5 scale with 5 as the highest rating. SchoolDigger ranks schools based on test scores supplied by each state's Department of Education. They calculate an average standard score by normalizing and averaging each school's test scores across all tests and grades.
Coming soon properties will soon be on the market, but are not yet available for showings.