$299,999
9024 Waterbird Way Brooksville, FL 34613
For Sale MLS# L4960208
2 beds 2 baths 1,161 sq ft Single Family
Details for 9024 Waterbird Way
MLS# L4960208
Description for 9024 Waterbird Way, Brooksville, FL, 34613
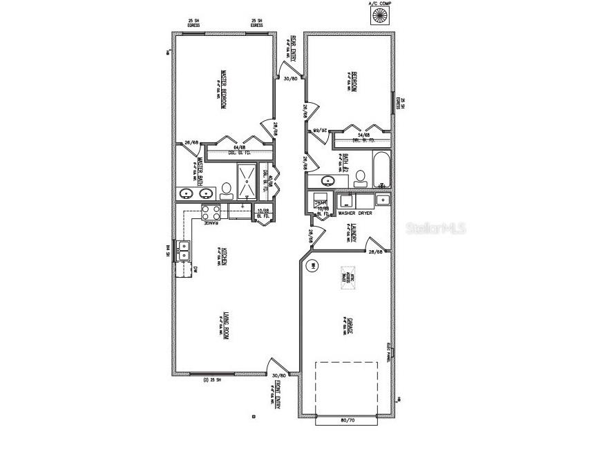
Under Construction. This brand-new 2 bedroom, 2 bath home offers 1,161 sq ft of modern living with an open great room, stylish kitchen with granite counters and stainless steel appliances. The primary suite features a spacious layout and ensuite bath, while the other bedroom sits near the second full bath. Enjoy a covered entry, rear porch, and a 1-car garage on a generous lot with no HOA or CDD. Located near Cortez Blvd with quick access to shopping, dining, parks, and the Suncoast Parkway for an easy Tampa commute.
Listing Information
Property Type: Residential, Single Family Residence
Status: Active
Bedrooms: 2
Bathrooms: 2
Lot Size: 0.32 Acres
Square Feet: 1,161 sq ft
Year Built: 2025
Garage: Yes
Stories: 1 Story
Construction: HardiPlank Type
Construction Display: New Construction
Subdivision: Voss Oak Lake Estate
Builder: Coastal Pointe Construction LLC
Foundation: Block,Slab
County: Hernando
Construction Status: Under Construction
Room Information
Main Floor
Primary Bedroom:
Kitchen:
Living Room:
Bathrooms
Full Baths: 2
Additonal Room Information
Laundry: Laundry Room
Interior Features
Appliances: Dishwasher, Microwave, Range, Refrigerator
Flooring: Luxury Vinyl
Additional Interior Features: Ceiling Fan(s)
Utilities
Water: Well
Sewer: Aerobic Septic
Other Utilities: Municipal Utilities
Cooling: Central Air, Ceiling Fan(s)
Heating: Central
Exterior / Lot Features
Attached Garage: Attached Garage
Garage Spaces: 1
Roof: Shingle
Driving Directions
Take the Suncoast Parkway (FL-589) north toward Brooksville. Exit at FL-50/Cortez Blvd and head west. Turn right onto Nightwalker Road, then turn right onto Waterbird Way. The home will be on your left.
Financial Considerations
Tax/Property ID: R26-222-17-3760-0000-0820
Tax Amount: 352.58
Tax Year: 2025
A broker reciprocity listing courtesy: DJ DELGADO MANAGEMENT GROUP
Based on information provided by Stellar MLS as distributed by the MLS GRID. Information from the Internet Data Exchange is provided exclusively for consumers’ personal, non-commercial use, and such information may not be used for any purpose other than to identify prospective properties consumers may be interested in purchasing. This data is deemed reliable but is not guaranteed to be accurate by Edina Realty, Inc., or by the MLS. Edina Realty, Inc., is not a multiple listing service (MLS), nor does it offer MLS access.
Copyright 2026 Stellar MLS as distributed by the MLS GRID. All Rights Reserved.
Payment Calculator
Interest rate and annual percentage rate (APR) are based on current market conditions, are for informational purposes only, are subject to change without notice and may be subject to pricing add-ons related to property type, loan amount, loan-to-value, credit score and other variables. Estimated closing costs used in the APR calculation are assumed to be paid by the borrower at closing. If the closing costs are financed, the loan, APR and payment amounts will be higher. If the down payment is less than 20%, mortgage insurance may be required and could increase the monthly payment and APR. Contact us for details. Additional loan programs may be available. Accuracy is not guaranteed, and all products may not be available in all borrower's geographical areas and are based on their individual situation. This is not a credit decision or a commitment to lend.
Sales History & Tax Summary for 9024 Waterbird Way
Sales History
| Date | Price | |
|---|---|---|
| Currently not available. | ||
Tax Summary
| Tax Year | Estimated Market Value | Total Tax |
|---|---|---|
| Currently not available. | ||
Data powered by ATTOM Data Solutions. Copyright© 2026. Information deemed reliable but not guaranteed.
Schools
Schools nearby 9024 Waterbird Way
| Schools in attendance boundaries | Grades | Distance | Rating |
|---|---|---|---|
| Loading... | |||
| Schools nearby | Grades | Distance | Rating |
|---|---|---|---|
| Loading... | |||
Data powered by ATTOM Data Solutions. Copyright© 2026. Information deemed reliable but not guaranteed.
The schools shown represent both the assigned schools and schools by distance based on local school and district attendance boundaries. Attendance boundaries change based on various factors and proximity does not guarantee enrollment eligibility. Please consult your real estate agent and/or the school district to confirm the schools this property is zoned to attend. Information is deemed reliable but not guaranteed.
SchoolDigger ® Rating
The SchoolDigger rating system is a 1-5 scale with 5 as the highest rating. SchoolDigger ranks schools based on test scores supplied by each state's Department of Education. They calculate an average standard score by normalizing and averaging each school's test scores across all tests and grades.
Coming soon properties will soon be on the market, but are not yet available for showings.