$225,000
9024 White Sage Loop Lakewood Ranch, FL 34202
For Sale MLS# TB8465033
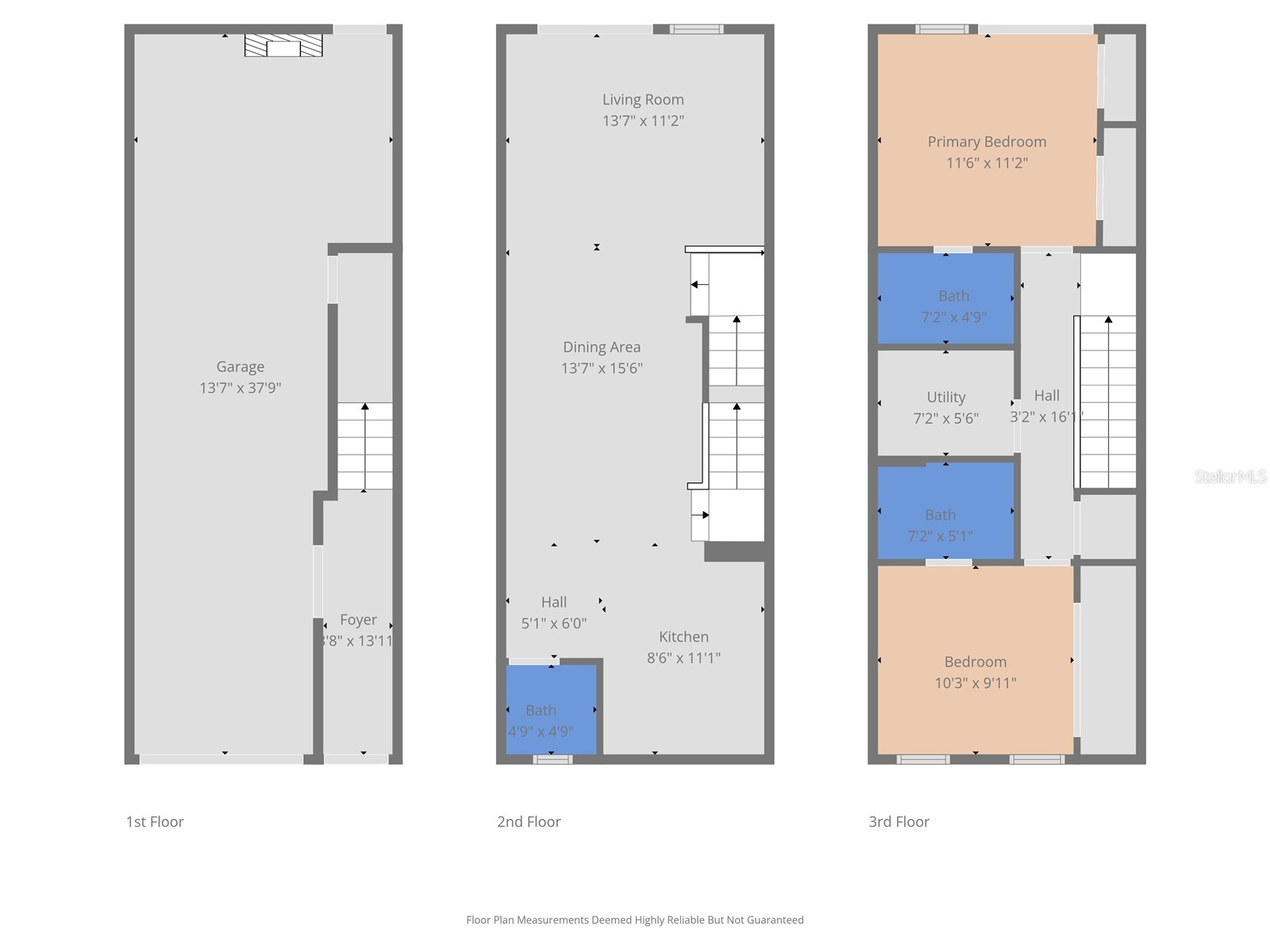
2 beds 3 baths 1,064 sq ft Townhouse/Twinhome
Details for 9024 White Sage Loop
MLS# TB8465033
Description for 9024 White Sage Loop, Lakewood Ranch, FL, 34202
One or more photo(s) has been virtually staged. Welcome to effortless Lakewood Ranch living in the gated Willowbrook community of Lakewood Ranch. This move-in-ready 2-bedroom, 2.5-bath, 3-story townhouse offers a rare combination of privacy, upgrades, and breathtaking unobstructed pond and preserve views—with no rear neighbors and no future development behind you. The main living level features an open-concept layout with an updated kitchen, dining, and living area that flows seamlessly to a screened lanai overlooking the water and nature preserve—perfect for morning coffee or sunset unwinding. Upstairs, you’ll find two spacious primary suites, each with generous closet space, separated by a full laundry room for maximum privacy and convenience. This home boasts three lanais—one on each level, with two screened in, allowing you to enjoy Florida living from multiple vantage points. Additional highlights include fresh interior and exterior paint, newer carpet, hurricane-rated windows and doors, and a finished tandem garage with coated floors and attic storage. Campers and boats are permitted inside the garage, adding flexibility rarely found in townhome living. Recent upgrades provide peace of mind, including an oversized HVAC system (5 years), roof (4 years), glass-front refrigerator (3 years), range and microwave (1 year), disposal (2020), and Samsung washer/dryer (2019). Multiple TVs and mounts are included—featuring a 75” living room TV—making this home truly turnkey. Willowbrook offers NO CDD fees, and monthly dues cover internet, cable, water, sewer, trash, pest control, termite prevention, exterior maintenance and painting, plus access to the resort-style pool and clubhouse. The HOA has recently implemented several community-wide improvements, including a three-year rotation power-washing program for all buildings, pool resurfacing scheduled for this year as a long-term 20-year investment, and entry and monument paver upgrades also being completed this year, further enhancing curb appeal and community value. Surrounded by the Braden River and nature preserves, Willowbrook offers over 2 miles of walking trails and fishing opportunities. Ideally located just minutes from UTC Mall, Lakewood Ranch Main Street, dining, entertainment, and I-75, this home delivers the perfect blend of low-maintenance living, natural beauty, and everyday convenience.
Listing Information
Property Type: Residential, Townhouse
Status: Active
Bedrooms: 2
Bathrooms: 3
Square Feet: 1,064 sq ft
Year Built: 2009
Garage: Yes
Stories: 2 Story
Construction: Stucco
Subdivision: Willowbrook Ph 9
Foundation: Slab
County: Manatee
School Information
Elementary: Robert E Willis Elementary
Middle: Braden River Middle
High: Lakewood Ranch High
Room Information
Upper Floor
Kitchen:
Living Room:
Bedroom 2:
Primary Bedroom:
Bathrooms
Full Baths: 2
1/2 Baths: 1
Additonal Room Information
Laundry: Electric Dryer Hookup, Laundry Room
Interior Features
Appliances: Washer, Range, Refrigerator, Microwave, Dishwasher, Disposal, Dryer
Flooring: Carpet,Luxury Vinyl
Additional Interior Features: Ceiling Fan(s), Tray Ceiling(s), Upper Level Primary
Utilities
Water: Public
Sewer: Public Sewer
Other Utilities: Cable Connected,Electricity Connected,Municipal Utilities,Phone Available,Underground Utilities,Water Connected
Cooling: Central Air, Ceiling Fan(s)
Heating: Central
Exterior / Lot Features
Attached Garage: Attached Garage
Garage Spaces: 2
Parking Description: Garage, Off Street, Covered, Garage Door Opener, Parking Pad
Roof: Shingle
Pool: Community
Lot View: Pond,Trees/Woods,Water
Additional Exterior/Lot Features: Sprinkler/Irrigation, Balcony, Balcony, Covered, Screened, Landscaped, Buyer Approval Required, Conservation Area
Waterfront Details
Water Front Features: Pond
Community Features
Community Features: Fishing, Community Mailbox, Pool, Sidewalks
Association Amenities: Gated, Trail(s), Clubhouse
HOA Dues Include: Cable TV, Trash, Water, Recreation Facilities, Sewer, Maintenance Structure, Insurance, Maintenance Grounds, Reserve Fund, Pool(s), Association Management
Driving Directions
From I-75, take Exit 213 (University Parkway) east. Turn right onto Market Street, then left onto Town Center Parkway. Continue to White Sage Loop and enter the Willowbrook community gate. Follow White Sage Loop to property.
Financial Considerations
Terms: Cash,Conventional,FHA,VA Loan
Tax/Property ID: 1918561009
Tax Amount: 2423.61
Tax Year: 2025
A broker reciprocity listing courtesy: LPT REALTY, LLC.
Based on information provided by Stellar MLS as distributed by the MLS GRID. Information from the Internet Data Exchange is provided exclusively for consumers’ personal, non-commercial use, and such information may not be used for any purpose other than to identify prospective properties consumers may be interested in purchasing. This data is deemed reliable but is not guaranteed to be accurate by Edina Realty, Inc., or by the MLS. Edina Realty, Inc., is not a multiple listing service (MLS), nor does it offer MLS access.
Copyright 2026 Stellar MLS as distributed by the MLS GRID. All Rights Reserved.
Payment Calculator
Interest rate and annual percentage rate (APR) are based on current market conditions, are for informational purposes only, are subject to change without notice and may be subject to pricing add-ons related to property type, loan amount, loan-to-value, credit score and other variables. Estimated closing costs used in the APR calculation are assumed to be paid by the borrower at closing. If the closing costs are financed, the loan, APR and payment amounts will be higher. If the down payment is less than 20%, mortgage insurance may be required and could increase the monthly payment and APR. Contact us for details. Additional loan programs may be available. Accuracy is not guaranteed, and all products may not be available in all borrower's geographical areas and are based on their individual situation. This is not a credit decision or a commitment to lend.
Sales History & Tax Summary for 9024 White Sage Loop
Sales History
| Date | Price | |
|---|---|---|
| Currently not available. | ||
Tax Summary
| Tax Year | Estimated Market Value | Total Tax |
|---|---|---|
| Currently not available. | ||
Data powered by ATTOM Data Solutions. Copyright© 2026. Information deemed reliable but not guaranteed.
Schools
Schools nearby 9024 White Sage Loop
| Schools in attendance boundaries | Grades | Distance | Rating |
|---|---|---|---|
| Loading... | |||
| Schools nearby | Grades | Distance | Rating |
|---|---|---|---|
| Loading... | |||
Data powered by ATTOM Data Solutions. Copyright© 2026. Information deemed reliable but not guaranteed.
The schools shown represent both the assigned schools and schools by distance based on local school and district attendance boundaries. Attendance boundaries change based on various factors and proximity does not guarantee enrollment eligibility. Please consult your real estate agent and/or the school district to confirm the schools this property is zoned to attend. Information is deemed reliable but not guaranteed.
SchoolDigger ® Rating
The SchoolDigger rating system is a 1-5 scale with 5 as the highest rating. SchoolDigger ranks schools based on test scores supplied by each state's Department of Education. They calculate an average standard score by normalizing and averaging each school's test scores across all tests and grades.
Coming soon properties will soon be on the market, but are not yet available for showings.