$601,135
905 Milborne Lane NW Rochester, MN 55901
For Sale MLS# 7019035
4 beds 3 baths 2,487 sq ft Single Family
Details for 905 Milborne Lane NW
MLS# 7019035
Description for 905 Milborne Lane NW, Rochester, MN, 55901
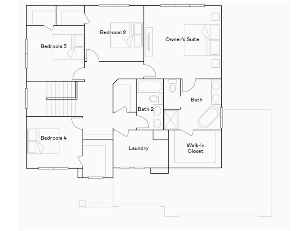
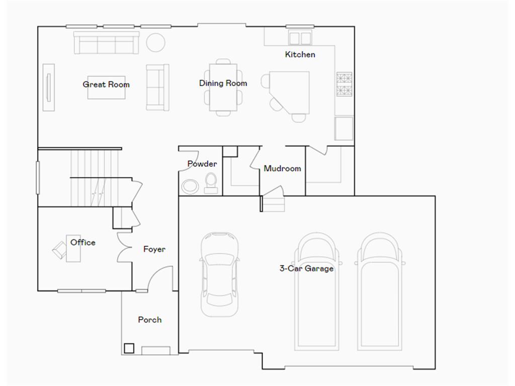
Home is under construction and will be complete in May! Ask about savings up to $15,000 when using Seller's Preferred Lender! A spacious three-car garage and inviting entry lead into a thoughtfully designed first floor that is perfect for everyday living and easy entertaining. Just beyond the foyer, the Great Room becomes the heart of the home, enhanced by a cozy fireplace that creates a warm gathering space. The adjacent kitchen features sleek stainless steel appliances, a generous kitchen island and a sunny nook for casual meals. A flex room on the main level offers extra versatility for hobbies, study time or relaxation, while the mudroom with its walk-in closet helps keep shoes, bags and gear neatly organized. Upstairs, all four bedrooms are thoughtfully arranged, including three secondary bedrooms each with its own walk-in closet. The owner’s suite stands out with a spacious walk-in closet of its own, providing a private retreat at the end of the day, and a conveniently located laundry room completes the upper level. This home is completed with a lookout homesite! Packed with in-demand features and a smart layout that supports busy households, an opportunity like this tends to be snapped up fast.Home to the world-renowned Mayo Clinic, the city of Rochester is a hub of cutting-edge healthcare resources and research technology. Situated in the well-regarded Rochester Community School District, this family-friendly setting features over 100 public parks, a bustling downtown district and numerous attractions.
Listing Information
Property Type: Residential, Single Family
Status: Active
Bedrooms: 4
Bathrooms: 3
Lot Size: 0.24 Acres
Square Feet: 2,487 sq ft
Year Built: 2026
Foundation: 1,096 sq ft
Garage: Yes
Stories: 2 Stories
Date Available: 5/3/2026
Construction Display: New Construction
Completion date: 2026-05-03T05:00:00Z
Subdivision: Essex Estates
Builder: LENNAR
County: Olmsted
Days On Market: 36
Construction Status: Under Construc/Spec Homes
School Information
District: 535 - Rochester
Elementary: Overland
Middle: Dakota
High: John Marshall
Room Information
Main Floor
Dining Room: 10 x 15
Great Room: 18 x 15
Kitchen: 11 x 15
Office: 11 x 10
Upper Floor
Bedroom 1: 15 x 15
Bedroom 2: 12 x 11
Bedroom 3: 11 x 11
Bedroom 4: 11 x 10
Bathrooms
Full Baths: 2
1/2 Baths: 1
Additonal Room Information
Family: Family Room,Great Room,Main Level
Dining: Informal Dining Room,Kitchen/Dining Room
Laundry: Washer Hookup, Laundry Room, Upper Level, Gas Dryer Hookup
Bath Description: Double Sink,Full Primary,Main Floor 1/2 Bath,Upper Level Full Bath
Interior Features
Square Footage above: 2,487 sq ft
Appliances: Gas Water Heater, Stainless Steel Appliances, Refrigerator, Microwave, Range, Disposal, Air-To-Air Exchanger, Dishwasher, Trash Compactor
Basement: Unfinished, Daylight/Lookout Windows
Fireplaces: 1, Electric, Family Room
Additional Interior Features: Walk-In Closet, Kitchen Window, Kitchen Center Island, French Doors, Paneled Doors, Washer/Dryer Hookup, Primary Bdr Suite, 2nd Floor Laundry, 4 BR on One Level
Utilities
Water: City Water/Connected
Sewer: City Sewer/Connected
Cooling: Central
Heating: Forced Air, Natural Gas
Exterior / Lot Features
Attached Garage: Attached Garage
Garage Spaces: 3
Parking Description: Driveway - Concrete, Garage Door Opener, Attached Garage, Garage Sq Ft - 695.0
Exterior: Shakes, Vinyl, Brick/Stone
Roof: Asphalt Shingles, Age 8 Years or Less
Lot Dimensions: TBD
Zoning: Residential-Single Family
Additional Exterior/Lot Features: Porch, Sod Included in Price, In-Ground Sprinkler, Underground Utilities, Road Frontage - City, Curbs, Paved Streets
Driving Directions
Get on US-14 W/US-52 N/US-63 N from E Frontage R. Continue on US-52 N/US-63 N. Take 37th St NW to Essex Pkwy NW. Continue on Essex Pkwy NW. Drive to Londonderry Dr NW
Financial Considerations
Tax/Property ID: TBD
Tax Year: 2026
HomeStead Description: Non-Homesteaded
A broker reciprocity listing courtesy: Lennar Sales Corp
The data relating to real estate for sale on this web site comes in part from the Broker Reciprocity℠ Program of the Regional Multiple Listing Service of Minnesota, Inc. Real estate listings held by brokerage firms other than Edina Realty, Inc. are marked with the Broker Reciprocity℠ logo or the Broker Reciprocity℠ thumbnail and detailed information about them includes the name of the listing brokers. Edina Realty, Inc. is not a Multiple Listing Service (MLS), nor does it offer MLS access. This website is a service of Edina Realty, Inc., a broker Participant of the Regional Multiple Listing Service of Minnesota, Inc. IDX information is provided exclusively for consumers personal, non-commercial use and may not be used for any purpose other than to identify prospective properties consumers may be interested in purchasing. Open House information is subject to change without notice. Information deemed reliable but not guaranteed.
Copyright 2026 Regional Multiple Listing Service of Minnesota, Inc. All Rights Reserved.
Payment Calculator
Interest rate and annual percentage rate (APR) are based on current market conditions, are for informational purposes only, are subject to change without notice and may be subject to pricing add-ons related to property type, loan amount, loan-to-value, credit score and other variables. Estimated closing costs used in the APR calculation are assumed to be paid by the borrower at closing. If the closing costs are financed, the loan, APR and payment amounts will be higher. If the down payment is less than 20%, mortgage insurance may be required and could increase the monthly payment and APR. Contact us for details. Additional loan programs may be available. Accuracy is not guaranteed, and all products may not be available in all borrower's geographical areas and are based on their individual situation. This is not a credit decision or a commitment to lend.
Sales History & Tax Summary for 905 Milborne Lane NW
Sales History
| Date | Price | |
|---|---|---|
| Currently not available. | ||
Tax Summary
| Tax Year | Estimated Market Value | Total Tax |
|---|---|---|
| Currently not available. | ||
Data powered by ATTOM Data Solutions. Copyright© 2026. Information deemed reliable but not guaranteed.
Schools
Schools nearby 905 Milborne Lane NW
| Schools in attendance boundaries | Grades | Distance | Rating |
|---|---|---|---|
| Loading... | |||
| Schools nearby | Grades | Distance | Rating |
|---|---|---|---|
| Loading... | |||
Data powered by ATTOM Data Solutions. Copyright© 2026. Information deemed reliable but not guaranteed.
The schools shown represent both the assigned schools and schools by distance based on local school and district attendance boundaries. Attendance boundaries change based on various factors and proximity does not guarantee enrollment eligibility. Please consult your real estate agent and/or the school district to confirm the schools this property is zoned to attend. Information is deemed reliable but not guaranteed.
SchoolDigger ® Rating
The SchoolDigger rating system is a 1-5 scale with 5 as the highest rating. SchoolDigger ranks schools based on test scores supplied by each state's Department of Education. They calculate an average standard score by normalizing and averaging each school's test scores across all tests and grades.
Coming soon properties will soon be on the market, but are not yet available for showings.