907 Sidney Terrace NW Port Charlotte, FL 33948
For Sale MLS# C7515126
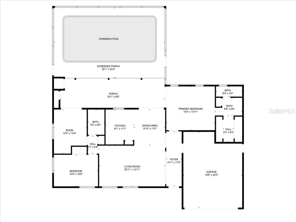
3 beds 2 baths 1,360 sq ft Single Family
Details for 907 Sidney Terrace NW
MLS# C7515126
Description for 907 Sidney Terrace NW, Port Charlotte, FL, 33948
Don't miss this incredible opportunity to own a beautiful 3-bedroom, 2-bathroom pool home with an attached garage, ideally situated on an oversized corner lot in the heart of Port Charlotte. Offering 1,360 square feet of well-designed living space, the home blends comfort and functionality throughout. Step through the foyer into a spacious and inviting living/dining area with a mix of tile and carpeted flooring throughout and sliding glass doors open directly to the screened-in pool and lanai—perfect for effortless indoor-outdoor living and entertaining. Adjacent to the living room is a dedicated dining space, providing a comfortable setting for family meals or gatherings. The kitchen features a clean and bright design with a functional layout. White cabinetry with green handles adds a subtle pop of color, while light gray countertops provide plenty of workspace. The appliances, including a stove, refrigerator, microwave, and dishwasher, are all in white, blending seamlessly with the cabinetry for a cohesive look. A large window over the sink allows natural light to fill the space and offers a pleasant view of the backyard and pool area. Soft blue walls create a refreshing contrast against the white finishes, giving the kitchen a cheerful and airy atmosphere. This kitchen is designed for both practicality and charm, making it a welcoming space for everyday cooking and entertaining. The primary suite is a peaceful retreat, complete with private pool access, two large built-in closets, and tiled walk-in shower. Two additional bedrooms are generously sized (one with pool access) and share a conveniently located full bathroom. The inviting screened-in pool area is the ultimate outdoor retreat, perfect for year-round Florida living. The sparkling pool is surrounded by a spacious, stamped-concrete deck with plenty of room for lounge chairs or dining sets. A covered lanai provides shaded seating, making it ideal for entertaining or simply relaxing poolside. The full screened enclosure keeps the space open and breezy while protecting against insects and debris, ensuring a low-maintenance outdoor oasis. With peaceful views of the backyard and surrounding greenery, this pool area offers the perfect blend of comfort and resort-style living right at home. Additional features oversized attached 2 car garage that includes laundry room with washer/dryer, utility sink and an abundance of storage, A/C (2017), shingle roof (2024), spray foam insulation in the attic. Located in an established neighborhood, this home is just minutes from Port Charlotte Beach Park, where you'll find a public beach, boat ramp, picnic areas, tennis courts, and more. Enjoy easy access to US-41, I-75, shopping, dining, hospitals, and top-rated local parks and beaches. This is your chance to own a piece of waterfront paradise—schedule your showing today! **PLEASE ENJOY THE 3D INTERACTIVE VIRTUAL TOUR ASSOCIATED WITH THIS LISTING**
Listing Information
Property Type: Residential, Single Family Residence
Status: Active
Bedrooms: 3
Bathrooms: 2
Lot Size: 0.28 Acres
Square Feet: 1,360 sq ft
Year Built: 1976
Garage: Yes
Stories: 1 Story
Construction: Block,Stucco
Subdivision: Port Charlotte Sec 023
Foundation: Slab
County: Charlotte
Room Information
Main Floor
Bedroom 3: 11x14
Bedroom 2: 10x14
Primary Bedroom: 14x16
Kitchen: 9x11
Dining Room: 10x12
Living Room: 13x21
Bathrooms
Full Baths: 2
Additonal Room Information
Laundry: Inside, In Garage
Interior Features
Appliances: Electric Water Heater, Microwave, Range, Refrigerator, Washer, Dishwasher, Dryer
Flooring: Carpet,Tile
Additional Interior Features: Ceiling Fan(s), Split Bedrooms, Living/Dining Room, Open Floorplan, Main Level Primary
Utilities
Water: Public
Sewer: Public Sewer
Other Utilities: Cable Available,Cable Connected,Electricity Available,Electricity Connected,High Speed Internet Available,Phone Available
Cooling: Ceiling Fan(s), Central Air
Heating: Central, Electric
Exterior / Lot Features
Attached Garage: Attached Garage
Garage Spaces: 2
Parking Description: Garage Door Opener, Garage, driveway
Roof: Shingle
Pool: In Ground
Lot Dimensions: 96x125x100x108
Additional Exterior/Lot Features: Lighting, Screened, Covered, Corner Lot, Landscaped, Oversized Lot
Driving Directions
From US41 south in Port Charlotte, turn right onto Midway Blvd, left onto Lake View Blvd, left on Dobell Terr NW, the home is on the left corner of Dobell and Sidney.
Financial Considerations
Terms: Cash,Conventional,FHA,VA Loan
Tax/Property ID: 402217478005
Tax Amount: 3979.53
Tax Year: 2024
A broker reciprocity listing courtesy: MARINA PARK REALTY LLC
Based on information provided by Stellar MLS as distributed by the MLS GRID. Information from the Internet Data Exchange is provided exclusively for consumers’ personal, non-commercial use, and such information may not be used for any purpose other than to identify prospective properties consumers may be interested in purchasing. This data is deemed reliable but is not guaranteed to be accurate by Edina Realty, Inc., or by the MLS. Edina Realty, Inc., is not a multiple listing service (MLS), nor does it offer MLS access.
Copyright 2026 Stellar MLS as distributed by the MLS GRID. All Rights Reserved.
Payment Calculator
Interest rate and annual percentage rate (APR) are based on current market conditions, are for informational purposes only, are subject to change without notice and may be subject to pricing add-ons related to property type, loan amount, loan-to-value, credit score and other variables. Estimated closing costs used in the APR calculation are assumed to be paid by the borrower at closing. If the closing costs are financed, the loan, APR and payment amounts will be higher. If the down payment is less than 20%, mortgage insurance may be required and could increase the monthly payment and APR. Contact us for details. Additional loan programs may be available. Accuracy is not guaranteed, and all products may not be available in all borrower's geographical areas and are based on their individual situation. This is not a credit decision or a commitment to lend.
Sales History & Tax Summary for 907 Sidney Terrace NW
Sales History
| Date | Price | |
|---|---|---|
| Currently not available. | ||
Tax Summary
| Tax Year | Estimated Market Value | Total Tax |
|---|---|---|
| Currently not available. | ||
Data powered by ATTOM Data Solutions. Copyright© 2026. Information deemed reliable but not guaranteed.
Schools
Schools nearby 907 Sidney Terrace NW
| Schools in attendance boundaries | Grades | Distance | Rating |
|---|---|---|---|
| Loading... | |||
| Schools nearby | Grades | Distance | Rating |
|---|---|---|---|
| Loading... | |||
Data powered by ATTOM Data Solutions. Copyright© 2026. Information deemed reliable but not guaranteed.
The schools shown represent both the assigned schools and schools by distance based on local school and district attendance boundaries. Attendance boundaries change based on various factors and proximity does not guarantee enrollment eligibility. Please consult your real estate agent and/or the school district to confirm the schools this property is zoned to attend. Information is deemed reliable but not guaranteed.
SchoolDigger ® Rating
The SchoolDigger rating system is a 1-5 scale with 5 as the highest rating. SchoolDigger ranks schools based on test scores supplied by each state's Department of Education. They calculate an average standard score by normalizing and averaging each school's test scores across all tests and grades.
Coming soon properties will soon be on the market, but are not yet available for showings.