9072 Bradleigh Drive Winter Garden, FL 34787 - LAKE LARTIGUE
For Sale MLS# O6354407
5 beds 5 baths 3,750 sq ft Single Family
Details for 9072 Bradleigh Drive
MLS# O6354407
Description for 9072 Bradleigh Drive, Winter Garden, FL, 34787 - LAKE LARTIGUE
Experience the very best in true lakefront living where every detail has been carefully designed for comfort, style, and enjoyment. Located in the heart of Winter Garden within the highly desirable Latham Park community, this extraordinary residence combines modern luxury with the serenity of waterfront living. Perfectly positioned less than two miles from Walt Disney World and a short stroll to new shops and restaurants, the home captures the essence of convenience and exclusivity. Set on a beautifully landscaped 1.25-acre lot, this five-bedroom, four-and-a-half-bath home with a three-car garage offers sweeping lake views and private access to Lake Lartigue, a tranquil 42-acre freshwater lake ideal for boating, fishing, and watersports. The property’s private dock and outdoor living spaces make it perfect place to entertain and live the Florida lifestyle to the fullest extent. Inside, refined design and craftsmanship are evident throughout. The first floor showcases an open-concept layout centered around a stunning gourmet kitchen featuring stacked cabinetry, quartz countertops, and a waterfall island that seamlessly connects to the spacious family room. Fully vented NATYURAL GAS cooktop and the pot filler faucet is always a postive.The formal dining room provides a sophisticated setting for entertaining, while large windows and glass doors fill the home with natural light and offer beautiful views of the pool and lake beyond. The primary suite is a private retreat with direct access to the covered lanai and the heated saltwater pool and spa. Its spa-inspired bath features a floor-to-ceiling glass shower enclosure, modern finishes, and a serene ambiance that creates the perfect place to unwind. A second bedroom on the main level provides flexibility for guests or an office. Upstairs, three additional bedrooms offer generous space, including a Jack-and-Jill bath that connects two of the rooms. The expansive game room opens to a screened-in balcony, where you can take in breathtaking panoramic views of the lake. Elegant wood flooring flows through the main living areas, complemented by tile in all wet spaces and 8-foot doors throughout. The home also includes a premium Sonos surround sound system for an elevated audio experience. With 3,750 square feet of living space, this Grafton floor plan delivers both sophistication and functionality. Residents of Latham Park enjoy access to a community clubhouse, resort-style pool, and scenic nature trails perfect for leisurely walks. The location is unbeatable—just minutes from major highways, world-class dining, the Hamlin retail district, and top-rated schools including Foundation Academy and Windermere Preparatory. Tile roof, security system with google cameras, Culligan water filtration system, storage racks in the finished garages and seamless screen enclosure for perfect views are all worth stating. From the moment you step through the door, you’ll know you’ve found something truly special—an impeccably maintained lakefront haven where luxury meets lifestyle in one of Central Florida’s most sought-after communities.
Listing Information
Property Type: Residential, Single Family Residence
Status: Active
Bedrooms: 5
Bathrooms: 5
Lot Size: 1.25 Acres
Square Feet: 3,750 sq ft
Year Built: 2019
Garage: Yes
Stories: 2 Story
Construction: Block,Stucco,Wood Frame
Subdivision: Latham Park South
Foundation: Slab
County: Orange
School Information
Elementary: Panther Lake Elementary
Middle: Hamlin Middle
High: Horizon High School
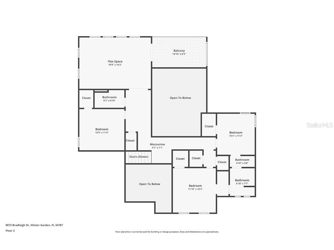
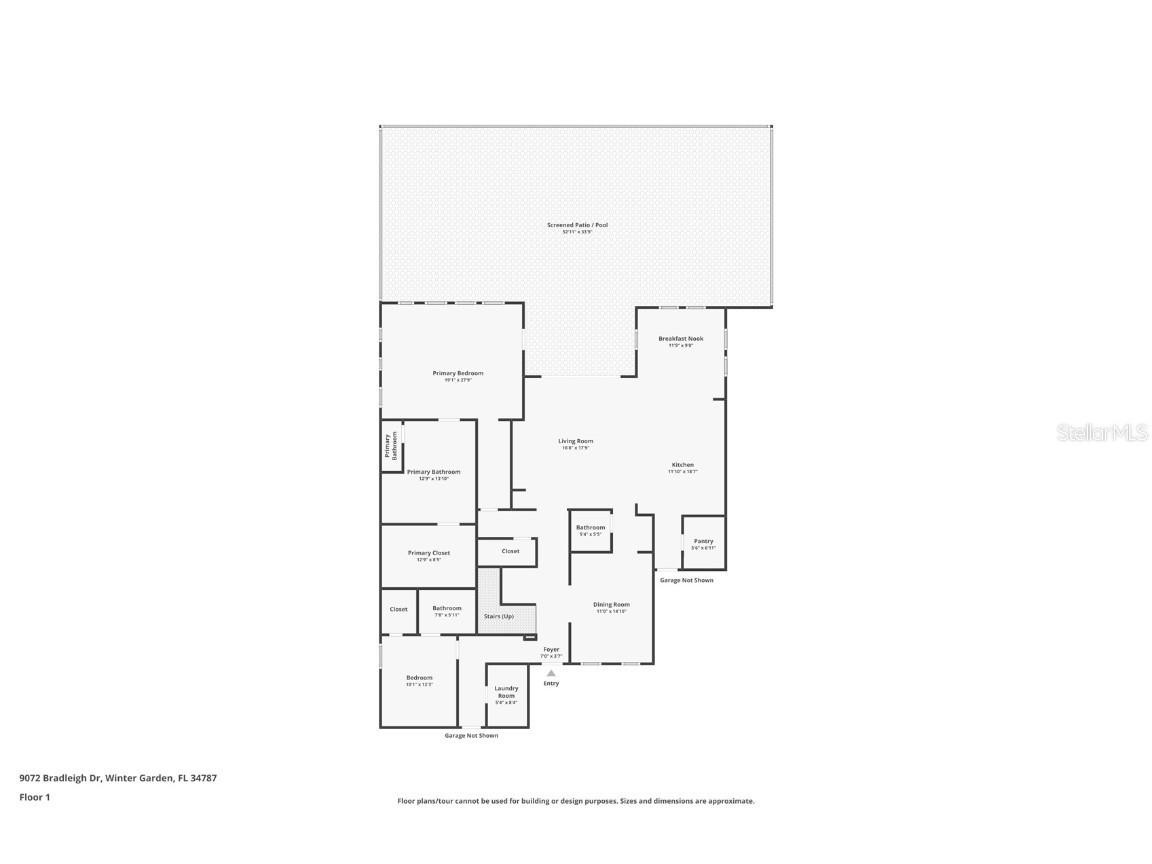
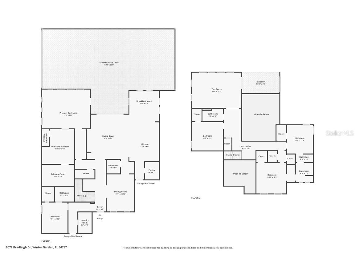
Room Information
Main Floor
Kitchen: 14x17
Dining Room: 11x15
Great Room: 16x19
Bedroom 2: 10x12
Primary Bedroom: 19x27
Upper Floor
Bonus Room: 14x20
Bedroom 5: 10x12
Bedroom 4: 10x12
Bedroom 3: 11x12
Bathrooms
Full Baths: 4
1/2 Baths: 1
Additonal Room Information
Laundry: Inside
Interior Features
Appliances: Built-In Oven, Gas Water Heater, Water Purifier, Convection Oven, Range Hood, Cooktop, Dishwasher, Disposal, Microwave, Refrigerator
Flooring: Carpet,Ceramic Tile,Wood
Doors/Windows: Blinds, Double Pane Windows
Additional Interior Features: Ceiling Fan(s), Walk-In Closet(s), High Ceilings, Built-in Features, Kitchen/Family Room Combo, Separate/Formal Dining Room, Solid Surface Counters, Stone Counters, Main Level Primary
Utilities
Water: Public
Sewer: Public Sewer
Other Utilities: Cable Connected,Electricity Connected,Natural Gas Connected,High Speed Internet Available,Municipal Utilities,Sewer Connected,Underground Utilities,Water Connected
Cooling: Zoned, Central Air, Ceiling Fan(s)
Heating: Central
Exterior / Lot Features
Attached Garage: Attached Garage
Garage Spaces: 3
Parking Description: Garage Door Opener, Garage
Roof: Tile
Pool: In Ground, Salt Water, Screen Enclosure, Gunite
Lot View: Lake,Water
Additional Exterior/Lot Features: Sprinkler/Irrigation, Lighting
Waterfront Details
Standard Water Body: LAKE LARTIGUE
Water Front Features: Lake Privileges, Lake Front
Community Features
Community Features: Sidewalks, Street Lights
Security Features: Security System, Closed Circuit Camera(s)
Homeowners Association: Yes
HOA Dues: $345 / Quarterly
Driving Directions
From I-4 W Get on FL-429 N in Orange County from Western Way. Continue on FL-429 N to HorizonWest. Take exit 11 from FL-429 Continue on Seidel Rd. Drive to 9072 Bradleigh Dr.
Financial Considerations
Terms: Cash,Conventional
Tax/Property ID: 04-24-27-5401-00-090
Tax Amount: 19033.12
Tax Year: 2024
A broker reciprocity listing courtesy: RE/MAX PRIME PROPERTIES
Based on information provided by Stellar MLS as distributed by the MLS GRID. Information from the Internet Data Exchange is provided exclusively for consumers’ personal, non-commercial use, and such information may not be used for any purpose other than to identify prospective properties consumers may be interested in purchasing. This data is deemed reliable but is not guaranteed to be accurate by Edina Realty, Inc., or by the MLS. Edina Realty, Inc., is not a multiple listing service (MLS), nor does it offer MLS access.
Copyright 2025 Stellar MLS as distributed by the MLS GRID. All Rights Reserved.
Payment Calculator
Interest rate and annual percentage rate (APR) are based on current market conditions, are for informational purposes only, are subject to change without notice and may be subject to pricing add-ons related to property type, loan amount, loan-to-value, credit score and other variables. Estimated closing costs used in the APR calculation are assumed to be paid by the borrower at closing. If the closing costs are financed, the loan, APR and payment amounts will be higher. If the down payment is less than 20%, mortgage insurance may be required and could increase the monthly payment and APR. Contact us for details. Additional loan programs may be available. Accuracy is not guaranteed, and all products may not be available in all borrower's geographical areas and are based on their individual situation. This is not a credit decision or a commitment to lend.
Sales History & Tax Summary for 9072 Bradleigh Drive
Sales History
| Date | Price | Change |
|---|---|---|
| Currently not available. | ||
Tax Summary
| Tax Year | Estimated Market Value | Total Tax |
|---|---|---|
| Currently not available. | ||
Data powered by ATTOM Data Solutions. Copyright© 2025. Information deemed reliable but not guaranteed.
Schools
Schools nearby 9072 Bradleigh Drive
| Schools in attendance boundaries | Grades | Distance | Rating |
|---|---|---|---|
| Loading... | |||
| Schools nearby | Grades | Distance | Rating |
|---|---|---|---|
| Loading... | |||
Data powered by ATTOM Data Solutions. Copyright© 2025. Information deemed reliable but not guaranteed.
The schools shown represent both the assigned schools and schools by distance based on local school and district attendance boundaries. Attendance boundaries change based on various factors and proximity does not guarantee enrollment eligibility. Please consult your real estate agent and/or the school district to confirm the schools this property is zoned to attend. Information is deemed reliable but not guaranteed.
SchoolDigger ® Rating
The SchoolDigger rating system is a 1-5 scale with 5 as the highest rating. SchoolDigger ranks schools based on test scores supplied by each state's Department of Education. They calculate an average standard score by normalizing and averaging each school's test scores across all tests and grades.
Coming soon properties will soon be on the market, but are not yet available for showings.