9082 141st Street Seminole, FL 33776
Pending MLS# TB8364123
2 beds 2 baths 1,578 sq ft Single Family
Details for 9082 141st Street
MLS# TB8364123
Description for 9082 141st Street, Seminole, FL, 33776
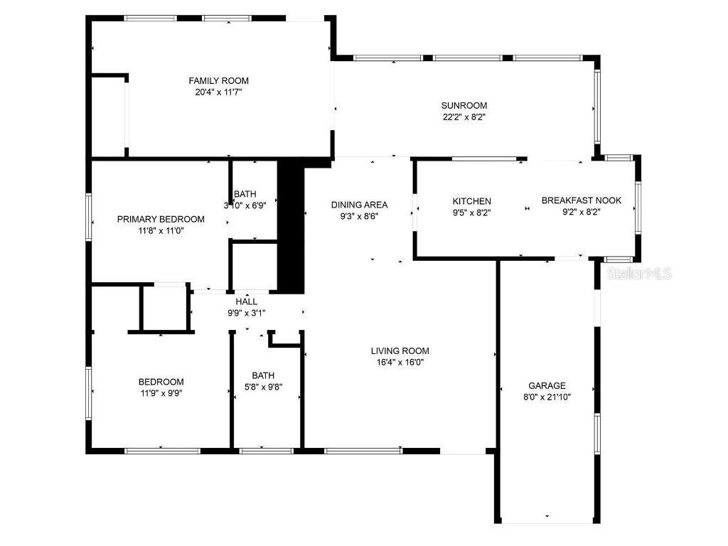
Under contract-accepting backup offers. Discover EASY, LOW-MAINTENANCE LIVING in this 2-bedroom, 2-bath home with a VERSATILE BONUS ROOM that could serve as a THIRD BEDROOM (or modified into a Large Primary by incorporating the original primary bedroom), use as an office, or hobby space - this is an Expanded SKIPPER MODEL. LOCATION! Located DIRECTLY ACROSS FROM THE CLUBHOUSE, you'll have convenient access to the community activities, social events, shuffleboard, and the HEATED POOL. LOCATION, LOCATION - Enjoy PEACEFUL GREEN SPACE WITH NO REAR NEIGHBORS, offering a serene backyard retreat. The $263 a month HOA fee covers ROOF and HOUSE PAINTING every 9 years, along with WATER, SEWER, TRASH, and LAWN CARE, making homeownership truly HASSLE-FREE. This home features an expanded EAT-IN KITCHEN (that possibly could be an interior Laundry room!). Washing dishes is a pleasure since there's a view of the park, and the kitchen has lots of cabinets and counter space. Newer HVAC (2022), Electrical Panel (2019). The Barrel Tile Roof, installed in 2010, has years of remaining life left. The One-car garage has an attic spacious enough to stand up, providing excellent storage options along with the built-in cabinets. The FURNITURE IS OPTIONAL, allowing for a Move-in-ready experience or a space to make your own. LOCATED just minutes from the beaches, yet NO FLOOD INSURANCE IS REQUIRED. LOCATED in an extremely Active 55 community makes this an ideal opportunity for your primary residence or your lock-and-go second home. Probate is now completed, and it's ready for its new owner, so make us an offer!
Listing Information
Property Type: Residential, Single Family Residence
Status: Pending
Bedrooms: 2
Bathrooms: 2
Lot Size: 0.14 Acres
Square Feet: 1,578 sq ft
Year Built: 1968
Garage: Yes
Stories: 1 Story
Construction: Block,Stucco
Construction Display: New Construction
Subdivision: Tamarac By The Gulf
Foundation: Slab
County: Pinellas
Construction Status: New Construction
Room Information
Main Floor
Den: 11.7x20.4
Kitchen: 8.2x9.5
Primary Bedroom: 11x11.8
Living Room: 16x16.4
Family Room: 8.2x22.2
Bedroom 2: 9.9x11.9
Bathrooms
Full Baths: 2
Additonal Room Information
Laundry: In Garage
Interior Features
Appliances: Range, Refrigerator, Dishwasher, Disposal
Flooring: Laminate,Tile
Doors/Windows: Blinds, Window Treatments, Drapes
Additional Interior Features: Eat-In Kitchen, Ceiling Fan(s), Window Treatments, Attic, Living/Dining Room, Open Floorplan, Main Level Primary
Utilities
Water: Public
Sewer: Public Sewer
Other Utilities: Electricity Connected,Municipal Utilities,Sewer Connected,Water Connected
Cooling: Ceiling Fan(s), Central Air
Heating: Electric, Central
Exterior / Lot Features
Attached Garage: Attached Garage
Garage Spaces: 1
Parking Description: Garage Door Opener, driveway, Garage
Roof: Tile, Concrete
Pool: Heated, Association, In Ground, Community, Gunite
Lot View: Park/Greenbelt
Lot Dimensions: 60x100
Additional Exterior/Lot Features: Private Yard, Private Entrance, Rain Gutters, Sprinkler/Irrigation, Rear Porch, Front Porch, Covered, Patio, Landscaped, City Lot, Buyer Approval Required, Private
Community Features
Community Features: Clubhouse, Golf Carts OK, Park, Street Lights, Pool, Sidewalks
Association Amenities: Shuffleboard Court, Maintenance Grounds, Trail(s), Recreation Facilities, Pool, Clubhouse, Cable TV
HOA Dues Include: Cable TV, Trash, Water, Recreation Facilities, Association Management, Sewer, Maintenance Grounds, Road Maintenance, Maintenance Structure, Pool(s)
Homeowners Association: Yes
HOA Dues: $263 / Monthly
Driving Directions
From US 19 head West on SR 688/Ulmerton turn left on Oakhurst Rd (about 8 miles), turn right on 94th Pl N then left on 141st St follow to address.
Financial Considerations
Terms: Cash,Conventional,FHA,VA Loan
Tax/Property ID: 19-30-15-89064-002-0470
Tax Amount: 1652.06
Tax Year: 2024
A broker reciprocity listing courtesy: RAGSDALE RESIDENTIAL REALTY
Based on information provided by Stellar MLS as distributed by the MLS GRID. Information from the Internet Data Exchange is provided exclusively for consumers’ personal, non-commercial use, and such information may not be used for any purpose other than to identify prospective properties consumers may be interested in purchasing. This data is deemed reliable but is not guaranteed to be accurate by Edina Realty, Inc., or by the MLS. Edina Realty, Inc., is not a multiple listing service (MLS), nor does it offer MLS access.
Copyright 2026 Stellar MLS as distributed by the MLS GRID. All Rights Reserved.
Sales History & Tax Summary for 9082 141st Street
Sales History
| Date | Price | |
|---|---|---|
| Currently not available. | ||
Tax Summary
| Tax Year | Estimated Market Value | Total Tax |
|---|---|---|
| Currently not available. | ||
Data powered by ATTOM Data Solutions. Copyright© 2026. Information deemed reliable but not guaranteed.
Schools
Schools nearby 9082 141st Street
| Schools in attendance boundaries | Grades | Distance | Rating |
|---|---|---|---|
| Loading... | |||
| Schools nearby | Grades | Distance | Rating |
|---|---|---|---|
| Loading... | |||
Data powered by ATTOM Data Solutions. Copyright© 2026. Information deemed reliable but not guaranteed.
The schools shown represent both the assigned schools and schools by distance based on local school and district attendance boundaries. Attendance boundaries change based on various factors and proximity does not guarantee enrollment eligibility. Please consult your real estate agent and/or the school district to confirm the schools this property is zoned to attend. Information is deemed reliable but not guaranteed.
SchoolDigger ® Rating
The SchoolDigger rating system is a 1-5 scale with 5 as the highest rating. SchoolDigger ranks schools based on test scores supplied by each state's Department of Education. They calculate an average standard score by normalizing and averaging each school's test scores across all tests and grades.
Coming soon properties will soon be on the market, but are not yet available for showings.