$393,575
Off-Market Date: 10/29/2025911 Harvest Trail Buffalo, MN 55313
Pending MLS# 6811001
5 beds 2 baths 1,988 sq ft Single Family
Details for 911 Harvest Trail
MLS# 6811001
Description for 911 Harvest Trail, Buffalo, MN, 55313
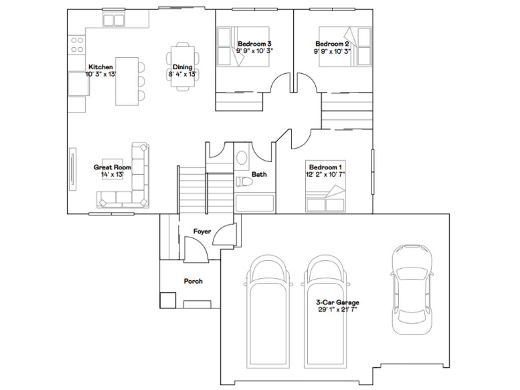
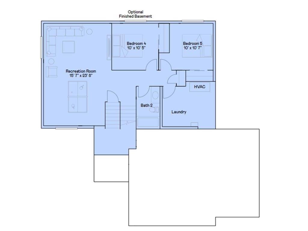
Welcome to Settlers Brook in Buffalo! This stunning Baxter floorplan combines space, style, and modern comfort. The open main level showcases vaulted ceilings that enhance the home’s bright and airy feel, along with a chef-inspired kitchen featuring a large center island, quartz countertops, and stainless steel appliances. Three bedrooms are conveniently located on the main level, including a serene owner’s suite. The finished walkout lower level offers even more living space with a large recreation room, two additional bedrooms, and a full bath—ideal for guests or multigenerational living. Outside, enjoy a fully sodded and landscaped yard with an irrigation system and a spacious 3-car garage. Best of all, there are no HOA fees, and the home comes with the peace of mind of new home warranties!
Listing Information
Property Type: Residential, Single Family
Status: Pending
Bedrooms: 5
Bathrooms: 2
Lot Size: 0.20 Acres
Square Feet: 1,988 sq ft
Year Built: 2025
Foundation: 1,162 sq ft
Garage: Yes
Stories: Split Entry (Bi-Level)
Construction Display: New Construction
Completion date: 2026-05-12T05:00:00Z
Subdivision: Settlers Brook
Builder: LENNAR
County: Wright
Construction Status: Under Construc/Spec Homes
School Information
District: 877 - Buffalo-Hanover-Montrose
Room Information
Main Floor
Bedroom 1: 12x11
Bedroom 2: 10x10
Bedroom 3: 10x10
Dining Room: 8x13
Great Room: 14x13
Kitchen: 10x13
Lower Floor
Bedroom 4: 10x11
Bedroom 5: 10x11
Recreation Room: 16x24
Bathrooms
Full Baths: 2
Additonal Room Information
Family: 2 or More,Great Room,Lower Level,Main Level
Dining: Kitchen/Dining Room
Laundry: In Basement, Washer Hookup, Gas Dryer Hookup
Bath Description: Full Basement,Main Floor Full Bath
Interior Features
Square Footage above: 1,162 sq ft
Square Footage below: 826 sq ft
Appliances: Stainless Steel Appliances, Tankless Water Heater, Range, Refrigerator, Air-To-Air Exchanger, Dishwasher, Disposal, Furnace Humidifier, Microwave
Basement: Finished (Livable), Walkout
Additional Interior Features: Natural Woodwork, Kitchen Window, 3 BR on One Level, Washer/Dryer Hookup, Kitchen Center Island, Paneled Doors, Walk-In Closet, Vaulted Ceiling(s)
Utilities
Water: City Water/Connected
Sewer: City Sewer/Connected
Cooling: Central
Heating: Natural Gas, Forced Air
Exterior / Lot Features
Attached Garage: Attached Garage
Garage Spaces: 3
Parking Description: Garage Door Opener, Driveway - Asphalt, Attached Garage, Garage Sq Ft - 635.0
Exterior: Brick/Stone, Vinyl
Roof: Age 8 Years or Less
Lot Dimensions: TBD
Zoning: Residential-Single Family
Additional Exterior/Lot Features: Porch
Community Features
HOA Dues Include: Other
Driving Directions
Follow US-12 W tp Settlers Pkwy; Turn right onto Erickson Ln.
Financial Considerations
Tax/Property ID: TBD
Tax Year: 2025
HomeStead Description: Non-Homesteaded
A broker reciprocity listing courtesy: Lennar Sales Corp
The data relating to real estate for sale on this web site comes in part from the Broker Reciprocity℠ Program of the Regional Multiple Listing Service of Minnesota, Inc. Real estate listings held by brokerage firms other than Edina Realty, Inc. are marked with the Broker Reciprocity℠ logo or the Broker Reciprocity℠ thumbnail and detailed information about them includes the name of the listing brokers. Edina Realty, Inc. is not a Multiple Listing Service (MLS), nor does it offer MLS access. This website is a service of Edina Realty, Inc., a broker Participant of the Regional Multiple Listing Service of Minnesota, Inc. IDX information is provided exclusively for consumers personal, non-commercial use and may not be used for any purpose other than to identify prospective properties consumers may be interested in purchasing. Open House information is subject to change without notice. Information deemed reliable but not guaranteed.
Copyright 2026 Regional Multiple Listing Service of Minnesota, Inc. All Rights Reserved.
Sales History & Tax Summary for 911 Harvest Trail
Sales History
| Date | Price | |
|---|---|---|
| Currently not available. | ||
Tax Summary
| Tax Year | Estimated Market Value | Total Tax |
|---|---|---|
| Currently not available. | ||
Data powered by ATTOM Data Solutions. Copyright© 2026. Information deemed reliable but not guaranteed.
Schools
Schools nearby 911 Harvest Trail
| Schools in attendance boundaries | Grades | Distance | Rating |
|---|---|---|---|
| Loading... | |||
| Schools nearby | Grades | Distance | Rating |
|---|---|---|---|
| Loading... | |||
Data powered by ATTOM Data Solutions. Copyright© 2026. Information deemed reliable but not guaranteed.
The schools shown represent both the assigned schools and schools by distance based on local school and district attendance boundaries. Attendance boundaries change based on various factors and proximity does not guarantee enrollment eligibility. Please consult your real estate agent and/or the school district to confirm the schools this property is zoned to attend. Information is deemed reliable but not guaranteed.
SchoolDigger ® Rating
The SchoolDigger rating system is a 1-5 scale with 5 as the highest rating. SchoolDigger ranks schools based on test scores supplied by each state's Department of Education. They calculate an average standard score by normalizing and averaging each school's test scores across all tests and grades.
Coming soon properties will soon be on the market, but are not yet available for showings.