914 E North Bay Street Tampa, FL 33603
For Sale MLS# TB8426879
3 beds 2 baths 1,999 sq ft Single Family
Details for 914 E North Bay Street
MLS# TB8426879
Description for 914 E North Bay Street, Tampa, FL, 33603
Welcome to this stunning, fully renovated 3-bedroom, 2-bathroom home with a versatile loft located in highly sought-after South Seminole Heights—just minutes from I-275, Downtown Tampa, Armature Works, the Tampa Riverwalk, and all the vibrant dining, shopping, and entertainment the city has to offer! From the moment you arrive, you’ll notice the impressive curb appeal featuring an upgraded driveway and walkway. Inside, this home exudes modern elegance with water-resistant luxury vinyl flooring, abundant natural light, recessed LED lighting, and designer fixtures throughout. The gourmet kitchen is an entertainer’s dream, offering a massive waterfall-edge quartz island with seating, shaker cabinetry with designer hardware, a quartz backsplash, upgraded pendant lighting, premium stainless steel appliances, and open sightlines to the dining and living areas for easy entertaining. A striking modern spiral staircase leads to a flexible loft that can serve as a home office, gym, playroom, or meditation space. The private primary suite features a spa-like ensuite bath with a walk-in shower accented by designer tile, a comfort-height double vanity, framed mirrors, and custom-built closets. Secondary bedrooms are generously sized with ample natural light, and both bathrooms have been fully remodeled with elegant tilework and finishes. Completely remodeled in 2023, this home features updated roof, electrical wiring and panel, plumbing, tankless water heater, HVAC system, energy-efficient windows, interior and exterior texture and paint, LED recessed lighting, modern fixtures, doors, baseboards, and closet doors. Everything has been done for you—move right in and start living the South Seminole Heights lifestyle! Enjoy a walkable, historic neighborhood known for its charm, tree-lined streets, local coffee shops, breweries, dog parks, and riverfront trails, with quick access to Downtown Tampa, Tampa International Airport, Water Street, and Florida’s world-famous beaches. This is a rare opportunity to own a completely updated, move-in ready home in one of Tampa’s most desirable neighborhoods—schedule your private showing today!
Listing Information
Property Type: Residential, Single Family Residence
Status: Active
Bedrooms: 3
Bathrooms: 2
Lot Size: 0.17 Acres
Square Feet: 1,999 sq ft
Year Built: 1925
Stories: 1 Story
Construction: Stucco
Subdivision: Unplatted
Foundation: Slab
County: Hillsborough
School Information
Elementary: Edison-Hb
Middle: Mclane-Hb
High: Middleton-Hb
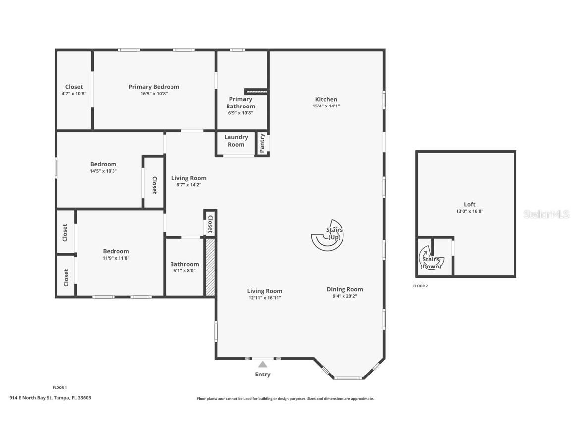
Room Information
Main Floor
Bathroom 2: 8x5.1
Bedroom 3: 11.8x11.9
Bedroom 2: 10.3x14.5
Primary Bathroom: 10.8x6.9
Primary Bedroom: 10.8x16.5
Kitchen: 14.1x15.4
Dining Room: 20.2x9.4
Living Room: 16.11x12.11
Upper Floor
Loft: 16.8x13
Bathrooms
Full Baths: 2
Additonal Room Information
Laundry: Common Area, Inside, Laundry Closet, In Kitchen
Interior Features
Appliances: Dishwasher, Disposal, Microwave, Range, Refrigerator
Flooring: Tile,Vinyl
Doors/Windows: Blinds
Additional Interior Features: Ceiling Fan(s), Other, Eat-In Kitchen, Vaulted Ceiling(s), High Ceilings, Loft, Open Floorplan, Living/Dining Room, Main Level Primary, Solid Surface Counters, Stone Counters, Kitchen/Family Room Combo
Utilities
Water: Public
Sewer: Public Sewer
Other Utilities: Cable Available,Electricity Available,Sewer Available,Water Available
Cooling: Central Air, Ceiling Fan(s)
Heating: Central
Exterior / Lot Features
Parking Description: Off Street, Oversized, Parking Pad, driveway
Roof: Shingle
Fencing: Vinyl, fenced
Additional Exterior/Lot Features: Rain Gutters, Lighting, Other, Front Porch
Community Features
Community Features: Sidewalks
Driving Directions
Get on I-75 S, Keep right to continue on I-275 S, follow signs for Interstate 275 S/Tampa/Saint Petersburg, Take exit 46B toward FL-574/Martin Luther King Jr Blvd, Merge onto N Marguerite St, Use the left lane to turn left onto FL-574 E/E Dr Martin Luther King Jr Blvd/E M.L.K. Jr Blvd, Turn left onto N Nebraska Ave, Turn right onto E North Bay St, Destination will be on the left.
Financial Considerations
Terms: Cash,Conventional,FHA,VA Loan
Tax/Property ID: A-06-29-19-ZZZ-000005-88120.0
Tax Amount: 6869
Tax Year: 2024
A broker reciprocity listing courtesy: 54 REALTY LLC
Based on information provided by Stellar MLS as distributed by the MLS GRID. Information from the Internet Data Exchange is provided exclusively for consumers’ personal, non-commercial use, and such information may not be used for any purpose other than to identify prospective properties consumers may be interested in purchasing. This data is deemed reliable but is not guaranteed to be accurate by Edina Realty, Inc., or by the MLS. Edina Realty, Inc., is not a multiple listing service (MLS), nor does it offer MLS access.
Copyright 2025 Stellar MLS as distributed by the MLS GRID. All Rights Reserved.
Payment Calculator
Interest rate and annual percentage rate (APR) are based on current market conditions, are for informational purposes only, are subject to change without notice and may be subject to pricing add-ons related to property type, loan amount, loan-to-value, credit score and other variables. Estimated closing costs used in the APR calculation are assumed to be paid by the borrower at closing. If the closing costs are financed, the loan, APR and payment amounts will be higher. If the down payment is less than 20%, mortgage insurance may be required and could increase the monthly payment and APR. Contact us for details. Additional loan programs may be available. Accuracy is not guaranteed, and all products may not be available in all borrower's geographical areas and are based on their individual situation. This is not a credit decision or a commitment to lend.
Sales History & Tax Summary for 914 E North Bay Street
Sales History
| Date | Price | Change |
|---|---|---|
| Currently not available. | ||
Tax Summary
| Tax Year | Estimated Market Value | Total Tax |
|---|---|---|
| Currently not available. | ||
Data powered by ATTOM Data Solutions. Copyright© 2025. Information deemed reliable but not guaranteed.
Schools
Schools nearby 914 E North Bay Street
| Schools in attendance boundaries | Grades | Distance | Rating |
|---|---|---|---|
| Loading... | |||
| Schools nearby | Grades | Distance | Rating |
|---|---|---|---|
| Loading... | |||
Data powered by ATTOM Data Solutions. Copyright© 2025. Information deemed reliable but not guaranteed.
The schools shown represent both the assigned schools and schools by distance based on local school and district attendance boundaries. Attendance boundaries change based on various factors and proximity does not guarantee enrollment eligibility. Please consult your real estate agent and/or the school district to confirm the schools this property is zoned to attend. Information is deemed reliable but not guaranteed.
SchoolDigger ® Rating
The SchoolDigger rating system is a 1-5 scale with 5 as the highest rating. SchoolDigger ranks schools based on test scores supplied by each state's Department of Education. They calculate an average standard score by normalizing and averaging each school's test scores across all tests and grades.
Coming soon properties will soon be on the market, but are not yet available for showings.