916 Litchfield Avenue SW Willmar, MN 56201
For Sale MLS# 7006932
Other
Listed by: Edina Realty
Details for 916 Litchfield Avenue SW
MLS# 7006932
Description for 916 Litchfield Avenue SW, Willmar, MN, 56201
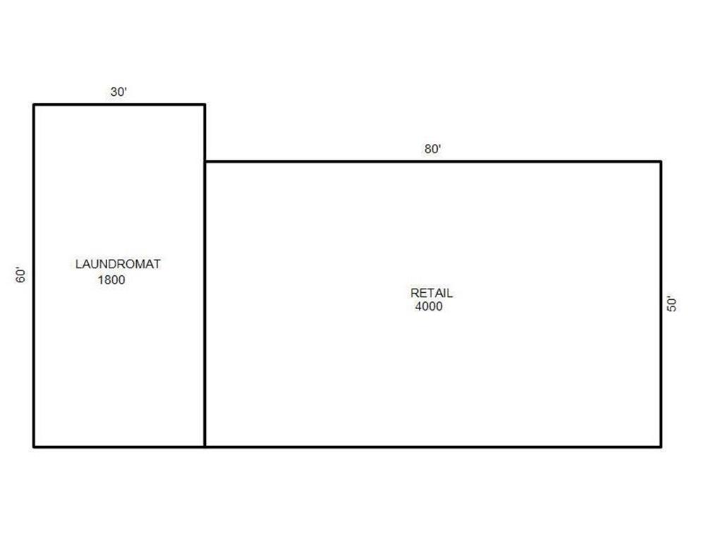
Unlock the potential of this 5,800 sq ft commercial property at 916 Litchfield Ave SW, Willmar, MN, priced at $425,000 on a 34,848 sq ft lot with over 9,000 daily cars driving high ROI and maximum visibility for investors and startups. This turnkey gem offers 4,000 sq ft of versatile retail space, 1,800 sq ft tenant-occupied laundromat setup, a commercial kitchen with hood and walk-in freezer, plus ample parking, making it ideal for launching a thriving restaurant, coffee shop, retail store, or innovative business venture in a high-traffic zone that ensures steady customer flow and lucrative returns. With its open, strategic layout designed for efficiency and adaptability, envision transforming this space into your entrepreneurial success story, capitalizing on Willmar's growing market for strong equity growth and profitability. Seize this prime investment opportunity today—contact us for a viewing!
Listing Information
Property Type: Commercial
Status: Active
Lot Size: 0.80 Acres
Square Feet: 5,800 sq ft
Year Built: 1960
Foundation: 5,800 sq ft
Subdivision: Willmar, Town Of Original
Number Of Units Total: 2
Current Use: Business Service,Event Space,Food Service,Laundromat
County: Kandiyohi
Days On Market: 2
Construction Status: Previously Owned
School Information
District: 347 - Willmar
Interior Features
Flooring: Concrete Slab,Tile
Accessibility: No Stairs External, No Stairs Internal, Grab Bars In Bathroom, Fully Wheelchair, Doors 36+, Hallways 42+
Utilities
Water: City Water/Connected
Sewer: City Sewer/Connected
Other Utilities: Electric Separate,Heating Separate
Heating: Forced Air, Natural Gas
Exterior / Lot Features
Open Parking: 20
Parking Description: Parking Lot, Paved Lot
Exterior: Block, Brick/Stone
Lot Dimensions: 225X151
Zoning: Business/Commercial,Lot
Additional Exterior/Lot Features: Corner Lot, Land Inclusions - Building,Leases, Road Frontage - City, Sidewalks, US Highway
Driving Directions
TAKE HWY 12 WEST OF DOWNTOWN WILLMAR TO THE PROEPRTY ADDRESS.
Financial Considerations
Tax/Property ID: 950033930
Tax Amount: 8412.54
Tax Year: 2025
HomeStead Description: Non-Homesteaded
The data relating to real estate for sale on this web site comes in part from the Broker Reciprocity℠ Program of the Regional Multiple Listing Service of Minnesota, Inc. Real estate listings held by brokerage firms other than Edina Realty, Inc. are marked with the Broker Reciprocity℠ logo or the Broker Reciprocity℠ thumbnail and detailed information about them includes the name of the listing brokers. Edina Realty, Inc. is not a Multiple Listing Service (MLS), nor does it offer MLS access. This website is a service of Edina Realty, Inc., a broker Participant of the Regional Multiple Listing Service of Minnesota, Inc. IDX information is provided exclusively for consumers personal, non-commercial use and may not be used for any purpose other than to identify prospective properties consumers may be interested in purchasing. Open House information is subject to change without notice. Information deemed reliable but not guaranteed.
Copyright 2026 Regional Multiple Listing Service of Minnesota, Inc. All Rights Reserved.
Payment Calculator
Interest rate and annual percentage rate (APR) are based on current market conditions, are for informational purposes only, are subject to change without notice and may be subject to pricing add-ons related to property type, loan amount, loan-to-value, credit score and other variables. Estimated closing costs used in the APR calculation are assumed to be paid by the borrower at closing. If the closing costs are financed, the loan, APR and payment amounts will be higher. If the down payment is less than 20%, mortgage insurance may be required and could increase the monthly payment and APR. Contact us for details. Additional loan programs may be available. Accuracy is not guaranteed, and all products may not be available in all borrower's geographical areas and are based on their individual situation. This is not a credit decision or a commitment to lend.
Sales History & Tax Summary for 916 Litchfield Avenue SW
Sales History
| Date | Price | Change |
|---|---|---|
| Currently not available. | ||
Tax Summary
| Tax Year | Estimated Market Value | Total Tax |
|---|---|---|
| Currently not available. | ||
Data powered by ATTOM Data Solutions. Copyright© 2026. Information deemed reliable but not guaranteed.
Schools
Schools nearby 916 Litchfield Avenue SW
| Schools in attendance boundaries | Grades | Distance | Rating |
|---|---|---|---|
| Loading... | |||
| Schools nearby | Grades | Distance | Rating |
|---|---|---|---|
| Loading... | |||
Data powered by ATTOM Data Solutions. Copyright© 2026. Information deemed reliable but not guaranteed.
The schools shown represent both the assigned schools and schools by distance based on local school and district attendance boundaries. Attendance boundaries change based on various factors and proximity does not guarantee enrollment eligibility. Please consult your real estate agent and/or the school district to confirm the schools this property is zoned to attend. Information is deemed reliable but not guaranteed.
SchoolDigger ® Rating
The SchoolDigger rating system is a 1-5 scale with 5 as the highest rating. SchoolDigger ranks schools based on test scores supplied by each state's Department of Education. They calculate an average standard score by normalizing and averaging each school's test scores across all tests and grades.
Coming soon properties will soon be on the market, but are not yet available for showings.