916 River Rapids Avenue Brandon, FL 33511
For Sale MLS# W7881357
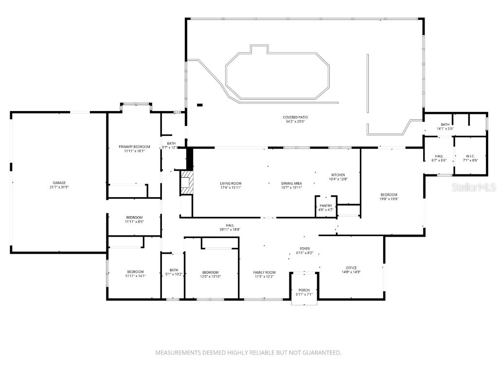
4 beds 3 baths 2,862 sq ft Single Family
Details for 916 River Rapids Avenue
MLS# W7881357
Description for 916 River Rapids Avenue, Brandon, FL, 33511
Discover this beautifully remodeled 4/3/3 pool home in the desirable River Rapids community of Brandon with low HOA fees and no CDD. Offering a thoughtful blend of modern updates and comfortable living, this residence features a brand-new roof, fresh interior finishes, and a layout designed to accommodate a variety of living needs. Inside, you’ll find a spacious split-bedroom floor plan with an additional ensuite bedroom - perfect for guests, extended household members, or flexible use such as a private office or hobby room. The renovated kitchen showcases updated white cabinetry, solid-surface quartz countertops, and an open layout that flows seamlessly into the main living areas. This is not your cookie cutter home. There are multiple living spaces and a huge primary bedroom with an extra sitting area that could be an office space. Generously sized windows and sliding doors provide excellent natural light and easy views of the pool and backyard. Step outside to your private outdoor oasis. The screened pool area is ideal for relaxing or entertaining, and the large, fenced lot offers plenty of room for recreation, gardening, or pets. Mature landscaping adds privacy while still keeping the space open and inviting. Located in River Rapids, this home provides convenient access to local shopping, dining, parks, and major commuter routes. With its upgrades, spacious layout, and appealing outdoor amenities, this property is move-in ready and a fantastic opportunity for anyone seeking a pool home in a great location.
Listing Information
Property Type: Residential, Single Family Residence
Status: Active
Bedrooms: 4
Bathrooms: 3
Lot Size: 0.50 Acres
Square Feet: 2,862 sq ft
Year Built: 1981
Garage: Yes
Stories: 1 Story
Construction: Block,Stucco
Subdivision: River Rapids Sub
Foundation: Slab
County: Hillsborough
Room Information
Main Floor
Kitchen: 10x12
Living Room: 12x11
Family Room: 16x17
Primary Bedroom: 20x20
Bathrooms
Full Baths: 3
Additonal Room Information
Laundry: Inside, Washer Hookup, Electric Dryer Hookup
Interior Features
Appliances: Dishwasher, Microwave, Range, Refrigerator
Flooring: Luxury Vinyl
Fireplaces: Family Room, Wood Burning
Additional Interior Features: Split Bedrooms, Walk-In Closet(s), Separate/Formal Living Room, Solid Surface Counters, Stone Counters, Separate/Formal Dining Room, Kitchen/Family Room Combo, Open Floorplan
Utilities
Water: Well
Sewer: Septic Tank
Other Utilities: Cable Available
Cooling: Central Air
Heating: Central, Electric
Exterior / Lot Features
Attached Garage: Attached Garage
Garage Spaces: 3
Parking Description: driveway
Roof: Shingle
Pool: In Ground, Gunite
Fencing: fenced
Additional Exterior/Lot Features: Courtyard, Outdoor Kitchen, Screened, Porch, Rear Porch, Oversized Lot
Community Features
Homeowners Association: Yes
HOA Dues: $180 / Annually
Driving Directions
FROM BLOOMINGDALE, SOUTH ON BELL SHOALS TO RIGHT ON RIVER RAPIDS TO HOME ON RIGHT
Financial Considerations
Terms: Cash,Conventional,FHA,VA Loan
Tax/Property ID: U-23-30-20-2SX-000000-00002.0
Tax Amount: 8218
Tax Year: 2024
A broker reciprocity listing courtesy: REALTY EXECUTIVES AMERICA INC
Based on information provided by Stellar MLS as distributed by the MLS GRID. Information from the Internet Data Exchange is provided exclusively for consumers’ personal, non-commercial use, and such information may not be used for any purpose other than to identify prospective properties consumers may be interested in purchasing. This data is deemed reliable but is not guaranteed to be accurate by Edina Realty, Inc., or by the MLS. Edina Realty, Inc., is not a multiple listing service (MLS), nor does it offer MLS access.
Copyright 2026 Stellar MLS as distributed by the MLS GRID. All Rights Reserved.
Payment Calculator
Interest rate and annual percentage rate (APR) are based on current market conditions, are for informational purposes only, are subject to change without notice and may be subject to pricing add-ons related to property type, loan amount, loan-to-value, credit score and other variables. Estimated closing costs used in the APR calculation are assumed to be paid by the borrower at closing. If the closing costs are financed, the loan, APR and payment amounts will be higher. If the down payment is less than 20%, mortgage insurance may be required and could increase the monthly payment and APR. Contact us for details. Additional loan programs may be available. Accuracy is not guaranteed, and all products may not be available in all borrower's geographical areas and are based on their individual situation. This is not a credit decision or a commitment to lend.
Sales History & Tax Summary for 916 River Rapids Avenue
Sales History
| Date | Price | |
|---|---|---|
| Currently not available. | ||
Tax Summary
| Tax Year | Estimated Market Value | Total Tax |
|---|---|---|
| Currently not available. | ||
Data powered by ATTOM Data Solutions. Copyright© 2026. Information deemed reliable but not guaranteed.
Schools
Schools nearby 916 River Rapids Avenue
| Schools in attendance boundaries | Grades | Distance | Rating |
|---|---|---|---|
| Loading... | |||
| Schools nearby | Grades | Distance | Rating |
|---|---|---|---|
| Loading... | |||
Data powered by ATTOM Data Solutions. Copyright© 2026. Information deemed reliable but not guaranteed.
The schools shown represent both the assigned schools and schools by distance based on local school and district attendance boundaries. Attendance boundaries change based on various factors and proximity does not guarantee enrollment eligibility. Please consult your real estate agent and/or the school district to confirm the schools this property is zoned to attend. Information is deemed reliable but not guaranteed.
SchoolDigger ® Rating
The SchoolDigger rating system is a 1-5 scale with 5 as the highest rating. SchoolDigger ranks schools based on test scores supplied by each state's Department of Education. They calculate an average standard score by normalizing and averaging each school's test scores across all tests and grades.
Coming soon properties will soon be on the market, but are not yet available for showings.