9183 SW 102nd Circle Ocala, FL 34481
For Sale MLS# O6360204
2 beds 2 baths 1,403 sq ft Single Family
Details for 9183 SW 102nd Circle
MLS# O6360204
Description for 9183 SW 102nd Circle, Ocala, FL, 34481
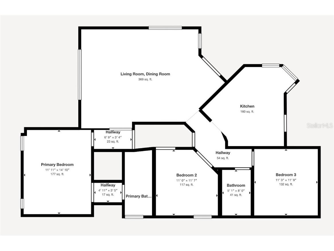
Seller is selling home partially furnished and including the golf cart! Welcome to this inviting 2-bedroom, 2-bath home with a separate office that can easily serve as a third bedroom or flex space, offering 1,403 square feet of comfortable living in Ocala’s premier 55+ community, On Top of the World. As you enter, you’ll be drawn to the open-concept layout that creates a sense of spaciousness throughout. The living room is bright and welcoming, with sliding glass doors leading to a large screened lanai—perfect for relaxing or entertaining while overlooking the beautifully landscaped backyard. The kitchen offers generous counter space, solid surface countertops, solid wood cabinets, and stainless steel appliances, making it a wonderful space for everyday cooking or hosting. The primary suite includes two closets and a private bath featuring a walk-in glass shower. With a split-bedroom floor plan, guests can enjoy their own comfortable space and privacy. The dedicated office adds flexibility for those needing an extra room or hobby area. Located just a short stroll from the Arbor Center, you’ll enjoy easy access to the community’s exceptional amenities—resort-style pools, championship golf courses, pickleball and tennis courts, fitness centers, scenic walking trails, and vibrant clubhouses offering endless opportunities for recreation and connection. This home combines comfort, functionality, and an unbeatable location within one of Ocala’s most sought-after active adult communities—ready to welcome you home. Mortgage savings may be available for buyers of this listing.
Listing Information
Property Type: Residential, Single Family Residence
Status: Active
Bedrooms: 2
Bathrooms: 2
Lot Size: 0.13 Acres
Square Feet: 1,403 sq ft
Year Built: 2006
Garage: Yes
Stories: 1 Story
Construction: Block,Concrete,Stucco
Subdivision: On Top/World
Foundation: Slab
County: Marion
School Information
Middle: Liberty Middle School
High: West Port High School
Room Information
Main Floor
Kitchen:
Living Room:
Primary Bathroom:
Primary Bedroom:
Bathrooms
Full Baths: 2
Additonal Room Information
Laundry: In Garage
Interior Features
Appliances: Range, Refrigerator, Dishwasher, Microwave
Flooring: Laminate,Tile
Additional Interior Features: Ceiling Fan(s), Built-in Features, Main Level Primary, Open Floorplan, Solid Surface Counters, Wood Cabinets
Utilities
Water: Public
Sewer: Public Sewer
Other Utilities: Cable Available,Electricity Connected,Sewer Connected,Water Connected
Cooling: Ceiling Fan(s), Central Air
Heating: Electric, Central
Exterior / Lot Features
Attached Garage: Attached Garage
Garage Spaces: 2
Parking Description: Garage Door Opener, driveway, Garage
Roof: Shingle
Pool: Community
Additional Exterior/Lot Features: Rain Gutters, Lighting, Screened, Covered, Patio
Community Features
Community Features: Sidewalks, Pool, Tennis Court(s), Playground, Clubhouse, Golf, Dog Park, Gated, Restaurant, Fitness, Golf Carts OK
Security Features: Gated Community
Homeowners Association: Yes
HOA Dues: $513 / Monthly
Driving Directions
Head southwest on FL-200, Turn right onto SW 99th Street Rd, Turn left onto SW 94th St, Turn right onto SW 101st Ct, Turn left toward SW 102nd Cir, Turn left onto SW 102nd Cir, Destination will be on the right
Financial Considerations
Terms: Cash,Conventional,FHA,VA Loan
Tax/Property ID: 3530-0390004
Tax Amount: 3075
Tax Year: 2024
A broker reciprocity listing courtesy: REDFIN CORPORATION
Based on information provided by Stellar MLS as distributed by the MLS GRID. Information from the Internet Data Exchange is provided exclusively for consumers’ personal, non-commercial use, and such information may not be used for any purpose other than to identify prospective properties consumers may be interested in purchasing. This data is deemed reliable but is not guaranteed to be accurate by Edina Realty, Inc., or by the MLS. Edina Realty, Inc., is not a multiple listing service (MLS), nor does it offer MLS access.
Copyright 2026 Stellar MLS as distributed by the MLS GRID. All Rights Reserved.
Payment Calculator
Interest rate and annual percentage rate (APR) are based on current market conditions, are for informational purposes only, are subject to change without notice and may be subject to pricing add-ons related to property type, loan amount, loan-to-value, credit score and other variables. Estimated closing costs used in the APR calculation are assumed to be paid by the borrower at closing. If the closing costs are financed, the loan, APR and payment amounts will be higher. If the down payment is less than 20%, mortgage insurance may be required and could increase the monthly payment and APR. Contact us for details. Additional loan programs may be available. Accuracy is not guaranteed, and all products may not be available in all borrower's geographical areas and are based on their individual situation. This is not a credit decision or a commitment to lend.
Sales History & Tax Summary for 9183 SW 102nd Circle
Sales History
| Date | Price | |
|---|---|---|
| Currently not available. | ||
Tax Summary
| Tax Year | Estimated Market Value | Total Tax |
|---|---|---|
| Currently not available. | ||
Data powered by ATTOM Data Solutions. Copyright© 2026. Information deemed reliable but not guaranteed.
Schools
Schools nearby 9183 SW 102nd Circle
| Schools in attendance boundaries | Grades | Distance | Rating |
|---|---|---|---|
| Loading... | |||
| Schools nearby | Grades | Distance | Rating |
|---|---|---|---|
| Loading... | |||
Data powered by ATTOM Data Solutions. Copyright© 2026. Information deemed reliable but not guaranteed.
The schools shown represent both the assigned schools and schools by distance based on local school and district attendance boundaries. Attendance boundaries change based on various factors and proximity does not guarantee enrollment eligibility. Please consult your real estate agent and/or the school district to confirm the schools this property is zoned to attend. Information is deemed reliable but not guaranteed.
SchoolDigger ® Rating
The SchoolDigger rating system is a 1-5 scale with 5 as the highest rating. SchoolDigger ranks schools based on test scores supplied by each state's Department of Education. They calculate an average standard score by normalizing and averaging each school's test scores across all tests and grades.
Coming soon properties will soon be on the market, but are not yet available for showings.