$440,000
Off-Market Date: 01/25/20269197 Alamo Street NE Blaine, MN 55449
Pending MLS# 7008447
4 beds 3 baths 2,412 sq ft Single Family
Details for 9197 Alamo Street NE
MLS# 7008447
Description for 9197 Alamo Street NE, Blaine, MN, 55449
Fantastic home in a prime Blaine location offering an easy commute and access to parks, trails and Park & Ride. This well-designed home features a spacious vaulted living room that flows seamlessly into the eat-in kitchen with stainless steel appliances and ample dining space and walks out to a maintenance-free deck, perfect for everyday living and entertaining.The upper level includes three bedrooms on one level, including a primary suite with a private 3/4 bath featuring a granite countertop. A full upper-level bath also offers a granite countertop for an updated feel.The finished lower level adds exceptional flexibility with a huge living area, wet bar, gas fireplace, built-in cabinetry, Bose speakers, a large laundry room and abundant storage. Additional highlights include a 3-car garage plus a 16x12 backyard garage or shed ideal for hobbies, toys or extra storage.This home offers comfort, space and functionality in a sought-after setting.
Listing Information
Property Type: Residential, Single Family
Status: Pending
Bedrooms: 4
Bathrooms: 3
Lot Size: 0.23 Acres
Square Feet: 2,412 sq ft
Year Built: 2001
Foundation: 1,261 sq ft
Garage: Yes
Stories: Split Entry (Bi-Level)
Subdivision: Rice Creek Woods 4th Add
County: Anoka
Days On Market: 3
Construction Status: Previously Owned
School Information
District: 16 - Spring Lake Park
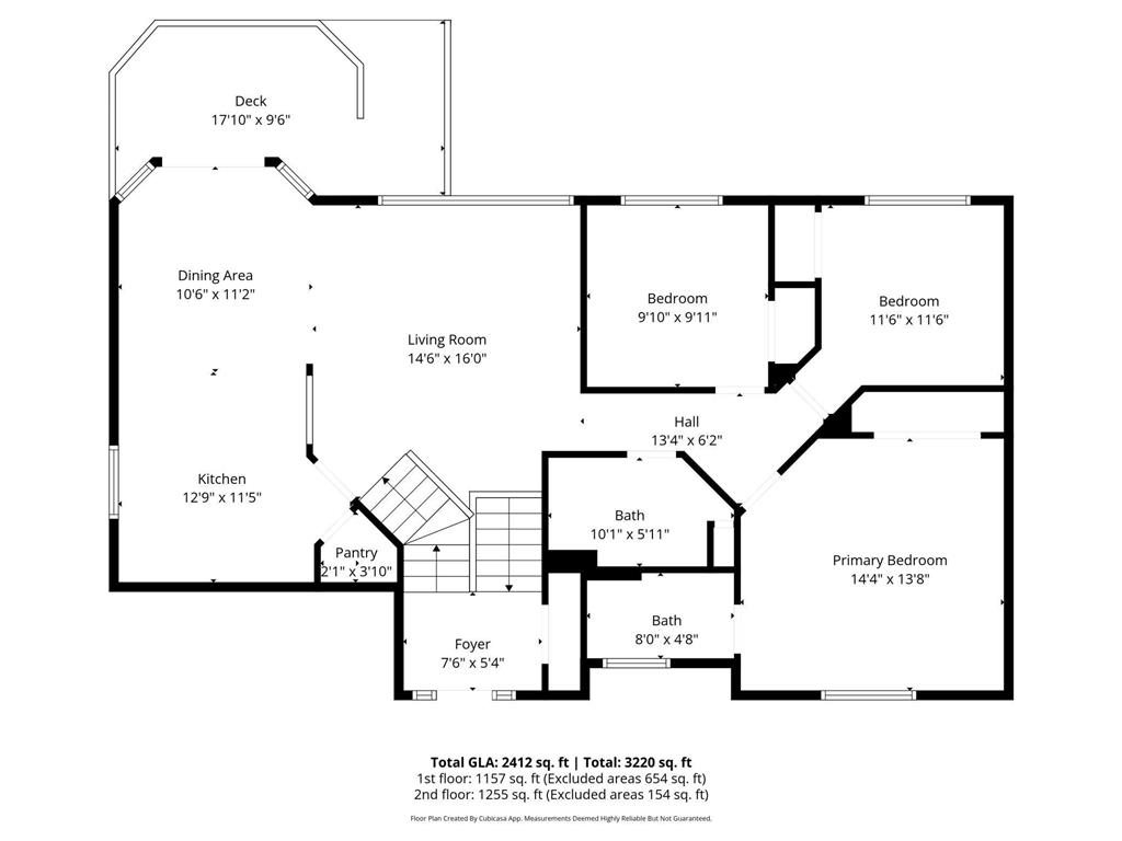
Room Information
Upper Floor
Bedroom 1: 14x14
Bedroom 2: 11.5x11.5
Bedroom 3: 10x10
Deck: 18x9'6
Dining Room: 10.5x11
Kitchen: 13x11
Living Room: 14.5x16
Lower Floor
Bedroom 4: 14x11
Family Room: 36x25
Laundry: 15.5x6.5
Walk-In Closet: 9x6
Bathrooms
Full Baths: 1
3/4 Baths: 2
Additonal Room Information
Family: Great Room,Lower Level
Dining: Breakfast Bar,Eat In Kitchen,Informal Dining Room,Kitchen/Dining Room
Laundry: Laundry Room, Lower Level, Sink
Bath Description: 3/4 Basement,3/4 Primary,Private Primary,Upper Level 3/4 Bath,Upper Level Full Bath,Walk-In Shower Stall
Interior Features
Square Footage above: 1,255 sq ft
Square Footage below: 1,157 sq ft
Appliances: Water Softener - Owned, Stainless Steel Appliances, Washer, Range, Refrigerator, Microwave, Air-To-Air Exchanger, Dishwasher, Disposal, Dryer
Basement: Finished (Livable), Egress Windows, Full, Daylight/Lookout Windows, Storage Space
Fireplaces: 1, Gas Burning, Family Room
Additional Interior Features: Ceiling Fan(s), Kitchen Window, Washer/Dryer Hookup, Vaulted Ceiling(s), Primary Bdr Suite, Walk-In Closet, 3 BR on One Level, Wet Bar, Paneled Doors, Tile Floors
Utilities
Water: City Water/Connected
Sewer: City Sewer/Connected
Cooling: Central
Heating: Forced Air, Natural Gas
Exterior / Lot Features
Attached Garage: Attached Garage
Garage Spaces: 3
Parking Description: Driveway - Asphalt, Attached Garage, Garage Door Opener, Garage Dimensions - 27x21, Garage Sq Ft - 596.0
Exterior: Brick/Stone, Vinyl
Roof: Asphalt Shingles
Lot Dimensions: 109x92
Zoning: Residential-Single Family
Additional Exterior/Lot Features: Deck, In-Ground Sprinkler, Tree Coverage - Light, Road Frontage - Paved Streets, City, Curbs
Out Buildings: Shed - Storage
Driving Directions
35W to 9th Ave to Bataan St. To 91st Ave to Alamo
Financial Considerations
Tax/Property ID: 343123220111
Tax Amount: 4298.18
Tax Year: 2025
HomeStead Description: Homesteaded
A broker reciprocity listing courtesy: RE/MAX Results
The data relating to real estate for sale on this web site comes in part from the Broker Reciprocity℠ Program of the Regional Multiple Listing Service of Minnesota, Inc. Real estate listings held by brokerage firms other than Edina Realty, Inc. are marked with the Broker Reciprocity℠ logo or the Broker Reciprocity℠ thumbnail and detailed information about them includes the name of the listing brokers. Edina Realty, Inc. is not a Multiple Listing Service (MLS), nor does it offer MLS access. This website is a service of Edina Realty, Inc., a broker Participant of the Regional Multiple Listing Service of Minnesota, Inc. IDX information is provided exclusively for consumers personal, non-commercial use and may not be used for any purpose other than to identify prospective properties consumers may be interested in purchasing. Open House information is subject to change without notice. Information deemed reliable but not guaranteed.
Copyright 2026 Regional Multiple Listing Service of Minnesota, Inc. All Rights Reserved.
Sales History & Tax Summary for 9197 Alamo Street NE
Sales History
| Date | Price | |
|---|---|---|
| Currently not available. | ||
Tax Summary
| Tax Year | Estimated Market Value | Total Tax |
|---|---|---|
| Currently not available. | ||
Data powered by ATTOM Data Solutions. Copyright© 2026. Information deemed reliable but not guaranteed.
Schools
Schools nearby 9197 Alamo Street NE
| Schools in attendance boundaries | Grades | Distance | Rating |
|---|---|---|---|
| Loading... | |||
| Schools nearby | Grades | Distance | Rating |
|---|---|---|---|
| Loading... | |||
Data powered by ATTOM Data Solutions. Copyright© 2026. Information deemed reliable but not guaranteed.
The schools shown represent both the assigned schools and schools by distance based on local school and district attendance boundaries. Attendance boundaries change based on various factors and proximity does not guarantee enrollment eligibility. Please consult your real estate agent and/or the school district to confirm the schools this property is zoned to attend. Information is deemed reliable but not guaranteed.
SchoolDigger ® Rating
The SchoolDigger rating system is a 1-5 scale with 5 as the highest rating. SchoolDigger ranks schools based on test scores supplied by each state's Department of Education. They calculate an average standard score by normalizing and averaging each school's test scores across all tests and grades.
Coming soon properties will soon be on the market, but are not yet available for showings.