$350,000
9200 Little Gasparilla Island #301 Placida, FL 33946 - GULF OF MEXICO, PLACIDA HARBOR
For Sale MLS# TB8442155
2 beds 1 baths 970 sq ft Condo
Details for 9200 Little Gasparilla Island #301
MLS# TB8442155
Description for 9200 Little Gasparilla Island #301, Placida, FL, 33946 - GULF OF MEXICO, PLACIDA HARBOR
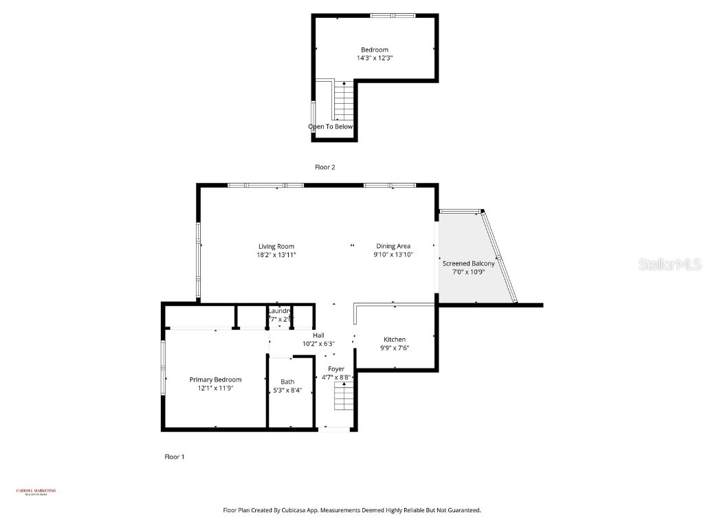
Escape to the seclusion and peacefulness of paradise at Placida Beach Club! This island community features 30 condominiums with a private ferry transporting you to and from the island. This two bedroom unit offers 970 square feet of living space with an open floor plan and a screened-in lanai for your enjoyment. Tastefully updated throughout providing you with a permanent residence or the ideal income generating rental. The exclusive Placida Beach Club offers an island clubhouse, heated pool and a board walk leading to your very own private beach. In addition, you will find plenty of boat dockage (14 additional slips added) on the new commercial grade dock (will open mid-November), all on a first come basis. Little Gasparilla Island is a bridge-less barrier island with no public access, so you will enjoy a unique lifestyle within your very own private paradise. Additionally, you may enjoy the many amenities offered at the mainland, Placida Harbour Club, just a short ferry ride away. Experience the fully equipped fitness center, Spa, two heated swimming pools, basketball courts, tennis courts and a beautiful clubhouse which supports many activities each month. Schedule your showing today to explore this unique opportunity! *** This unit is on Little Gasparilla Island, which is a Bridge-Less Barrier Island and can only be accessed by boat.***
Listing Information
Property Type: Residential, Condominium
Status: Active
Bedrooms: 2
Bathrooms: 1
Lot Size: 0.02 Acres
Square Feet: 970 sq ft
Year Built: 1986
Stories: 2 Story
Construction: Wood Siding,Wood Frame
Subdivision: Placida Beach Ph 02 Bldg 03
Foundation: Pillar/Post/Pier
County: Charlotte
School Information
Elementary: Vineland Elementary
Middle: L.A. Ainger Middle
High: Lemon Bay High
Room Information
Main Floor
Primary Bedroom: 13x12
Dining Room: 10x14
Kitchen: 9x14
Living Room: 11x21
Upper Floor
Bedroom 2:
Bathrooms
Full Baths: 1
Additonal Room Information
Laundry: Laundry Closet
Interior Features
Appliances: Dryer, Microwave, Range, Refrigerator, Washer, Dishwasher, Disposal, Electric Water Heater
Flooring: Ceramic Tile,Wood
Doors/Windows: Window Treatments, ENERGY STAR Qualified Windows
Additional Interior Features: Window Treatments, Ceiling Fan(s), Built-in Features, Main Level Primary, Wood Cabinets, Solid Surface Counters
Utilities
Water: Public
Sewer: Septic Tank
Other Utilities: Cable Connected,Electricity Connected,Municipal Utilities,Water Connected
Cooling: Ceiling Fan(s), Central Air
Heating: Central, Electric
Exterior / Lot Features
Parking Description: Golf Cart Garage
Roof: Metal
Pool: Community
Additional Exterior/Lot Features: Outdoor Grill, Outdoor Shower, Balcony, Lighting, Storage, Screened, Balcony, Covered, Deck, Rear Porch, Landscaped, Buyer Approval Required
Out Buildings: Storage
Waterfront Details
Standard Water Body: GULF OF MEXICO, PLACIDA HARBOR
Water Front Features: Gulf Access, Ocean Access, Bay Access, Beach Access
Community Features
Community Features: Fitness, Golf Carts OK, Gated, Recreation Area, Water Access, Pool, Clubhouse, Tennis Court(s), Waterfront, Dock
Security Features: Fire Hydrant(s), Gated Community, Smoke Detector(s)
HOA Dues Include: Pest Control, Reserve Fund, Common Areas, Insurance, Maintenance Grounds, Maintenance Structure, Pool(s), Security, Recreation Facilities, Taxes
Homeowners Association: Yes
HOA Dues: $6,412 / Quarterly
Driving Directions
Take HWY 776 to Gasparilla Road and turn westbound. Continue to the Boca Grande Causeway and turn left. Eldred's Marina will be on your right and this will be your departure point for Little Gasparilla Island
Financial Considerations
Terms: Cash,Other
Tax/Property ID: 422022576013
Tax Amount: 879
Tax Year: 2024
A broker reciprocity listing courtesy: PALERMO REAL ESTATE PROF. INC.
Based on information provided by Stellar MLS as distributed by the MLS GRID. Information from the Internet Data Exchange is provided exclusively for consumers’ personal, non-commercial use, and such information may not be used for any purpose other than to identify prospective properties consumers may be interested in purchasing. This data is deemed reliable but is not guaranteed to be accurate by Edina Realty, Inc., or by the MLS. Edina Realty, Inc., is not a multiple listing service (MLS), nor does it offer MLS access.
Copyright 2025 Stellar MLS as distributed by the MLS GRID. All Rights Reserved.
Payment Calculator
Interest rate and annual percentage rate (APR) are based on current market conditions, are for informational purposes only, are subject to change without notice and may be subject to pricing add-ons related to property type, loan amount, loan-to-value, credit score and other variables. Estimated closing costs used in the APR calculation are assumed to be paid by the borrower at closing. If the closing costs are financed, the loan, APR and payment amounts will be higher. If the down payment is less than 20%, mortgage insurance may be required and could increase the monthly payment and APR. Contact us for details. Additional loan programs may be available. Accuracy is not guaranteed, and all products may not be available in all borrower's geographical areas and are based on their individual situation. This is not a credit decision or a commitment to lend.
Sales History & Tax Summary for 9200 Little Gasparilla Island #301
Sales History
| Date | Price | Change |
|---|---|---|
| Currently not available. | ||
Tax Summary
| Tax Year | Estimated Market Value | Total Tax |
|---|---|---|
| Currently not available. | ||
Data powered by ATTOM Data Solutions. Copyright© 2025. Information deemed reliable but not guaranteed.
Schools
Schools nearby 9200 Little Gasparilla Island #301
| Schools in attendance boundaries | Grades | Distance | Rating |
|---|---|---|---|
| Loading... | |||
| Schools nearby | Grades | Distance | Rating |
|---|---|---|---|
| Loading... | |||
Data powered by ATTOM Data Solutions. Copyright© 2025. Information deemed reliable but not guaranteed.
The schools shown represent both the assigned schools and schools by distance based on local school and district attendance boundaries. Attendance boundaries change based on various factors and proximity does not guarantee enrollment eligibility. Please consult your real estate agent and/or the school district to confirm the schools this property is zoned to attend. Information is deemed reliable but not guaranteed.
SchoolDigger ® Rating
The SchoolDigger rating system is a 1-5 scale with 5 as the highest rating. SchoolDigger ranks schools based on test scores supplied by each state's Department of Education. They calculate an average standard score by normalizing and averaging each school's test scores across all tests and grades.
Coming soon properties will soon be on the market, but are not yet available for showings.