9249 Northcliffe Boulevard Spring Hill, FL 34606
For Sale MLS# W7880476
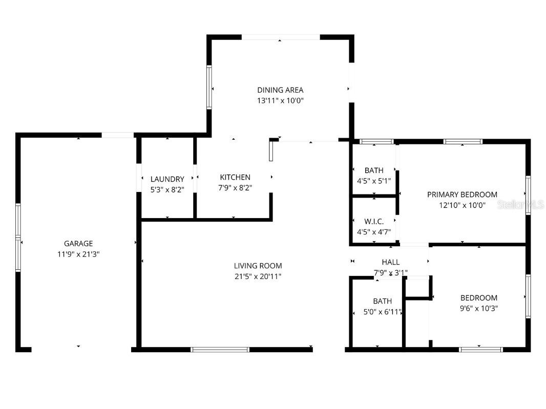
2 beds 2 baths 1,096 sq ft Single Family
Details for 9249 Northcliffe Boulevard
MLS# W7880476
Description for 9249 Northcliffe Boulevard, Spring Hill, FL, 34606
This cozy 2-bedroom, 1.5-bathroom home offers comfort, functionality, and room to relax both indoors and out. Step into the comfortable living room and dining room combination. The kitchen is conveniently located nearby and includes an inside laundry area with washer and dryer. The home also features a versatile family room at the back, with sliding glass doors leading to a large, fenced backyard. Enjoy Florida's outdoor lifestyle on the patio, under the pergola, or from the enclosed screened lanai—ideal for morning coffee or evening gatherings. Additional highlights include a 1-car garage, window A/C units, and a heat pump. Roof 1995. No HOA. A great opportunity for anyone ready to make it their own!
Listing Information
Property Type: Residential, Single Family Residence
Status: Active
Bedrooms: 2
Bathrooms: 2
Lot Size: 0.22 Acres
Square Feet: 1,096 sq ft
Year Built: 1980
Garage: Yes
Stories: 1 Story
Construction: Block,Stucco
Subdivision: Spring Hill
Foundation: Slab
County: Hernando
School Information
Elementary: Spring Hill Elementary
Middle: Fox Chapel Middle School
High: Weeki Wachee High School
Room Information
Main Floor
Primary Bedroom: 10x12
Living Room: 20x21
Kitchen: 8x7
Bathrooms
Full Baths: 1
1/2 Baths: 1
Additonal Room Information
Laundry: Inside
Interior Features
Appliances: Electric Water Heater, Dryer, Washer, Range, Refrigerator
Flooring: Carpet,Ceramic Tile,Laminate,Tile
Doors/Windows: Blinds
Additional Interior Features: Ceiling Fan(s)
Utilities
Water: Public
Sewer: Septic Tank
Other Utilities: Cable Available,Electricity Connected,High Speed Internet Available,Water Connected
Cooling: Ceiling Fan(s), Wall/Window Unit(s)
Heating: Electric, Heat Pump
Exterior / Lot Features
Attached Garage: Attached Garage
Garage Spaces: 1
Roof: Shingle
Fencing: Wood, Chain Link
Additional Exterior/Lot Features: Covered, Porch, Rear Porch, Screened, Landscaped, Outside City Limits
Community Features
Community Features: Sidewalks
Driving Directions
From US Hwy 19, turn east onto Northcliffe Blvd
Financial Considerations
Terms: Cash
Tax/Property ID: R32-323-17-5220-1487-0110
Tax Amount: 2320
Tax Year: 2024
A broker reciprocity listing courtesy: KW REALTY ELITE PARTNERS
Based on information provided by Stellar MLS as distributed by the MLS GRID. Information from the Internet Data Exchange is provided exclusively for consumers’ personal, non-commercial use, and such information may not be used for any purpose other than to identify prospective properties consumers may be interested in purchasing. This data is deemed reliable but is not guaranteed to be accurate by Edina Realty, Inc., or by the MLS. Edina Realty, Inc., is not a multiple listing service (MLS), nor does it offer MLS access.
Copyright 2026 Stellar MLS as distributed by the MLS GRID. All Rights Reserved.
Payment Calculator
Interest rate and annual percentage rate (APR) are based on current market conditions, are for informational purposes only, are subject to change without notice and may be subject to pricing add-ons related to property type, loan amount, loan-to-value, credit score and other variables. Estimated closing costs used in the APR calculation are assumed to be paid by the borrower at closing. If the closing costs are financed, the loan, APR and payment amounts will be higher. If the down payment is less than 20%, mortgage insurance may be required and could increase the monthly payment and APR. Contact us for details. Additional loan programs may be available. Accuracy is not guaranteed, and all products may not be available in all borrower's geographical areas and are based on their individual situation. This is not a credit decision or a commitment to lend.
Sales History & Tax Summary for 9249 Northcliffe Boulevard
Sales History
| Date | Price | |
|---|---|---|
| Currently not available. | ||
Tax Summary
| Tax Year | Estimated Market Value | Total Tax |
|---|---|---|
| Currently not available. | ||
Data powered by ATTOM Data Solutions. Copyright© 2026. Information deemed reliable but not guaranteed.
Schools
Schools nearby 9249 Northcliffe Boulevard
| Schools in attendance boundaries | Grades | Distance | Rating |
|---|---|---|---|
| Loading... | |||
| Schools nearby | Grades | Distance | Rating |
|---|---|---|---|
| Loading... | |||
Data powered by ATTOM Data Solutions. Copyright© 2026. Information deemed reliable but not guaranteed.
The schools shown represent both the assigned schools and schools by distance based on local school and district attendance boundaries. Attendance boundaries change based on various factors and proximity does not guarantee enrollment eligibility. Please consult your real estate agent and/or the school district to confirm the schools this property is zoned to attend. Information is deemed reliable but not guaranteed.
SchoolDigger ® Rating
The SchoolDigger rating system is a 1-5 scale with 5 as the highest rating. SchoolDigger ranks schools based on test scores supplied by each state's Department of Education. They calculate an average standard score by normalizing and averaging each school's test scores across all tests and grades.
Coming soon properties will soon be on the market, but are not yet available for showings.