926 21st Street SE Saint Cloud, MN 56304
Pending MLS# 6780215
4 beds 3 baths 1,940 sq ft Single Family
Details for 926 21st Street SE
MLS# 6780215
Description for 926 21st Street SE, Saint Cloud, MN, 56304
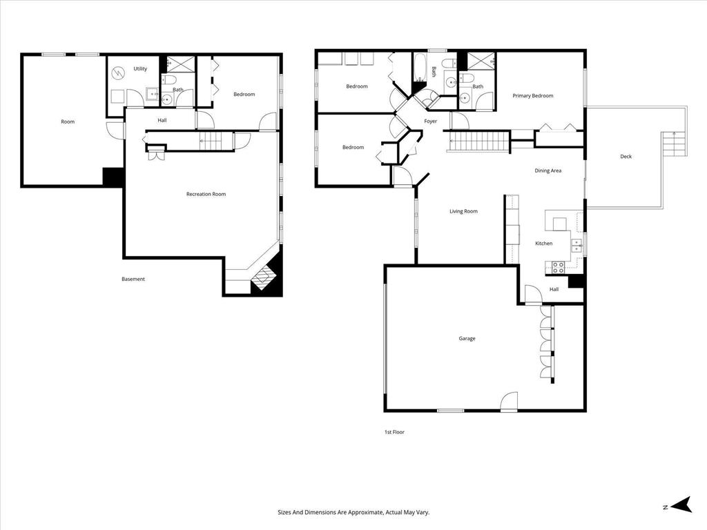
Welcome to this well-maintained rambler offering convenient main-level living. The spacious primary suite (20' x 13') comfortably fits king-size furniture and a reclining chair, and features a private ¾ bath and dual closets. Three bedrooms are located on the main level, with a fourth bedroom in the lower level—ideal for guests, a home office, or hobby space.The home features vaulted ceilings and a semi-open-concept floorplan, creating an airy and inviting atmosphere. Recent interior updates include fresh paint throughout the entire main level, new carpet in the living room and third main-floor bedroom, updated cabinet hardware in the kitchen and bathrooms, wallpaper removal for a clean, modern look, new locksets on main-floor and entry doors, and a new InSinkErator disposal.Step outside to an oversized 15' x 15' cedar deck with stairs leading down to a lush, beautifully maintained backyard. Fencing is allowed, offering flexibility and peace of mind for children and pets.The oversized two-car garage (30' x 21') includes built-in closet storage. Downstairs, the expansive rec room (23' x 25') features a cozy gas-burning fireplace with brick surround, while daylight lookout windows fill the space with natural light. You’ll also find a large unfinished storage or hobby room (15' x 20') plus a separate mechanical and laundry area.Major mechanical and exterior updates include vinyl windows (2015), siding and roof (2019), furnace (2020), and water heater (2024), providing comfort and confidence for years to come.
Listing Information
Property Type: Residential, Single Family, Ranch-Style Home
Status: Pending
Bedrooms: 4
Bathrooms: 3
Lot Size: 0.24 Acres
Square Feet: 1,940 sq ft
Year Built: 1990
Foundation: 1,090 sq ft
Garage: Yes
Stories: 1 Story
Subdivision: Torborg Estates
County: Sherburne
Days On Market: 139
Construction Status: Previously Owned
School Information
District: 742 - St. Cloud
Room Information
Main Floor
Bathroom: 6x8
Bedroom 1: 20x13
Bedroom 2: 13x9
Bedroom 3: 14x10
Deck: 15x15
Dining Room: 11x8
Kitchen: 12x12
Living Room: 14x17
Primary Bath: 5x9
Lower Floor
Bathroom: 5x8
Bedroom 4: 12x11
Recreation Room: 24x24
Utility Room:
Bathrooms
Full Baths: 1
3/4 Baths: 2
Additonal Room Information
Family: Family Room,Lower Level
Dining: Eat In Kitchen,Informal Dining Room
Laundry: Washer Hookup, Laundry Room, Lower Level, Sink, Gas Dryer Hookup
Bath Description: 3/4 Basement,3/4 Primary,Main Floor 3/4 Bath,Main Floor Full Bath,Private Primary,Upper Level Full Bath
Interior Features
Square Footage above: 1,200 sq ft
Square Footage below: 740 sq ft
Appliances: Disposal, Microwave, Range, Refrigerator, Dryer, Dishwasher, Washer
Basement: Concrete Block, Finished (Livable), Full, Daylight/Lookout Windows, Storage Space
Fireplaces: 1, Wood Burning, Family Room, Brick
Additional Interior Features: Vaulted Ceiling(s), Natural Woodwork, Ceiling Fan(s), Washer/Dryer Hookup, Tile Floors, Kitchen Window, Main Floor Laundry, 3 BR on One Level, All Living Facilities on One Level, Main Floor Primary, Primary Bdr Suite
Utilities
Water: City Water/Connected
Sewer: City Sewer/Connected
Cooling: Central
Heating: Wood, Forced Air, Baseboard, Electric, Natural Gas, Fireplace
Exterior / Lot Features
Attached Garage: Attached Garage
Garage Spaces: 2
Parking Description: Driveway - Concrete, Garage Door Opener, Attached Garage, Storage, Electric, Garage Dimensions - 30x22, Garage Sq Ft - 620.0
Exterior: Brick/Stone, Steel Siding
Roof: Age 8 Years or Less, Asphalt Shingles, Pitched
Lot Dimensions: 76x140
Zoning: Residential-Single Family
Additional Exterior/Lot Features: Deck, Porch, Tree Coverage - Medium, Road Frontage - City, Curbs, Paved Streets
Driving Directions
From Hwy 10, turn onto Minnesota Blvd, left onto 15th Ave SE, right into 21st ST SE, property is on the left.
Financial Considerations
Tax/Property ID: 85004230235
Tax Amount: 3436
Tax Year: 2025
HomeStead Description: Homesteaded
A broker reciprocity listing courtesy: Coldwell Banker Realty
The data relating to real estate for sale on this web site comes in part from the Broker Reciprocity℠ Program of the Regional Multiple Listing Service of Minnesota, Inc. Real estate listings held by brokerage firms other than Edina Realty, Inc. are marked with the Broker Reciprocity℠ logo or the Broker Reciprocity℠ thumbnail and detailed information about them includes the name of the listing brokers. Edina Realty, Inc. is not a Multiple Listing Service (MLS), nor does it offer MLS access. This website is a service of Edina Realty, Inc., a broker Participant of the Regional Multiple Listing Service of Minnesota, Inc. IDX information is provided exclusively for consumers personal, non-commercial use and may not be used for any purpose other than to identify prospective properties consumers may be interested in purchasing. Open House information is subject to change without notice. Information deemed reliable but not guaranteed.
Copyright 2026 Regional Multiple Listing Service of Minnesota, Inc. All Rights Reserved.
Sales History & Tax Summary for 926 21st Street SE
Sales History
| Date | Price | |
|---|---|---|
| Currently not available. | ||
Tax Summary
| Tax Year | Estimated Market Value | Total Tax |
|---|---|---|
| Currently not available. | ||
Data powered by ATTOM Data Solutions. Copyright© 2026. Information deemed reliable but not guaranteed.
Schools
Schools nearby 926 21st Street SE
| Schools in attendance boundaries | Grades | Distance | Rating |
|---|---|---|---|
| Loading... | |||
| Schools nearby | Grades | Distance | Rating |
|---|---|---|---|
| Loading... | |||
Data powered by ATTOM Data Solutions. Copyright© 2026. Information deemed reliable but not guaranteed.
The schools shown represent both the assigned schools and schools by distance based on local school and district attendance boundaries. Attendance boundaries change based on various factors and proximity does not guarantee enrollment eligibility. Please consult your real estate agent and/or the school district to confirm the schools this property is zoned to attend. Information is deemed reliable but not guaranteed.
SchoolDigger ® Rating
The SchoolDigger rating system is a 1-5 scale with 5 as the highest rating. SchoolDigger ranks schools based on test scores supplied by each state's Department of Education. They calculate an average standard score by normalizing and averaging each school's test scores across all tests and grades.
Coming soon properties will soon be on the market, but are not yet available for showings.