9260 Saint Catherine Avenue Englewood, FL 34224
For Sale MLS# D6141184
3 beds 2 baths 1,677 sq ft Single Family
Details for 9260 Saint Catherine Avenue
MLS# D6141184
Description for 9260 Saint Catherine Avenue, Englewood, FL, 34224
Welcome to your private Florida oasis! This 3-bedroom, 2-bathroom pool home sits on a rare DOUBLE LOT in the desirable Englewood East neighborhood, offering ample space, privacy, and endless possibilities, all with NO HOA and located in X FLOOD ZONE! A true standout feature of this home is the 1,500 sq. ft. (30' X 50') detached garage with a separate utility meter, making it the perfect space for storing your boat, RV, extra vehicles, or even creating the ultimate workshop. Inside, the kitchen is a chef’s dream, featuring new appliances, cement countertops, and under-counter lighting. The floor plan seamlessly blends indoor and outdoor living, with sliding doors and a pass-through window to the lanai, perfect for entertaining. Step outside to your private backyard retreat, where a poolside bathroom and outdoor shower add ultimate convenience. Plus, you'll love the one-of-a-kind embedded $100 bill tile at the bottom of the pool, adding a unique personality to your oasis. With southern sun exposure, enjoy breathtaking sunsets over your sparkling pool every evening. The irrigated home lot keeps the landscape lush and green, while the additional space offers endless opportunities for expansion, gardening, or added privacy. To top it off, furniture can convey under a separate contract, allowing for a seamless move-in experience. Centrally located between Sarasota and Fort Myers, this home puts you just minutes from world-class fishing, championship golf courses, top-tier shopping and dining, medical facilities and the stunning Gulf Coast beaches! Don't miss this rare opportunity to own a spacious, functional, and perfectly located piece of paradise!
Listing Information
Property Type: Residential, Single Family Residence
Status: Active
Bedrooms: 3
Bathrooms: 2
Lot Size: 0.50 Acres
Square Feet: 1,677 sq ft
Year Built: 1984
Garage: Yes
Stories: 1 Story
Construction: Block,Stucco
Subdivision: Port Charlotte Sec 084
Foundation: Block,Slab
County: Charlotte
School Information
Elementary: Vineland Elementary
Middle: L.A. Ainger Middle
High: Lemon Bay High
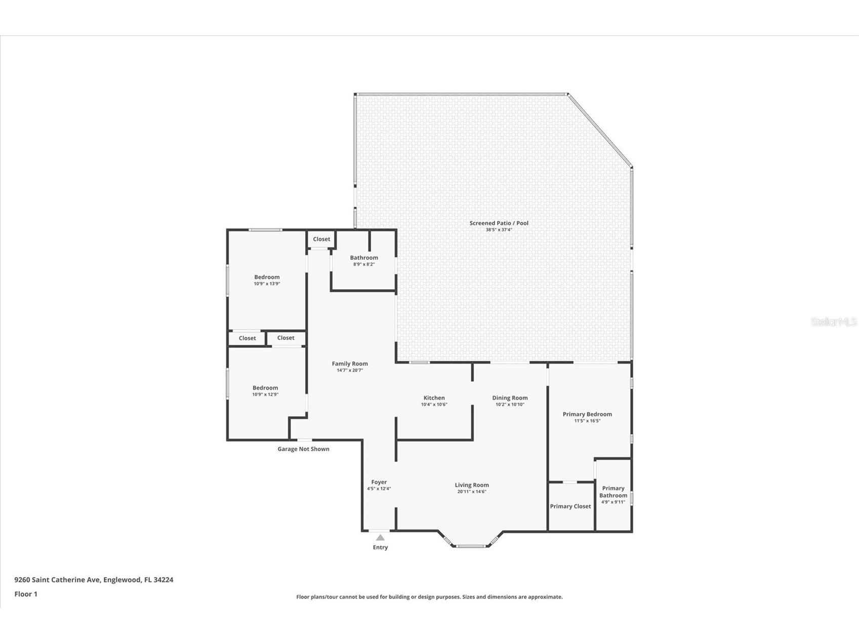
Room Information
Main Floor
Workshop: 50x30
Foyer: 12x5
Porch: 37x39
Bedroom 3: 14x11
Bedroom 2: 13x11
Primary Bedroom: 17x12
Family Room: 21x15
Kitchen: 11x10
Dining Room: 11x10
Living Room: 15x21
Bathrooms
Full Baths: 2
Additonal Room Information
Laundry: In Garage
Interior Features
Appliances: Dishwasher, Dryer, Range, Refrigerator, Washer
Flooring: Carpet,Tile
Doors/Windows: Blinds, Window Treatments
Additional Interior Features: Split Bedrooms, Walk-In Closet(s), Window Treatments, Ceiling Fan(s)
Utilities
Water: Public
Sewer: Septic Tank
Other Utilities: Cable Connected,Electricity Connected
Cooling: Ceiling Fan(s), Central Air
Heating: Central
Exterior / Lot Features
Attached Garage: Attached Garage
Garage Spaces: 10
Roof: Shingle
Pool: In Ground, Outside Bath Access, Screen Enclosure, Pool Cover
Lot Dimensions: 160x125
Additional Exterior/Lot Features: Lighting, Outdoor Shower, Rain Gutters, Sprinkler/Irrigation, Screened, Covered, Landscaped
Out Buildings: Other
Driving Directions
From S. McCall Rd (776) turn onto Mayport St. Then turn left onto Boca Grande Ave, right onto Adcock St and right onto Saint Catherine Ave. the home is on the right.
Financial Considerations
Terms: Cash,Conventional,FHA,VA Loan
Tax/Property ID: 412010131017
Tax Amount: 7302.95
Tax Year: 2024
A broker reciprocity listing courtesy: PARADISE EXCLUSIVE INC
Based on information provided by Stellar MLS as distributed by the MLS GRID. Information from the Internet Data Exchange is provided exclusively for consumers’ personal, non-commercial use, and such information may not be used for any purpose other than to identify prospective properties consumers may be interested in purchasing. This data is deemed reliable but is not guaranteed to be accurate by Edina Realty, Inc., or by the MLS. Edina Realty, Inc., is not a multiple listing service (MLS), nor does it offer MLS access.
Copyright 2026 Stellar MLS as distributed by the MLS GRID. All Rights Reserved.
Payment Calculator
Interest rate and annual percentage rate (APR) are based on current market conditions, are for informational purposes only, are subject to change without notice and may be subject to pricing add-ons related to property type, loan amount, loan-to-value, credit score and other variables. Estimated closing costs used in the APR calculation are assumed to be paid by the borrower at closing. If the closing costs are financed, the loan, APR and payment amounts will be higher. If the down payment is less than 20%, mortgage insurance may be required and could increase the monthly payment and APR. Contact us for details. Additional loan programs may be available. Accuracy is not guaranteed, and all products may not be available in all borrower's geographical areas and are based on their individual situation. This is not a credit decision or a commitment to lend.
Sales History & Tax Summary for 9260 Saint Catherine Avenue
Sales History
| Date | Price | |
|---|---|---|
| Currently not available. | ||
Tax Summary
| Tax Year | Estimated Market Value | Total Tax |
|---|---|---|
| Currently not available. | ||
Data powered by ATTOM Data Solutions. Copyright© 2026. Information deemed reliable but not guaranteed.
Schools
Schools nearby 9260 Saint Catherine Avenue
| Schools in attendance boundaries | Grades | Distance | Rating |
|---|---|---|---|
| Loading... | |||
| Schools nearby | Grades | Distance | Rating |
|---|---|---|---|
| Loading... | |||
Data powered by ATTOM Data Solutions. Copyright© 2026. Information deemed reliable but not guaranteed.
The schools shown represent both the assigned schools and schools by distance based on local school and district attendance boundaries. Attendance boundaries change based on various factors and proximity does not guarantee enrollment eligibility. Please consult your real estate agent and/or the school district to confirm the schools this property is zoned to attend. Information is deemed reliable but not guaranteed.
SchoolDigger ® Rating
The SchoolDigger rating system is a 1-5 scale with 5 as the highest rating. SchoolDigger ranks schools based on test scores supplied by each state's Department of Education. They calculate an average standard score by normalizing and averaging each school's test scores across all tests and grades.
Coming soon properties will soon be on the market, but are not yet available for showings.