9260 SW 92nd Place Road Ocala, FL 34481
For Sale MLS# OM708651
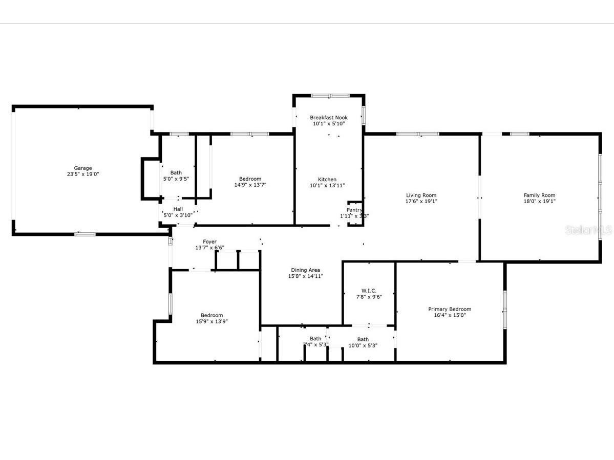
3 beds 2 baths 2,246 sq ft Single Family
OPEN HOUSE: Sunday, 3/8 12:00 PM - 02:00 PM
Details for 9260 SW 92nd Place Road
MLS# OM708651
Description for 9260 SW 92nd Place Road, Ocala, FL, 34481
Please note: Some photos contain digitally added flooring for visual reference only. The shown flooring is not installed and is not part of the sale. Nestled in the heart of the desirable 55+ community of On Top of the World, this 3 bedroom, 2 bath home with a 2 car garage offers 2,246 square feet of well-designed living space, featuring a split floor plan that balances privacy and comfort while providing an inviting layout for everyday living. Upon entry two guest bedrooms are positioned on each side of the foyer, with a full guest bath conveniently nearby. Just down the hall, the formal dining room is highlighted by multiple skylights that fill the space with natural light. The kitchen features abundant cabinet/counter space and pantry. The expansive living room serves as the centerpiece of the home, offering plenty of space for relaxation and entertaining. Just off the living room, an oversized bonus room with built in shelving and a Murphy bed provides incredible versatility, perfect as a second living area, guest quarters, or hobby room. A door from the bonus room leads out to a beautifully landscaped patio ideal for enjoying your morning coffee or unwinding outdoors. The spacious primary suite includes an en-suite bath with a tiled walk-in shower and oversized walk-in closet. Recent improvements include a Roof replaced in 2014, Garbage disposal in 2026 & an HVAC system installed in 2015 and fully serviced in 2026, for added peace of mind a 1 year home warranty will be included at closing for the buyer. As part of On Top of the World, residents enjoy an unmatched lifestyle with access to multiple pools, fitness centers, dog parks, tennis courts, shuffleboard, golf courses, RC Field, weekly activities and so much more—all within a community that also offers golf cart access to nearby restaurants and shopping. Schedule your private showing and see the possibilities this home has to offer!
Listing Information
Property Type: Residential, Single Family Residence
Status: Active
Bedrooms: 3
Bathrooms: 2
Lot Size: 0.17 Acres
Square Feet: 2,246 sq ft
Year Built: 1995
Garage: Yes
Stories: 1 Story
Construction: Block,Stucco
Subdivision: On Top/The World Ph 01 A Sec 01
Foundation: Slab
County: Marion
School Information
Elementary: Hammett Bowen Jr. Elementary
Middle: Liberty Middle School
High: West Port High School
Room Information
Main Floor
Bedroom 3: 15.9x13.9
Bedroom 2: 14.9x13.7
Primary Bedroom: 16.4x15
Family Room: 19.1x19
Kitchen: 13.11x10.1
Living Room: 19.1x17.6
Bathrooms
Full Baths: 2
Additonal Room Information
Laundry: Washer Hookup, Electric Dryer Hookup, Laundry Closet
Interior Features
Appliances: Electric Water Heater, Dishwasher, Microwave, Range, Refrigerator
Flooring: Carpet,Tile
Additional Interior Features: Eat-In Kitchen, Split Bedrooms, Walk-In Closet(s), Ceiling Fan(s), Vaulted Ceiling(s), High Ceilings, Main Level Primary
Utilities
Water: Public
Sewer: Public Sewer
Other Utilities: Cable Available,Electricity Connected,High Speed Internet Available,Municipal Utilities,Sewer Connected,Underground Utilities,Water Connected
Cooling: Ceiling Fan(s), Central Air
Heating: Central
Exterior / Lot Features
Attached Garage: Attached Garage
Garage Spaces: 2
Roof: Shingle
Pool: Community, Association
Lot Dimensions: 50x145
Additional Exterior/Lot Features: Tennis Court(s), Storage, Front Porch, Flat, Level, Landscaped, Cleared
Community Features
Community Features: Clubhouse, Golf, Pool, Tennis Court(s), Sidewalks, Dog Park, Gated, Park, Racquetball, Restaurant, Golf Carts OK, Fitness, Community Mailbox
Security Features: Gated Community
Association Amenities: Recreation Facilities, Fitness Center, Security, Spa/Hot Tub, Golf Course, Tennis Court(s), Pool, Cable TV, Sauna, Shuffleboard Court, Racquetball, Pickleball, Clubhouse, Gated
HOA Dues Include: Maintenance Grounds, Common Areas, Road Maintenance, Maintenance Structure, Pool(s), Cable TV, Trash, Security, Taxes
Homeowners Association: Yes
HOA Dues: $479 / Monthly
Driving Directions
Off Highway 75 take a right onto SW College Rd, in 5.3 Miles turn right onto SW 90th St then take a slight right onto SW 90th St in 0.6 miles. Turn left onto SW 91st Cir in 1 mile and then right onto SW 92nd Place rd. in 0.2 miles then the destination will be on your left in 400ft.
Financial Considerations
Terms: Cash,Conventional
Tax/Property ID: 3530-0004-07
Tax Amount: 2156.05
Tax Year: 2025
A broker reciprocity listing courtesy: KELLER WILLIAMS CORNERSTONE RE
Based on information provided by Stellar MLS as distributed by the MLS GRID. Information from the Internet Data Exchange is provided exclusively for consumers’ personal, non-commercial use, and such information may not be used for any purpose other than to identify prospective properties consumers may be interested in purchasing. This data is deemed reliable but is not guaranteed to be accurate by Edina Realty, Inc., or by the MLS. Edina Realty, Inc., is not a multiple listing service (MLS), nor does it offer MLS access.
Copyright 2026 Stellar MLS as distributed by the MLS GRID. All Rights Reserved.
Payment Calculator
Interest rate and annual percentage rate (APR) are based on current market conditions, are for informational purposes only, are subject to change without notice and may be subject to pricing add-ons related to property type, loan amount, loan-to-value, credit score and other variables. Estimated closing costs used in the APR calculation are assumed to be paid by the borrower at closing. If the closing costs are financed, the loan, APR and payment amounts will be higher. If the down payment is less than 20%, mortgage insurance may be required and could increase the monthly payment and APR. Contact us for details. Additional loan programs may be available. Accuracy is not guaranteed, and all products may not be available in all borrower's geographical areas and are based on their individual situation. This is not a credit decision or a commitment to lend.
Sales History & Tax Summary for 9260 SW 92nd Place Road
Sales History
| Date | Price | |
|---|---|---|
| Currently not available. | ||
Tax Summary
| Tax Year | Estimated Market Value | Total Tax |
|---|---|---|
| Currently not available. | ||
Data powered by ATTOM Data Solutions. Copyright© 2026. Information deemed reliable but not guaranteed.
Schools
Schools nearby 9260 SW 92nd Place Road
| Schools in attendance boundaries | Grades | Distance | Rating |
|---|---|---|---|
| Loading... | |||
| Schools nearby | Grades | Distance | Rating |
|---|---|---|---|
| Loading... | |||
Data powered by ATTOM Data Solutions. Copyright© 2026. Information deemed reliable but not guaranteed.
The schools shown represent both the assigned schools and schools by distance based on local school and district attendance boundaries. Attendance boundaries change based on various factors and proximity does not guarantee enrollment eligibility. Please consult your real estate agent and/or the school district to confirm the schools this property is zoned to attend. Information is deemed reliable but not guaranteed.
SchoolDigger ® Rating
The SchoolDigger rating system is a 1-5 scale with 5 as the highest rating. SchoolDigger ranks schools based on test scores supplied by each state's Department of Education. They calculate an average standard score by normalizing and averaging each school's test scores across all tests and grades.
Coming soon properties will soon be on the market, but are not yet available for showings.