$340,000
930 Villeroy Greens Drive Sun City Center, FL 33573
For Sale MLS# TB8457998
2 beds 2 baths 2,014 sq ft Condo
Details for 930 Villeroy Greens Drive
MLS# TB8457998
Description for 930 Villeroy Greens Drive, Sun City Center, FL, 33573
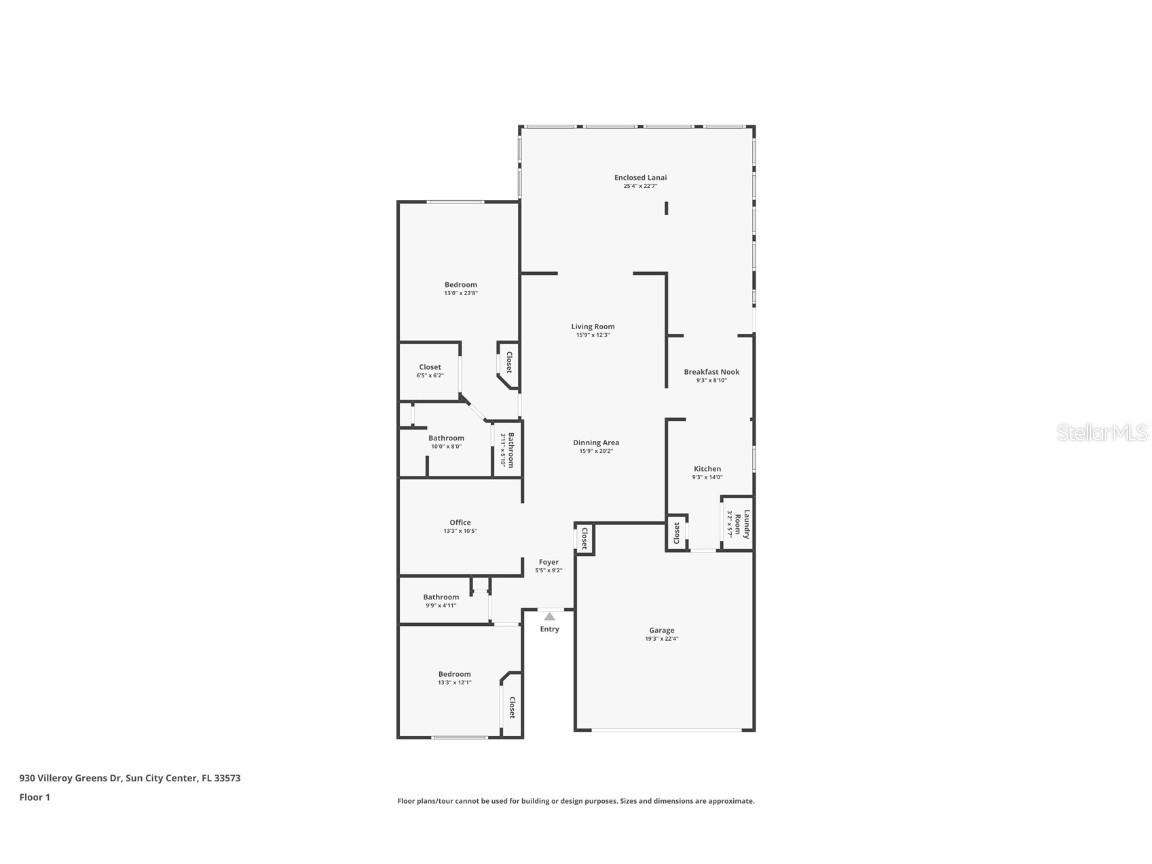
Welcome to active and carefree retirement living in the sought-after community of Kings Point! This immaculate and impeccably maintained updated and extended Dartmouth model offers both comfort and peace of mind. As you enter through the leaded glass front door, you'll immediately notice the open and inviting layout. Straight ahead, the stunning enclosed lanai features 452 square feet under air and heat, bringing the home to over 2,000 square feet of total living space to relax, entertain, or enjoy your morning beverage and includes hurricane shutters for added safety and security. The split floor plan is ideal for hosting guests, offering everyone privacy and their own space. The primary bathroom is beautifully designed with dual sinks, solar tubes for natural light, and a spacious walk-in shower. If you've been searching for two bedrooms plus a den or home office, look no further this home truly has it all. The updated kitchen showcases quartz countertops, soft-close drawers, self-closing cabinets with crown molding, new appliances, and a conveniently located laundry closet just off the kitchen. Additional highlights include a brand-new A/C, gorgeous paver driveway, and fresh interior paint, making this home completely move-in ready. Kings Point is a gated 55+ golf cart community with easy access to shopping, dining, and Florida's award-winning beaches. This home truly has it all - space, comfort, functionality, an exceptional lifestyle, and an unbeatable price. Schedule your private tour today; you will not be disappointed.
Listing Information
Property Type: Residential, Condominium
Status: Active
Bedrooms: 2
Bathrooms: 2
Lot Size: 0.05 Acres
Square Feet: 2,014 sq ft
Year Built: 1999
Garage: Yes
Stories: 1 Story
Construction: Stucco
Property Attached: Yes
Construction Display: New Construction
Subdivision: Villeroy Condo
Foundation: Block
County: Hillsborough
Construction Status: New Construction
School Information
Elementary: Cypress Creek-Hb
Middle: Shields-Hb
High: Lennard-Hb
Room Information
Main Floor
Kitchen: 14x9
Living Room: 12x15
Dining Room: 20x15
Den: 10x13
Bedroom 2: 12x13
Primary Bedroom: 23x13
Bathrooms
Full Baths: 2
Additonal Room Information
Laundry: Inside, Laundry Closet, Electric Dryer Hookup
Interior Features
Appliances: Electric Water Heater, Washer, Dishwasher, Disposal, Dryer, Freezer, Microwave, Range, Refrigerator
Flooring: Carpet,Tile
Doors/Windows: Blinds, Window Treatments, Skylight(s)
Accessibility: Wheelchair Access
Additional Interior Features: Eat-In Kitchen, Ceiling Fan(s), Skylights, Tray Ceiling(s), Living/Dining Room, Window Treatments, Walk-In Closet(s), Split Bedrooms, Main Level Primary, Kitchen/Family Room Combo, Open Floorplan, Stone Counters
Utilities
Water: Public
Sewer: Public Sewer
Other Utilities: Cable Available,Cable Connected,Electricity Connected,Phone Available
Cooling: Ceiling Fan(s), Central Air
Heating: Central, Electric
Exterior / Lot Features
Attached Garage: Attached Garage
Garage Spaces: 2
Parking Description: Garage Door Opener, Garage
Roof: Shingle
Pool: Community, Association
Additional Exterior/Lot Features: Storm/Security Shutters, Rain Gutters, Sprinkler/Irrigation, Lighting, Garden, Enclosed, Screened, Front Porch, Rear Porch, Landscaped, Buyer Approval Required
Community Features
Community Features: Fitness, Golf Carts OK, Pool, Tennis Court(s), Clubhouse, Golf, Handicap Access, Street Lights, Dog Park, Gated, Restaurant
Security Features: Gated Community, Gated with Guard, Smoke Detector(s)
Association Amenities: Fitness Center, Recreation Facilities, Tennis Court(s), Pool, Cable TV, Sauna, Security, Laundry, Golf Course, Shuffleboard Court, Maintenance Grounds, Gated, Clubhouse, Pickleball
HOA Dues Include: Reserve Fund, Maintenance Structure, Pool(s), Maintenance Grounds, Road Maintenance, Pest Control, Security, Sewer, Internet, Cable TV, Water, Recreation Facilities, Trash
Driving Directions
Take I-75 S and FL-674 E to Kings Blvd in Sun City Center, turn right into Kings Point main gate. After the gate, stay on Kings Point Blvd for a short distance. At the yield sign, turn left onto Kings Boulevard. Continue on Kings Boulevard until you reach Villeroy Greens Dr (there will be a left turn). Turn left onto Villeroy Greens Dr. Follow Villeroy Greens Dr until you reach 930 Villeroy Greens Dr.
Financial Considerations
Terms: Cash,Conventional
Tax/Property ID: U-13-32-19-1Z6-000000-00009.0
Tax Amount: 1687
Tax Year: 2024
A broker reciprocity listing courtesy: CENTURY 21 BEGGINS ENTERPRISES
Based on information provided by Stellar MLS as distributed by the MLS GRID. Information from the Internet Data Exchange is provided exclusively for consumers’ personal, non-commercial use, and such information may not be used for any purpose other than to identify prospective properties consumers may be interested in purchasing. This data is deemed reliable but is not guaranteed to be accurate by Edina Realty, Inc., or by the MLS. Edina Realty, Inc., is not a multiple listing service (MLS), nor does it offer MLS access.
Copyright 2025 Stellar MLS as distributed by the MLS GRID. All Rights Reserved.
Payment Calculator
Interest rate and annual percentage rate (APR) are based on current market conditions, are for informational purposes only, are subject to change without notice and may be subject to pricing add-ons related to property type, loan amount, loan-to-value, credit score and other variables. Estimated closing costs used in the APR calculation are assumed to be paid by the borrower at closing. If the closing costs are financed, the loan, APR and payment amounts will be higher. If the down payment is less than 20%, mortgage insurance may be required and could increase the monthly payment and APR. Contact us for details. Additional loan programs may be available. Accuracy is not guaranteed, and all products may not be available in all borrower's geographical areas and are based on their individual situation. This is not a credit decision or a commitment to lend.
Sales History & Tax Summary for 930 Villeroy Greens Drive
Sales History
| Date | Price | Change |
|---|---|---|
| Currently not available. | ||
Tax Summary
| Tax Year | Estimated Market Value | Total Tax |
|---|---|---|
| Currently not available. | ||
Data powered by ATTOM Data Solutions. Copyright© 2025. Information deemed reliable but not guaranteed.
Schools
Schools nearby 930 Villeroy Greens Drive
| Schools in attendance boundaries | Grades | Distance | Rating |
|---|---|---|---|
| Loading... | |||
| Schools nearby | Grades | Distance | Rating |
|---|---|---|---|
| Loading... | |||
Data powered by ATTOM Data Solutions. Copyright© 2025. Information deemed reliable but not guaranteed.
The schools shown represent both the assigned schools and schools by distance based on local school and district attendance boundaries. Attendance boundaries change based on various factors and proximity does not guarantee enrollment eligibility. Please consult your real estate agent and/or the school district to confirm the schools this property is zoned to attend. Information is deemed reliable but not guaranteed.
SchoolDigger ® Rating
The SchoolDigger rating system is a 1-5 scale with 5 as the highest rating. SchoolDigger ranks schools based on test scores supplied by each state's Department of Education. They calculate an average standard score by normalizing and averaging each school's test scores across all tests and grades.
Coming soon properties will soon be on the market, but are not yet available for showings.