$424,990
9342 Wheystone Drive Webster, FL 33597
For Sale MLS# TB8487814
3 beds 2 baths 1,683 sq ft Single Family
Details for 9342 Wheystone Drive
MLS# TB8487814
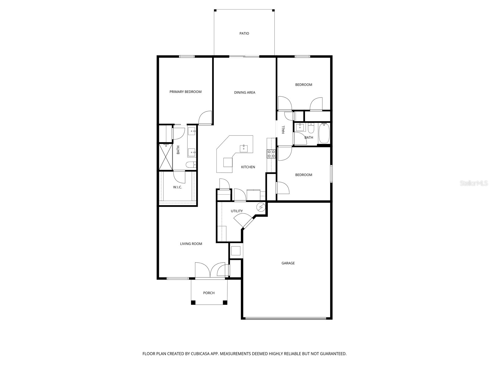
Description for 9342 Wheystone Drive, Webster, FL, 33597
Welcome to your brand-new home, sitting on just over an acre of land—plenty of space to spread out, relax, and make it your own. Whether you’re thinking about a pool, garden, or just enjoying the extra privacy, this property gives you the flexibility to do it all. Inside, you’ll find a clean, modern design with quality finishes throughout. The kitchen comes fully equipped with brand-new appliances and flows nicely into the main living areas, making it perfect for everyday living and having people over. There’s also a dedicated laundry room for added convenience, plus a spacious two-car garage with plenty of room for storage. If you’re looking for a move-in-ready home with modern touches and room to breathe, this one is definitely worth a look.
Listing Information
Property Type: Residential, Single Family Residence
Status: Active
Bedrooms: 3
Bathrooms: 2
Lot Size: 1.16 Acres
Square Feet: 1,683 sq ft
Year Built: 2026
Garage: Yes
Stories: 1 Story
Construction: Block,Stucco
Construction Display: New Construction
Subdivision: Ridge Manor Estate
Foundation: Other,Slab
County: Hernando
Construction Status: New Construction
Room Information
Main Floor
Primary Bedroom:
Kitchen:
Living Room:
Bathrooms
Full Baths: 2
Additonal Room Information
Laundry: Laundry Room
Interior Features
Appliances: Range Hood, Dishwasher, Microwave, Range, Refrigerator
Flooring: Other,Vinyl
Additional Interior Features: Ceiling Fan(s)
Utilities
Water: Well
Sewer: Septic Tank
Other Utilities: Electricity Connected
Cooling: Central Air, Ceiling Fan(s)
Heating: Central
Exterior / Lot Features
Attached Garage: Attached Garage
Garage Spaces: 2
Roof: Other, Shingle
Driving Directions
Merge into I275 N, Take exit 301 toward Brooksville, Orlando, turn right onto Cortez Blvd, drive 4.5 miles and turn left onto Treiman Blvd, drive 2.7 mi turn left onto Cornerstone Dr., in 1.1 mi turn right into Whetstone Dr. The destination is on your right : 9342 Whetstone Dr. Webster, FL.
Financial Considerations
Terms: Cash,Conventional,FHA,USDA Loan,VA Loan
Tax/Property ID: R23-122-21-0890-0660-0040
Tax Amount: 403
Tax Year: 2025
A broker reciprocity listing courtesy: EXP REALTY LLC
Based on information provided by Stellar MLS as distributed by the MLS GRID. Information from the Internet Data Exchange is provided exclusively for consumers’ personal, non-commercial use, and such information may not be used for any purpose other than to identify prospective properties consumers may be interested in purchasing. This data is deemed reliable but is not guaranteed to be accurate by Edina Realty, Inc., or by the MLS. Edina Realty, Inc., is not a multiple listing service (MLS), nor does it offer MLS access.
Copyright 2026 Stellar MLS as distributed by the MLS GRID. All Rights Reserved.
Payment Calculator
Interest rate and annual percentage rate (APR) are based on current market conditions, are for informational purposes only, are subject to change without notice and may be subject to pricing add-ons related to property type, loan amount, loan-to-value, credit score and other variables. Estimated closing costs used in the APR calculation are assumed to be paid by the borrower at closing. If the closing costs are financed, the loan, APR and payment amounts will be higher. If the down payment is less than 20%, mortgage insurance may be required and could increase the monthly payment and APR. Contact us for details. Additional loan programs may be available. Accuracy is not guaranteed, and all products may not be available in all borrower's geographical areas and are based on their individual situation. This is not a credit decision or a commitment to lend.
Sales History & Tax Summary for 9342 Wheystone Drive
Sales History
| Date | Price | |
|---|---|---|
| Currently not available. | ||
Tax Summary
| Tax Year | Estimated Market Value | Total Tax |
|---|---|---|
| Currently not available. | ||
Data powered by ATTOM Data Solutions. Copyright© 2026. Information deemed reliable but not guaranteed.
Schools
Schools nearby 9342 Wheystone Drive
| Schools in attendance boundaries | Grades | Distance | Rating |
|---|---|---|---|
| Loading... | |||
| Schools nearby | Grades | Distance | Rating |
|---|---|---|---|
| Loading... | |||
Data powered by ATTOM Data Solutions. Copyright© 2026. Information deemed reliable but not guaranteed.
The schools shown represent both the assigned schools and schools by distance based on local school and district attendance boundaries. Attendance boundaries change based on various factors and proximity does not guarantee enrollment eligibility. Please consult your real estate agent and/or the school district to confirm the schools this property is zoned to attend. Information is deemed reliable but not guaranteed.
SchoolDigger ® Rating
The SchoolDigger rating system is a 1-5 scale with 5 as the highest rating. SchoolDigger ranks schools based on test scores supplied by each state's Department of Education. They calculate an average standard score by normalizing and averaging each school's test scores across all tests and grades.
Coming soon properties will soon be on the market, but are not yet available for showings.