9500 Singer Circle Port Charlotte, FL 33981
For Sale MLS# C7519757
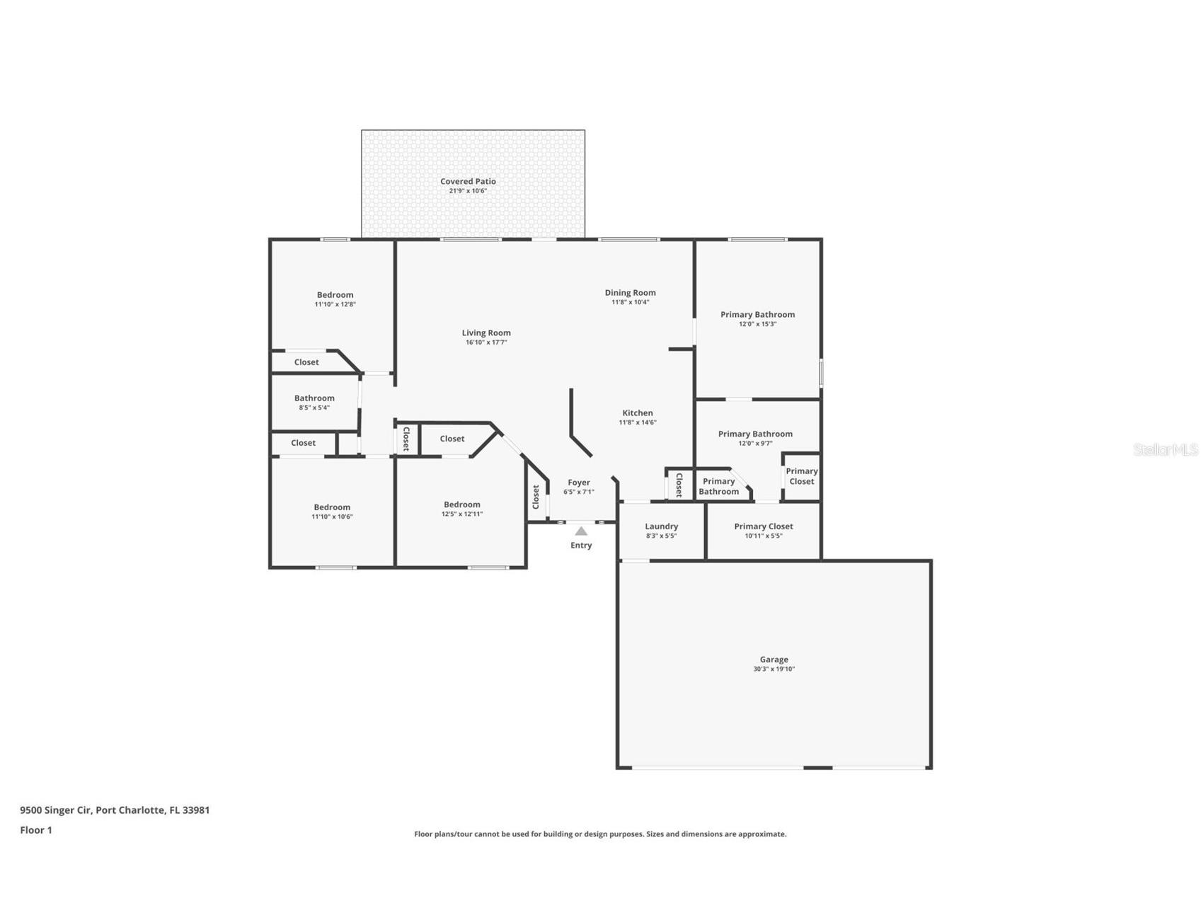
4 beds 2 baths 1,733 sq ft Single Family
Details for 9500 Singer Circle
MLS# C7519757
Description for 9500 Singer Circle, Port Charlotte, FL, 33981
Welcome to 9500 Singer Cir, a •BRAND NEW• never-lived in •WATERFRONT• 4-bedroom, 2-bath home, completed at the end of 2023 and located in the desirable South Gulf Cove community. This thoughtfully designed home features a split floor plan and cathedral ceilings in the living room, creating a bright, open space that feels warm and inviting from the moment you enter. The home offers a •3-CAR GARAGE•, an •OVERSIZED DRIVEWAY•, a welcoming front porch, and a relaxing back patio. Situated on a •GULF ACCESS SALT WATER CANAL•, boating enthusiasts can reach the bay in approximately 30 minutes by boat. The home currently has no seawall or dock providing a great opportunity for future customization. Conveniently located just off a main access road, the home offers easy access while maintaining a quiet, peaceful setting. You’ll be within 10 minutes of one of the most beautiful beaches in Southwest Florida and just over 1.5 miles from the South Gulf Cove community clubhouse, home to a weekly farmers’ market and various social events. South Gulf Cove is known for its friendly atmosphere, 55+ miles of scenic waterways, and active coastal lifestyle. Nearby South Englewood offers charming dining, shopping, and a laid-back Gulf Coast feel. This pristine new construction home blends modern comfort, waterfront living, and a welcoming community—ready for you to make it your own. Don’t forget to look at the available floor plan and 3d virtual tour to get a great idea to the home layout before you arrive. Call your favorite real estate agent to schedule your own private tour of this wonderful home!
Listing Information
Property Type: Residential, Single Family Residence
Status: Active
Bedrooms: 4
Bathrooms: 2
Lot Size: 0.23 Acres
Square Feet: 1,733 sq ft
Year Built: 2023
Garage: Yes
Stories: 1 Story
Construction: Block,Stucco
Construction Display: New Construction
Subdivision: Port Charlotte Sec 071
Builder: Adams Homes
Foundation: Slab
County: Charlotte
Construction Status: New Construction
Room Information
Main Floor
Porch: 10x21
Laundry: 5x8
Living Room: 17x16
Kitchen: 14x11
Dining Room: 10x11
Primary Bedroom: 15x12
Bathroom 3: 12x11
Bathroom 2: 10x11
Bedroom 1: 12x12
Bathrooms
Full Baths: 2
Additonal Room Information
Laundry: Inside
Interior Features
Appliances: Dishwasher, Range, Microwave
Flooring: Carpet,Tile
Additional Interior Features: Walk-In Closet(s), Built-in Features, Cathedral Ceiling(s), Stone Counters, Wood Cabinets
Utilities
Water: Public
Sewer: Public Sewer
Other Utilities: Electricity Connected,Municipal Utilities,Water Connected
Cooling: Central Air
Heating: Electric, Central
Exterior / Lot Features
Attached Garage: Attached Garage
Garage Spaces: 3
Parking Description: driveway, Off Street
Roof: Shingle
Lot View: Canal,Water
Additional Exterior/Lot Features: None, Storm/Security Shutters, Rain Gutters, Front Porch, Patio, Covered
Waterfront Details
Water Front Features: Canal Access
Driving Directions
From US 41, take RT 776 Southwest, then turn left on Gasparilla Rd. Turn left on to Keystone Blvd, then turn right on to Singer Circle. The property is on your left.
Financial Considerations
Terms: Cash,Conventional,FHA,VA Loan
Tax/Property ID: 412121379012
Tax Amount: 6447.35
Tax Year: 2025
A broker reciprocity listing courtesy: KW PEACE RIVER PARTNERS
Based on information provided by Stellar MLS as distributed by the MLS GRID. Information from the Internet Data Exchange is provided exclusively for consumers’ personal, non-commercial use, and such information may not be used for any purpose other than to identify prospective properties consumers may be interested in purchasing. This data is deemed reliable but is not guaranteed to be accurate by Edina Realty, Inc., or by the MLS. Edina Realty, Inc., is not a multiple listing service (MLS), nor does it offer MLS access.
Copyright 2026 Stellar MLS as distributed by the MLS GRID. All Rights Reserved.
Payment Calculator
Interest rate and annual percentage rate (APR) are based on current market conditions, are for informational purposes only, are subject to change without notice and may be subject to pricing add-ons related to property type, loan amount, loan-to-value, credit score and other variables. Estimated closing costs used in the APR calculation are assumed to be paid by the borrower at closing. If the closing costs are financed, the loan, APR and payment amounts will be higher. If the down payment is less than 20%, mortgage insurance may be required and could increase the monthly payment and APR. Contact us for details. Additional loan programs may be available. Accuracy is not guaranteed, and all products may not be available in all borrower's geographical areas and are based on their individual situation. This is not a credit decision or a commitment to lend.
Sales History & Tax Summary for 9500 Singer Circle
Sales History
| Date | Price | |
|---|---|---|
| Currently not available. | ||
Tax Summary
| Tax Year | Estimated Market Value | Total Tax |
|---|---|---|
| Currently not available. | ||
Data powered by ATTOM Data Solutions. Copyright© 2026. Information deemed reliable but not guaranteed.
Schools
Schools nearby 9500 Singer Circle
| Schools in attendance boundaries | Grades | Distance | Rating |
|---|---|---|---|
| Loading... | |||
| Schools nearby | Grades | Distance | Rating |
|---|---|---|---|
| Loading... | |||
Data powered by ATTOM Data Solutions. Copyright© 2026. Information deemed reliable but not guaranteed.
The schools shown represent both the assigned schools and schools by distance based on local school and district attendance boundaries. Attendance boundaries change based on various factors and proximity does not guarantee enrollment eligibility. Please consult your real estate agent and/or the school district to confirm the schools this property is zoned to attend. Information is deemed reliable but not guaranteed.
SchoolDigger ® Rating
The SchoolDigger rating system is a 1-5 scale with 5 as the highest rating. SchoolDigger ranks schools based on test scores supplied by each state's Department of Education. They calculate an average standard score by normalizing and averaging each school's test scores across all tests and grades.
Coming soon properties will soon be on the market, but are not yet available for showings.