9544 Mere Parkway Orlando, FL 32832
Pending MLS# O6303295
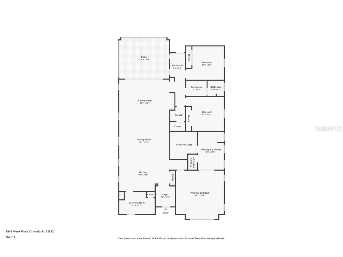
3 beds 2 baths 2,270 sq ft Single Family
Details for 9544 Mere Parkway
MLS# O6303295
Description for 9544 Mere Parkway, Orlando, FL, 32832
One or more photo(s) has been virtually staged. Southwest-facing home • 3D tour available • Seller-owned solar paid off at closing Built in 2019, this 3-bedroom / 2-bath, 2,270 sq ft single-story home sits in the gated Eagle Creek Golf Club community. This southwest orientation captures warm afternoon light throughout. Inside, the open-concept layout features a gourmet kitchen with upgraded quartz countertops, built-in oven, cooktop, large center island, pantry, and breakfast bar. The living and dining areas connect seamlessly to a covered lanai outfitted with a motorized screen and full-wall sliding doors — ideal for indoor/outdoor living. The home includes a dedicated laundry room with garden views, a mudroom with built-ins, and ceramic tile flooring throughout. The rear-entry two-car garage opens via a private extended driveway. Exterior paint carries a lifetime warranty, and the HVAC system is newer and well maintained. Oversized private backyard The seller-owned solar system will be paid off at closing, transferring the benefit of solar power to the buyer. The backyard features a planted privacy fence for added discretion. Eagle Creek offers resort-style amenities: clubhouse, pool, fitness center, tennis courts, golf course access, playground, sidewalks, and community recreation spaces. Schools serving this address include Eagle Creek Elementary, Luminary Middle (˜ 0.9 mi), and Lake Nona High School. Convenient access to Hwy 528 and 417, Lake Nona Town Center, Medical City Orlando, and Orlando International Airport (~11 mi). Includes full 3D walkthrough tour and video. Buyer to verify all measurements, systems, HOA details, and school assignments
Listing Information
Property Type: Residential, Single Family Residence
Status: Pending
Bedrooms: 3
Bathrooms: 2
Lot Size: 0.17 Acres
Square Feet: 2,270 sq ft
Year Built: 2019
Garage: Yes
Stories: 1 Story
Construction: Block,Concrete,Stucco
Subdivision: Eagle Crk Village K Ph 1a
Foundation: Slab
County: Orange
School Information
Elementary: Eagle Creek Elementary
Middle: Lake Nona Middle School
High: Lake Nona High
Room Information
Main Floor
Laundry: 8x13
Dining Room: 12x18
Primary Bedroom: 18x17
Primary Bathroom: 14x10
Bedroom 2: 12x14
Bedroom 3: 12x14
Living Room: 16x20
Kitchen: 12x18
Bathrooms
Full Baths: 2
Additonal Room Information
Laundry: Laundry Room
Interior Features
Appliances: Built-In Oven, Washer, Range Hood, Refrigerator, Cooktop, Dishwasher, Disposal, Dryer, Microwave
Flooring: Ceramic Tile
Doors/Windows: Window Treatments, Drapes
Additional Interior Features: Walk-In Closet(s), Split Bedrooms, Ceiling Fan(s), Eat-In Kitchen, High Ceilings, Living/Dining Room, Tray Ceiling(s), Window Treatments, Solid Surface Counters, Open Floorplan
Utilities
Water: Public
Sewer: Public Sewer
Other Utilities: Cable Available,Electricity Connected,High Speed Internet Available,Municipal Utilities,Sewer Connected,Water Connected
Cooling: Ceiling Fan(s), Central Air
Heating: Central
Exterior / Lot Features
Attached Garage: Attached Garage
Garage Spaces: 2
Parking Description: Garage Faces Rear, driveway
Roof: Tile
Pool: Association, Community
Lot View: Garden
Additional Exterior/Lot Features: Sprinkler/Irrigation, Rain Gutters, Lighting, Screened, Covered, Patio, Landscaped, Near Golf Course
Community Features
Community Features: Golf Carts OK, Dog Park, Gated, Fitness, Pool, Tennis Court(s), Sidewalks, Playground, Clubhouse, Golf
Security Features: Gated Community, Gated with Guard
Association Amenities: Playground, Fitness Center, Security, Tennis Court(s), Pool, Gated, Clubhouse
HOA Dues Include: Maintenance Grounds, Pool(s), Recreation Facilities
Homeowners Association: Yes
HOA Dues: $550 / Quarterly
Driving Directions
From Narcoossee Rd, turn left onto Eagle Creek Sanctuary Blvd, at the traffic circle, take the 1st exit onto Mere Pkwy, turn left onto Bucklow Hill Dr, turn right toward Beechwood Ln, turn right onto Beechwood Ln, turn right onto Mere Pkwy. Home will be on the right.
Financial Considerations
Terms: Cash,Conventional,VA Loan
Tax/Property ID: 32-24-31-2302-00-280
Tax Amount: 5263
Tax Year: 2024
A broker reciprocity listing courtesy: WEMERT GROUP REALTY LLC
Based on information provided by Stellar MLS as distributed by the MLS GRID. Information from the Internet Data Exchange is provided exclusively for consumers’ personal, non-commercial use, and such information may not be used for any purpose other than to identify prospective properties consumers may be interested in purchasing. This data is deemed reliable but is not guaranteed to be accurate by Edina Realty, Inc., or by the MLS. Edina Realty, Inc., is not a multiple listing service (MLS), nor does it offer MLS access.
Copyright 2026 Stellar MLS as distributed by the MLS GRID. All Rights Reserved.
Sales History & Tax Summary for 9544 Mere Parkway
Sales History
| Date | Price | |
|---|---|---|
| Currently not available. | ||
Tax Summary
| Tax Year | Estimated Market Value | Total Tax |
|---|---|---|
| Currently not available. | ||
Data powered by ATTOM Data Solutions. Copyright© 2026. Information deemed reliable but not guaranteed.
Schools
Schools nearby 9544 Mere Parkway
| Schools in attendance boundaries | Grades | Distance | Rating |
|---|---|---|---|
| Loading... | |||
| Schools nearby | Grades | Distance | Rating |
|---|---|---|---|
| Loading... | |||
Data powered by ATTOM Data Solutions. Copyright© 2026. Information deemed reliable but not guaranteed.
The schools shown represent both the assigned schools and schools by distance based on local school and district attendance boundaries. Attendance boundaries change based on various factors and proximity does not guarantee enrollment eligibility. Please consult your real estate agent and/or the school district to confirm the schools this property is zoned to attend. Information is deemed reliable but not guaranteed.
SchoolDigger ® Rating
The SchoolDigger rating system is a 1-5 scale with 5 as the highest rating. SchoolDigger ranks schools based on test scores supplied by each state's Department of Education. They calculate an average standard score by normalizing and averaging each school's test scores across all tests and grades.
Coming soon properties will soon be on the market, but are not yet available for showings.