$1,190,000
9598 Pine Lily Street Orlando, FL 32827
For Sale MLS# O6358620
5 beds 6 baths 3,797 sq ft Single Family
Details for 9598 Pine Lily Street
MLS# O6358620
Description for 9598 Pine Lily Street, Orlando, FL, 32827
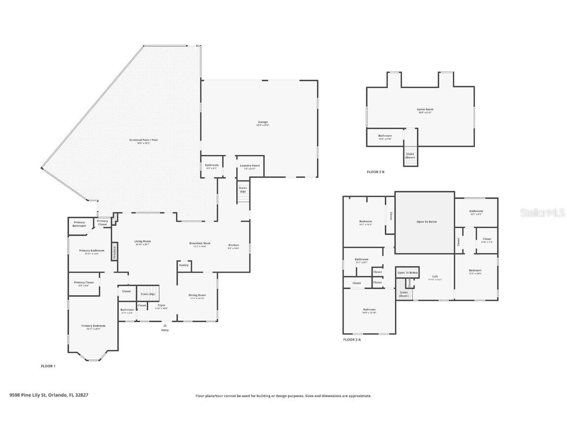
One or more photo(s) has been virtually staged. Welcome to this beautifully updated Bradford Custom Home—one of only four in NorthLake Park at Lake Nona. Perfectly positioned on an oversized corner lot across from a serene conservation area, this 5-bedroom, 4 full and 2 half bath residence spans 3,797 square feet of elegant living space, blending thoughtful design with timeless craftsmanship. The main floor features a bright, open layout with high ceilings and abundant natural light. The living room’s stone-accented gas fireplace and crown molding add warmth and charm, while French doors open to the screened pool and lanai. The gourmet kitchen, fully remodeled in 2022, includes top-of-the-line built-in appliances, quartz countertops, custom cabinetry, and a butler’s area with built-in desk and storage. Luxury vinyl flooring, plantation shutters, and wood details create a cohesive and welcoming atmosphere throughout the first level. The primary suite on the main floor offers a beautifully remodeled bath with dual sinks, a frameless glass shower, and a garden tub. Upstairs, the main second floor includes a spacious loft area and three large bedrooms, each featuring 5-inch maple hardwood floors and generous closet space. One of the bedrooms enjoys its own ensuite bathroom, while the others share a well-appointed full bath with Kohler glass shower doors. A private second-floor wing, located above the three-car garage, provides an oversized fifth bedroom with a full bath—ideal for guests, extended family, or a home office. This versatile layout makes it an ideal home for multigenerational living, offering both shared and private spaces for everyone. Step outside to your private backyard oasis. The screened saltwater pool and spa are surrounded by lush tropical landscaping, and the covered lanai with ceiling fans creates the perfect space for relaxing or entertaining. Beyond the pool area, a paver terrace with pergola and water feature adds even more outdoor living space. The side yard provides additional space for kids to run and play outside, extending the enjoyment of the home’s generous outdoor areas. The fenced yard features four access gates and mature landscaping that enhances privacy. Additional highlights include a three-car oversized garage, large driveway, irrigation system, outdoor lighting, and stone-accented exterior. NorthLake Park residents enjoy access to community amenities including a fitness center, pool, tennis courts, playgrounds, and walking trails—just minutes from Medical City, top-rated Lake Nona schools, shopping, and dining.
Listing Information
Property Type: Residential, Single Family Residence
Status: Active
Bedrooms: 5
Bathrooms: 6
Lot Size: 0.32 Acres
Square Feet: 3,797 sq ft
Year Built: 2005
Garage: Yes
Stories: 2 Story
Construction: Block,Stone,Stucco
Subdivision: Northlake Park At Lake Nona
Builder: Cam Bradford Custom Homes
Foundation: Slab
County: Orange
School Information
Elementary: Northlake Park Community
Middle: Lake Nona Middle School
High: Lake Nona High
Room Information
Main Floor
Living Room:
Dinette:
Dining Room:
Kitchen:
Porch:
Laundry:
Primary Bathroom:
Primary Bedroom:
Upper Floor
Game Room:
Bedroom 4:
Bedroom 3:
Bedroom 2:
Loft:
Bathrooms
Full Baths: 4
1/2 Baths: 2
Additonal Room Information
Laundry: Laundry Room, Inside
Interior Features
Appliances: Built-In Oven, Water Purifier, Dishwasher, Disposal, Cooktop, Microwave, Refrigerator
Flooring: Luxury Vinyl,Wood
Doors/Windows: Blinds, Window Treatments, Shutters
Fireplaces: Gas, Living Room
Additional Interior Features: Eat-In Kitchen, Walk-In Closet(s), Ceiling Fan(s), Other, Kitchen/Family Room Combo, Stone Counters, Open Floorplan, Wood Cabinets, Main Level Primary, Crown Molding, Living/Dining Room, High Ceilings, Window Treatments, Split Bedrooms, Built-in Features
Utilities
Water: Public
Sewer: Public Sewer
Other Utilities: Municipal Utilities
Cooling: Ceiling Fan(s), Central Air
Heating: Central, Electric
Exterior / Lot Features
Attached Garage: Attached Garage
Garage Spaces: 3
Parking Description: driveway, Garage, Garage Door Opener, Oversized
Roof: Shingle
Pool: Other, Salt Water, Community, In Ground
Fencing: fenced
Additional Exterior/Lot Features: Sprinkler/Irrigation, Rain Gutters, Other, Patio, Porch, Covered, Deck, Screened, Rear Porch, Front Porch, Corner Lot, Flat, Level, Landscaped, Oversized Lot, Conservation Area
Community Features
Community Features: Park, Fishing, Fitness, Water Access, Dock, Pool, Tennis Court(s), Playground, Sidewalks
Homeowners Association: Yes
HOA Dues: $420 / Quarterly
Driving Directions
From Orlando International Airport go East on 528 Beachline. Exit (R) South on Narcoossee road 2 miles. Take right west on Dowden Rd. Next Right-South on Pine Lily St last house on right - located across from conservation area on corner lot.
Financial Considerations
Terms: Cash,Conventional,VA Loan
Tax/Property ID: 01-24-30-6053-01-110
Tax Amount: 8403
Tax Year: 2024
A broker reciprocity listing courtesy: REAL BROKER, LLC
Based on information provided by Stellar MLS as distributed by the MLS GRID. Information from the Internet Data Exchange is provided exclusively for consumers’ personal, non-commercial use, and such information may not be used for any purpose other than to identify prospective properties consumers may be interested in purchasing. This data is deemed reliable but is not guaranteed to be accurate by Edina Realty, Inc., or by the MLS. Edina Realty, Inc., is not a multiple listing service (MLS), nor does it offer MLS access.
Copyright 2025 Stellar MLS as distributed by the MLS GRID. All Rights Reserved.
Payment Calculator
Interest rate and annual percentage rate (APR) are based on current market conditions, are for informational purposes only, are subject to change without notice and may be subject to pricing add-ons related to property type, loan amount, loan-to-value, credit score and other variables. Estimated closing costs used in the APR calculation are assumed to be paid by the borrower at closing. If the closing costs are financed, the loan, APR and payment amounts will be higher. If the down payment is less than 20%, mortgage insurance may be required and could increase the monthly payment and APR. Contact us for details. Additional loan programs may be available. Accuracy is not guaranteed, and all products may not be available in all borrower's geographical areas and are based on their individual situation. This is not a credit decision or a commitment to lend.
Sales History & Tax Summary for 9598 Pine Lily Street
Sales History
| Date | Price | Change |
|---|---|---|
| Currently not available. | ||
Tax Summary
| Tax Year | Estimated Market Value | Total Tax |
|---|---|---|
| Currently not available. | ||
Data powered by ATTOM Data Solutions. Copyright© 2025. Information deemed reliable but not guaranteed.
Schools
Schools nearby 9598 Pine Lily Street
| Schools in attendance boundaries | Grades | Distance | Rating |
|---|---|---|---|
| Loading... | |||
| Schools nearby | Grades | Distance | Rating |
|---|---|---|---|
| Loading... | |||
Data powered by ATTOM Data Solutions. Copyright© 2025. Information deemed reliable but not guaranteed.
The schools shown represent both the assigned schools and schools by distance based on local school and district attendance boundaries. Attendance boundaries change based on various factors and proximity does not guarantee enrollment eligibility. Please consult your real estate agent and/or the school district to confirm the schools this property is zoned to attend. Information is deemed reliable but not guaranteed.
SchoolDigger ® Rating
The SchoolDigger rating system is a 1-5 scale with 5 as the highest rating. SchoolDigger ranks schools based on test scores supplied by each state's Department of Education. They calculate an average standard score by normalizing and averaging each school's test scores across all tests and grades.
Coming soon properties will soon be on the market, but are not yet available for showings.