9601 Oakwood Drive Lake Wales, FL 33898
Pending MLS# TB8442448
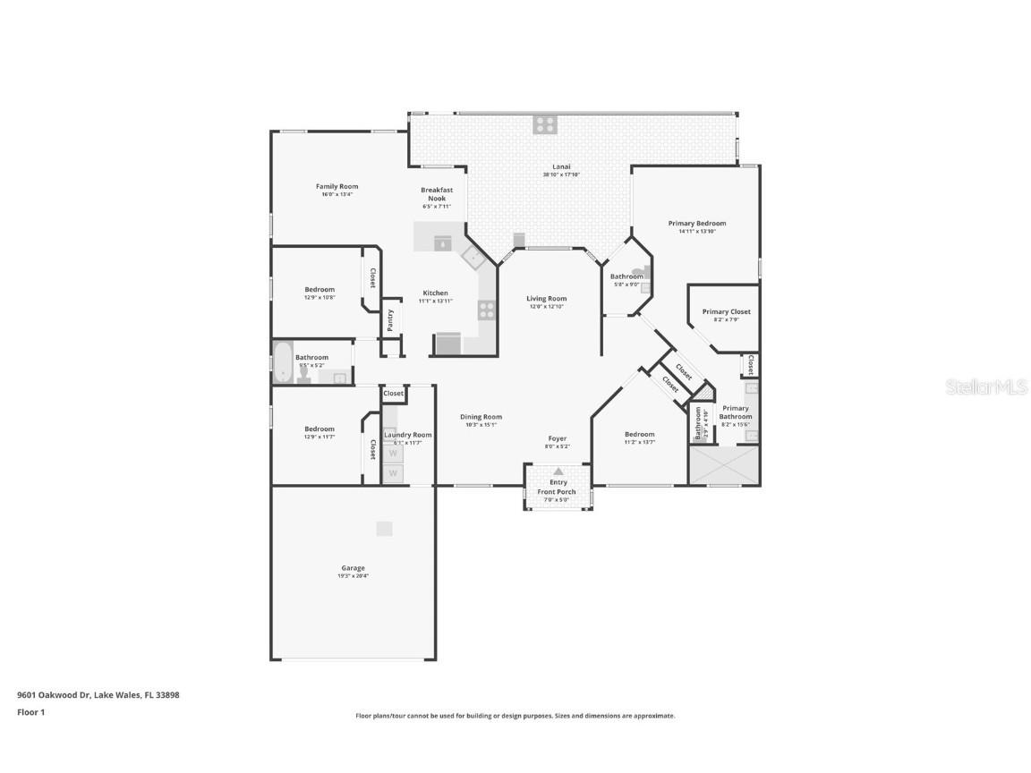
4 beds 3 baths 2,298 sq ft Single Family
Details for 9601 Oakwood Drive
MLS# TB8442448
Description for 9601 Oakwood Drive, Lake Wales, FL, 33898
Under contract-accepting backup offers. Welcome home to 9601 Oakwood Dr, a gorgeous 4-bedroom, 2 1/2-bath house built in 2022, sitting on a beautifully generous one-acre lot in the peaceful Walk-In-Water Lake Estates community. With approximately 2,298 sq ft of living space, you’ll enjoy roomy interiors, high ceilings (including tray ceilings in the primary suite, family, and dining rooms), and laminate flooring throughout for a fresh, easy-living feel. The kitchen features granite counters and a sleek gas stove, modern cabinetry, a breakfast bar, pendant and recessed lighting, a huge pantry, and a stylish tile backsplash. The primary suite delights with a double-shower layout, dual sinks, a vanity area, and plenty of storage. Stay safe with impact-/hurricane-resistant windows offering quiet comfort and peace of mind. Timeless French doors lead to the generous screen porch. Outside, kick back in the screened lanai (and screened front entry as a bonus) with serene natural foliage all around. Plenty of room for a pool! Or wander down for a sunset view at the community dock on the lake, or join in the fun at the Clubhouse. On the practical front, recent upgrades include a tankless water heater, water filtration/softener systems, an AC mini-split in the garage, guttering, upgraded ceiling fans/light fixtures, exterior electrical outlets, irrigation, and even a 12' × 25' storage shed. With the optional annual membership ($200), you gain access to the clubhouse, boat/fishing dock, playground, and rec park—ideal for relaxed living in a friendly neighborhood filled with respectful neighbors and natural surroundings. Come see how comfort, style, and ease meet in one place.
Listing Information
Property Type: Residential, Single Family Residence
Status: Pending
Bedrooms: 4
Bathrooms: 3
Lot Size: 1 Acres
Square Feet: 2,298 sq ft
Year Built: 2022
Garage: Yes
Stories: 1 Story
Construction: Block,Stucco
Subdivision: Walk In Water Lake Estates Ph 01
Foundation: Slab
County: Polk
School Information
Elementary: Spook Hill Elem
Middle: Frostproof Middle Se
High: Fort Meade Junior/Senior High
Room Information
Main Floor
Primary Bedroom:
Living Room:
Kitchen:
Bathrooms
Full Baths: 2
1/2 Baths: 1
Additonal Room Information
Laundry: Laundry Room, Inside
Interior Features
Appliances: Tankless Water Heater, Water Softener, Dryer, Dishwasher, Microwave, Range, Refrigerator, Washer
Flooring: Laminate
Doors/Windows: Storm Window(s)
Additional Interior Features: Walk-In Closet(s), Ceiling Fan(s), Eat-In Kitchen, Open Floorplan, Main Level Primary, Stone Counters, Kitchen/Family Room Combo
Utilities
Water: Public
Sewer: Septic Tank
Other Utilities: Electricity Connected,Propane,Water Connected
Cooling: Central Air, Ceiling Fan(s), Ductless
Heating: Electric
Exterior / Lot Features
Attached Garage: Attached Garage
Garage Spaces: 2
Parking Description: driveway, Covered, Garage Door Opener, Garage
Roof: Shingle
Lot View: Trees/Woods
Lot Dimensions: 150x290
Additional Exterior/Lot Features: Sprinkler/Irrigation, Screened, Front Porch, Rear Porch, Landscaped
Out Buildings: Shed(s)
Community Features
Community Features: Playground, Dock, Lake, Clubhouse, Fishing, Golf Carts OK
Security Features: Secured Garage/Parking, Closed Circuit Camera(s)
Association Amenities: Clubhouse
HOA Dues Include: Recreation Facilities
Homeowners Association: Yes
HOA Dues: $200 / Annually
Driving Directions
Tampa, I-75 to 60 E to Walk-in Water Rd to Oakwood Drive.
Financial Considerations
Terms: Cash,Conventional,FHA,USDA Loan,VA Loan
Tax/Property ID: 29-30-20-992830-002071
Tax Amount: 4403.26
Tax Year: 2024
A broker reciprocity listing courtesy: REDFIN CORPORATION
Based on information provided by Stellar MLS as distributed by the MLS GRID. Information from the Internet Data Exchange is provided exclusively for consumers’ personal, non-commercial use, and such information may not be used for any purpose other than to identify prospective properties consumers may be interested in purchasing. This data is deemed reliable but is not guaranteed to be accurate by Edina Realty, Inc., or by the MLS. Edina Realty, Inc., is not a multiple listing service (MLS), nor does it offer MLS access.
Copyright 2026 Stellar MLS as distributed by the MLS GRID. All Rights Reserved.
Sales History & Tax Summary for 9601 Oakwood Drive
Sales History
| Date | Price | |
|---|---|---|
| Currently not available. | ||
Tax Summary
| Tax Year | Estimated Market Value | Total Tax |
|---|---|---|
| Currently not available. | ||
Data powered by ATTOM Data Solutions. Copyright© 2026. Information deemed reliable but not guaranteed.
Schools
Schools nearby 9601 Oakwood Drive
| Schools in attendance boundaries | Grades | Distance | Rating |
|---|---|---|---|
| Loading... | |||
| Schools nearby | Grades | Distance | Rating |
|---|---|---|---|
| Loading... | |||
Data powered by ATTOM Data Solutions. Copyright© 2026. Information deemed reliable but not guaranteed.
The schools shown represent both the assigned schools and schools by distance based on local school and district attendance boundaries. Attendance boundaries change based on various factors and proximity does not guarantee enrollment eligibility. Please consult your real estate agent and/or the school district to confirm the schools this property is zoned to attend. Information is deemed reliable but not guaranteed.
SchoolDigger ® Rating
The SchoolDigger rating system is a 1-5 scale with 5 as the highest rating. SchoolDigger ranks schools based on test scores supplied by each state's Department of Education. They calculate an average standard score by normalizing and averaging each school's test scores across all tests and grades.
Coming soon properties will soon be on the market, but are not yet available for showings.