9716 28th Street E Parrish, FL 34219
Pending MLS# A4668937
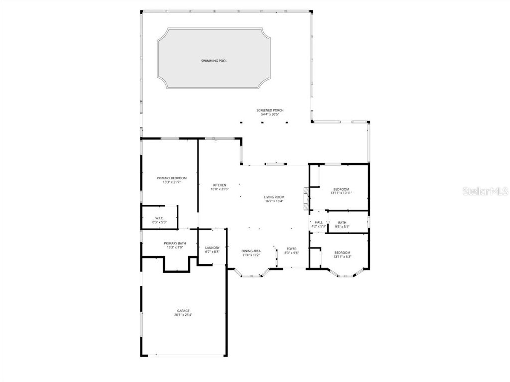
6 beds 5 baths 3,963 sq ft Single Family
Details for 9716 28th Street E
MLS# A4668937
Description for 9716 28th Street E, Parrish, FL, 34219
Under contract-accepting backup offers. Welcome to an incredible property offering endless opportunities for living, investing, or both — all set on over an acre of land. This unique estate features three separate dwellings, including a stunning primary 3-bedroom, 2-bathroom home with a private pool, a second 3-bedroom, 2-bathroom home that has been a successful short-term rental, and a third detached dwelling originally built as a shed but thoughtfully converted into a fully equipped living or office space with a bedroom, kitchenette, and full bathroom. Designed by a custom home designer, every inch of this property showcases meticulous craftsmanship and attention to detail. Inside the main home, you’ll find granite countertops, stainless steel appliances, and custom-built closets, all wrapped in a clean, modern aesthetic that blends style with comfort. The open-concept layout and natural light make the space perfect for everyday living or entertaining guests. The second home mirrors the same quality finishes, offering flexibility for income potential or extended family living. The third unit’s versatility adds even more value — ideal for a home office, guest suite, or creative studio. Outside, the property’s expansive acre-sized lot provides plenty of room for outdoor activities, gatherings, and future possibilities. Enjoy afternoons by the pool or evenings under the stars in a peaceful setting that still keeps you close to everything. Located just minutes from I-75, this property offers easy access to shopping, dining, and a rapidly growing community filled with new developments and amenities. Whether you’re looking for a multi-generational retreat, an investment property with multiple income streams, or a private compound to call home, this one-of-a-kind estate delivers it all. Opportunities like this are truly rare — a modern, well-designed property with this much flexibility and land in such a convenient location is truly a special find. Give me a call and schedule a showing today and see for yourself!
Listing Information
Property Type: Residential, Single Family Residence
Status: Pending
Bedrooms: 6
Bathrooms: 5
Lot Size: 1.04 Acres
Square Feet: 3,963 sq ft
Year Built: 1990
Garage: Yes
Stories: 1 Story
Construction: Block,Stucco
Subdivision: Ellenton Acres Unit Two
Foundation: Slab
County: Manatee
Room Information
Main Floor
Bathroom 2: 10x9
Bedroom 3: 11x11
Bedroom 2: 11x11
Dining Room: 11x10
Primary Bathroom: 10x13
Primary Bedroom: 16x13
Kitchen: 13x11
Living Room: 16x15
Bathrooms
Full Baths: 5
Additonal Room Information
Laundry: Inside
Interior Features
Appliances: Electric Water Heater, Range Hood, Microwave, Washer, Range, Refrigerator, Dishwasher, Disposal, Dryer, Cooktop, Convection Oven
Flooring: Luxury Vinyl,Tile
Fireplaces: Electric, Family Room
Additional Interior Features: Split Bedrooms, High Ceilings, Ceiling Fan(s), Vaulted Ceiling(s), Main Level Primary, Crown Molding, Kitchen/Family Room Combo, Open Floorplan, Solid Surface Counters, Stone Counters
Utilities
Water: Public
Sewer: Septic Tank
Other Utilities: Cable Available,Cable Connected,Electricity Available,Electricity Connected,High Speed Internet Available
Cooling: Ceiling Fan(s), Central Air
Heating: Central
Exterior / Lot Features
Attached Garage: Attached Garage
Garage Spaces: 2
Parking Description: driveway, Garage, Garage Door Opener
Roof: Shingle
Pool: Screen Enclosure, In Ground
Fencing: fenced
Additional Exterior/Lot Features: Storm/Security Shutters, Rain Gutters, Garden, Awning(s), Lighting, Corner Lot, Private, Irregular Lot, Oversized Lot, Outside City Limits
Out Buildings: Second Residence
Community Features
Security Features: Smoke Detector(s), Security System, Fire Alarm, Security Lights
Driving Directions
From I-75 take exit 224 301 to Ellenton. Turn Left on to 301 North. Turn right on to Old Tampa Road. Turn right on 98th Ave East. Property is on your right (9716 28th St E).
Financial Considerations
Terms: Cash,Conventional,FHA,VA Loan
Tax/Property ID: 859321655
Tax Amount: 9428
Tax Year: 2024
A broker reciprocity listing courtesy: PREFERRED SHORE LLC
Based on information provided by Stellar MLS as distributed by the MLS GRID. Information from the Internet Data Exchange is provided exclusively for consumers’ personal, non-commercial use, and such information may not be used for any purpose other than to identify prospective properties consumers may be interested in purchasing. This data is deemed reliable but is not guaranteed to be accurate by Edina Realty, Inc., or by the MLS. Edina Realty, Inc., is not a multiple listing service (MLS), nor does it offer MLS access.
Copyright 2026 Stellar MLS as distributed by the MLS GRID. All Rights Reserved.
Sales History & Tax Summary for 9716 28th Street E
Sales History
| Date | Price | |
|---|---|---|
| Currently not available. | ||
Tax Summary
| Tax Year | Estimated Market Value | Total Tax |
|---|---|---|
| Currently not available. | ||
Data powered by ATTOM Data Solutions. Copyright© 2026. Information deemed reliable but not guaranteed.
Schools
Schools nearby 9716 28th Street E
| Schools in attendance boundaries | Grades | Distance | Rating |
|---|---|---|---|
| Loading... | |||
| Schools nearby | Grades | Distance | Rating |
|---|---|---|---|
| Loading... | |||
Data powered by ATTOM Data Solutions. Copyright© 2026. Information deemed reliable but not guaranteed.
The schools shown represent both the assigned schools and schools by distance based on local school and district attendance boundaries. Attendance boundaries change based on various factors and proximity does not guarantee enrollment eligibility. Please consult your real estate agent and/or the school district to confirm the schools this property is zoned to attend. Information is deemed reliable but not guaranteed.
SchoolDigger ® Rating
The SchoolDigger rating system is a 1-5 scale with 5 as the highest rating. SchoolDigger ranks schools based on test scores supplied by each state's Department of Education. They calculate an average standard score by normalizing and averaging each school's test scores across all tests and grades.
Coming soon properties will soon be on the market, but are not yet available for showings.