$370,000
9737 Heatherwood Court Orlando, FL 32825
For Sale MLS# O6347894
3 beds 2 baths 1,396 sq ft Single Family
Details for 9737 Heatherwood Court
MLS# O6347894
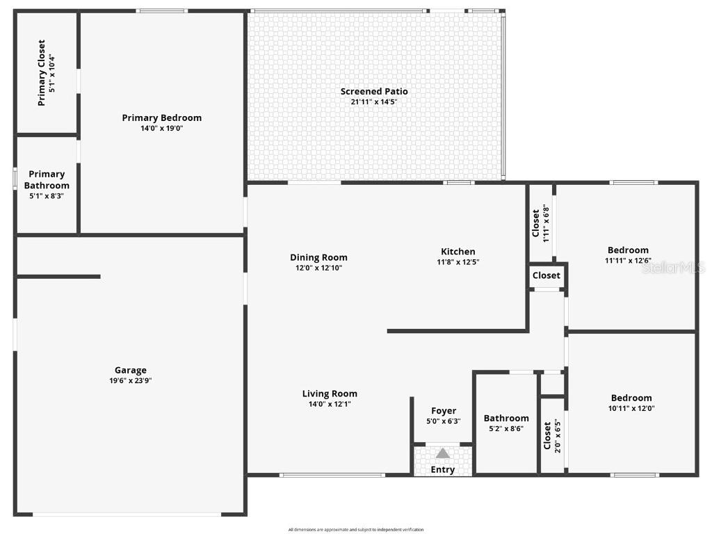
Description for 9737 Heatherwood Court, Orlando, FL, 32825
Three bedroom two bath solid block open plan home with large fenced back yard with a spacious screened back porch shaded by a beautiful live oak just waiting for your personal touch. This home has been recently improved with new porcelain floor tile as well as a fresh coat of paint on the ceiling and walls throughout. Nestled at the end of a cul de sac ensures that there is a reduced traffic flow. You’re just minutes from I-4, SR 408, SR 417, for easy commuting as well as Orlando International Airport, Orlando Executive, and Sanford International Airport. Plus, you have easy access to Florida’s East and West Coast beaches, world-class theme parks, the Dr. Phillips Performing Arts Center, Amway Center, zoos, shopping, dining, and so much more.
Listing Information
Property Type: Residential, Single Family Residence
Status: Active
Bedrooms: 3
Bathrooms: 2
Lot Size: 0.20 Acres
Square Feet: 1,396 sq ft
Year Built: 1985
Garage: Yes
Stories: 1 Story
Construction: Block
Construction Display: New Construction
Subdivision: Riverwood Village
Foundation: Block,Slab
County: Orange
Construction Status: Fixer
School Information
Elementary: Deerwood Elem (Orange Cty)
Middle: Liberty Middle
High: University High
Room Information
Main Floor
Bedroom 2: 11x12
Bedroom 1: 11x12
Primary Bedroom: 19x14
Living Room: 13x12
Dining Room: 11x12
Kitchen: 12x12
Bathrooms
Full Baths: 2
Additonal Room Information
Laundry: In Garage
Interior Features
Appliances: Range, Refrigerator
Flooring: Porcelain Tile,Travertine
Additional Interior Features: Living/Dining Room, Open Floorplan
Utilities
Water: Public
Sewer: Public Sewer
Other Utilities: Cable Connected,Electricity Connected
Cooling: Central Air
Heating: Central
Exterior / Lot Features
Attached Garage: Attached Garage
Garage Spaces: 2
Roof: Shingle
Additional Exterior/Lot Features: Rear Porch, Screened
Driving Directions
From I4 travel take exit SR-408 W/East-West Expwy/Ocoee Titusville/Titusville onto SR-408-TOLL E (East-West Expy). Travel 9.1 miles and Take exit 19 toward Dean Rd onto N Dean Rd. Travel for .7 miles. Turn right onto Lake Underhill Rd. Go for 0.4 mi. Turn left onto Riverwoods Cir. Go for 0.1 mi. Turn left onto Heatherwood Ct. Go for 381 ft. Home is on the left.
Financial Considerations
Terms: Cash,Conventional
Tax/Property ID: 31-22-31-7500-00-580
Tax Amount: 1438.21
Tax Year: 2024
A broker reciprocity listing courtesy: KELLER WILLIAMS HERITAGE REALTY
Based on information provided by Stellar MLS as distributed by the MLS GRID. Information from the Internet Data Exchange is provided exclusively for consumers’ personal, non-commercial use, and such information may not be used for any purpose other than to identify prospective properties consumers may be interested in purchasing. This data is deemed reliable but is not guaranteed to be accurate by Edina Realty, Inc., or by the MLS. Edina Realty, Inc., is not a multiple listing service (MLS), nor does it offer MLS access.
Copyright 2025 Stellar MLS as distributed by the MLS GRID. All Rights Reserved.
Payment Calculator
Interest rate and annual percentage rate (APR) are based on current market conditions, are for informational purposes only, are subject to change without notice and may be subject to pricing add-ons related to property type, loan amount, loan-to-value, credit score and other variables. Estimated closing costs used in the APR calculation are assumed to be paid by the borrower at closing. If the closing costs are financed, the loan, APR and payment amounts will be higher. If the down payment is less than 20%, mortgage insurance may be required and could increase the monthly payment and APR. Contact us for details. Additional loan programs may be available. Accuracy is not guaranteed, and all products may not be available in all borrower's geographical areas and are based on their individual situation. This is not a credit decision or a commitment to lend.
Sales History & Tax Summary for 9737 Heatherwood Court
Sales History
| Date | Price | Change |
|---|---|---|
| Currently not available. | ||
Tax Summary
| Tax Year | Estimated Market Value | Total Tax |
|---|---|---|
| Currently not available. | ||
Data powered by ATTOM Data Solutions. Copyright© 2025. Information deemed reliable but not guaranteed.
Schools
Schools nearby 9737 Heatherwood Court
| Schools in attendance boundaries | Grades | Distance | Rating |
|---|---|---|---|
| Loading... | |||
| Schools nearby | Grades | Distance | Rating |
|---|---|---|---|
| Loading... | |||
Data powered by ATTOM Data Solutions. Copyright© 2025. Information deemed reliable but not guaranteed.
The schools shown represent both the assigned schools and schools by distance based on local school and district attendance boundaries. Attendance boundaries change based on various factors and proximity does not guarantee enrollment eligibility. Please consult your real estate agent and/or the school district to confirm the schools this property is zoned to attend. Information is deemed reliable but not guaranteed.
SchoolDigger ® Rating
The SchoolDigger rating system is a 1-5 scale with 5 as the highest rating. SchoolDigger ranks schools based on test scores supplied by each state's Department of Education. They calculate an average standard score by normalizing and averaging each school's test scores across all tests and grades.
Coming soon properties will soon be on the market, but are not yet available for showings.