$245,000
982 Congress Court Casselberry, FL 32707
For Sale MLS# O6366180
2 beds 3 baths 1,350 sq ft Townhouse/Twinhome
Details for 982 Congress Court
MLS# O6366180
Description for 982 Congress Court, Casselberry, FL, 32707
One or more photo(s) has been virtually staged. Welcome to 982 Congress Court, a charming 2-bedroom townhome featuring two en-suite bathrooms upstairs and a convenient half bath downstairs for added comfort and functionality. This home offers a solid foundation with a brand new hot water heater (2025) and a roof replaced in 2018, giving you peace of mind as you add your personal touches. While it could use a bit of TLC, it holds great potential—whether you’re a first-time homebuyer looking to make a place your own or an investor seeking a promising opportunity. The main living and dining areas provide a welcoming flow, and the location offers easy access to a variety of nearby shops, restaurants, and everyday conveniences. Come check out all that the community has to offer!
Listing Information
Property Type: Residential, Townhouse
Status: Active
Bedrooms: 2
Bathrooms: 3
Lot Size: 0.04 Acres
Square Feet: 1,350 sq ft
Year Built: 1987
Stories: 2 Story
Construction: Block,Wood Frame
Subdivision: Summerhill Ph 1
Foundation: Slab
County: Seminole
School Information
Elementary: Sterling Park Elementary
Middle: South Seminole Middle
High: Lake Howell High
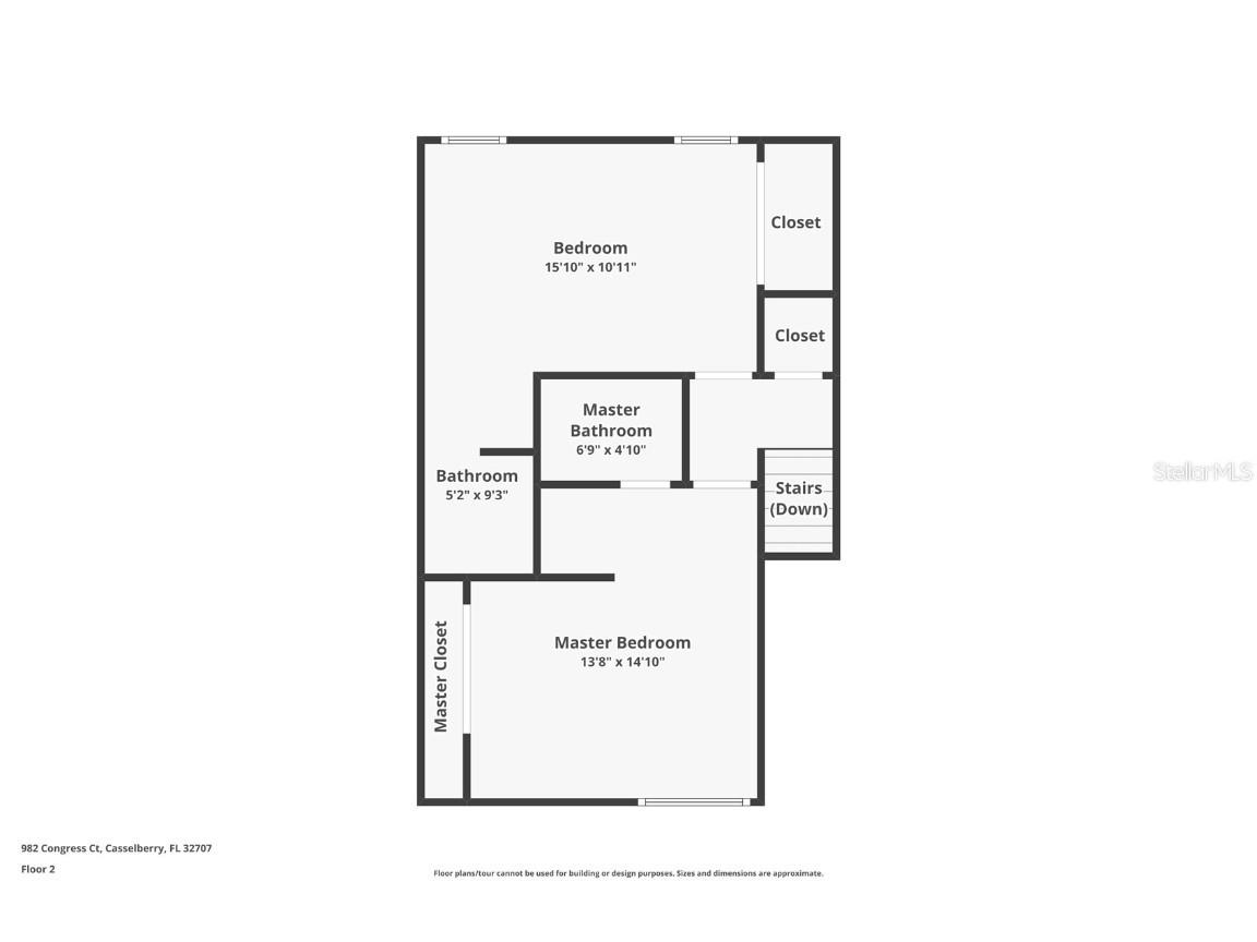
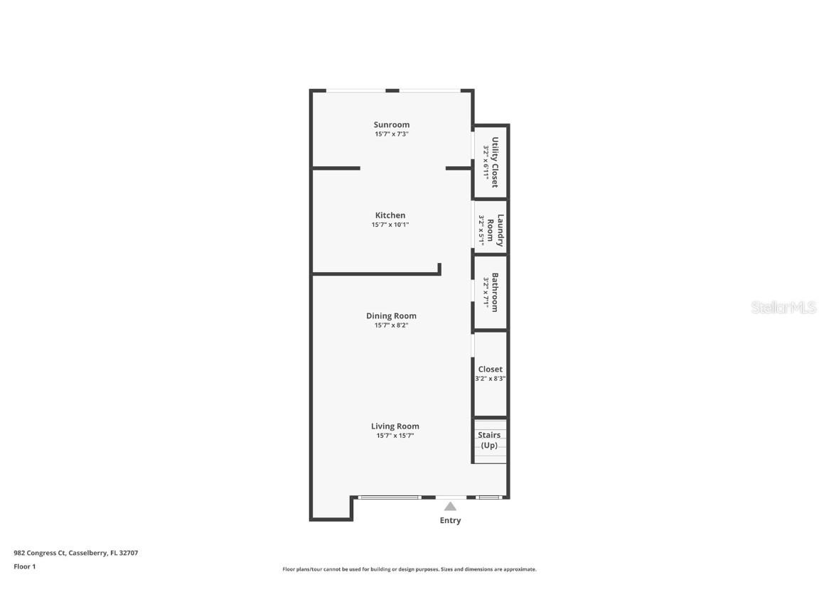
Room Information
Main Floor
Dinette: 7x16
Dining Room: 8x16
Kitchen: 10x16
Bathroom 1: 7x3
Living Room: 16x16
Upper Floor
Bathroom 2: 9x5
Bedroom 2: 11x16
Primary Bathroom: 5x7
Primary Bedroom: 15x14
Bathrooms
Full Baths: 2
1/2 Baths: 1
Additonal Room Information
Laundry: Inside
Interior Features
Appliances: Washer, Dishwasher, Dryer, Microwave, Range, Refrigerator, Electric Water Heater
Flooring: Carpet,Tile
Additional Interior Features: Ceiling Fan(s), Upper Level Primary, Solid Surface Counters
Utilities
Water: Public
Sewer: Public Sewer
Other Utilities: Cable Available,Electricity Available,Sewer Available,Water Available
Cooling: Central Air, Ceiling Fan(s)
Heating: Central
Exterior / Lot Features
Roof: Shingle
Pool: Community
Additional Exterior/Lot Features: Rain Gutters, Rear Porch, Landscaped
Community Features
Community Features: Pool, Sidewalks
HOA Dues Include: Pool(s)
Homeowners Association: Yes
HOA Dues: $142 / Monthly
Driving Directions
From I-4: Head east on I-4 to FL-414 E/Maitland Blvd. Take exit 90 A-B to merge onto FL-414 E/Maitland Blvd. Merge onto N Orlando Ave/S US 17/S US Hwy 17 92. Turn right onto FL-436 E. Use the 2nd from the left lane to turn slightly left and continue onto Flyover. Use the right lane to merge onto Red Bug Lake Rd. Turn left onto Boylston Pl and turn left onto Congress Ct. Destination will be on the left. From FL-417: Take 417 to exit 41 for Red Bug Lake Rd. Head west on Red bug Lake Rd and turn right onto Boylston Pl and turn left onto Congress Ct. Destination will be on the left.
Financial Considerations
Terms: Cash,Conventional,FHA,VA Loan
Tax/Property ID: 22-21-30-507-0000-0050
Tax Amount: 395
Tax Year: 2024
A broker reciprocity listing courtesy: KELLER WILLIAMS ADVANTAGE REALTY
Based on information provided by Stellar MLS as distributed by the MLS GRID. Information from the Internet Data Exchange is provided exclusively for consumers’ personal, non-commercial use, and such information may not be used for any purpose other than to identify prospective properties consumers may be interested in purchasing. This data is deemed reliable but is not guaranteed to be accurate by Edina Realty, Inc., or by the MLS. Edina Realty, Inc., is not a multiple listing service (MLS), nor does it offer MLS access.
Copyright 2025 Stellar MLS as distributed by the MLS GRID. All Rights Reserved.
Payment Calculator
Interest rate and annual percentage rate (APR) are based on current market conditions, are for informational purposes only, are subject to change without notice and may be subject to pricing add-ons related to property type, loan amount, loan-to-value, credit score and other variables. Estimated closing costs used in the APR calculation are assumed to be paid by the borrower at closing. If the closing costs are financed, the loan, APR and payment amounts will be higher. If the down payment is less than 20%, mortgage insurance may be required and could increase the monthly payment and APR. Contact us for details. Additional loan programs may be available. Accuracy is not guaranteed, and all products may not be available in all borrower's geographical areas and are based on their individual situation. This is not a credit decision or a commitment to lend.
Sales History & Tax Summary for 982 Congress Court
Sales History
| Date | Price | Change |
|---|---|---|
| Currently not available. | ||
Tax Summary
| Tax Year | Estimated Market Value | Total Tax |
|---|---|---|
| Currently not available. | ||
Data powered by ATTOM Data Solutions. Copyright© 2025. Information deemed reliable but not guaranteed.
Schools
Schools nearby 982 Congress Court
| Schools in attendance boundaries | Grades | Distance | Rating |
|---|---|---|---|
| Loading... | |||
| Schools nearby | Grades | Distance | Rating |
|---|---|---|---|
| Loading... | |||
Data powered by ATTOM Data Solutions. Copyright© 2025. Information deemed reliable but not guaranteed.
The schools shown represent both the assigned schools and schools by distance based on local school and district attendance boundaries. Attendance boundaries change based on various factors and proximity does not guarantee enrollment eligibility. Please consult your real estate agent and/or the school district to confirm the schools this property is zoned to attend. Information is deemed reliable but not guaranteed.
SchoolDigger ® Rating
The SchoolDigger rating system is a 1-5 scale with 5 as the highest rating. SchoolDigger ranks schools based on test scores supplied by each state's Department of Education. They calculate an average standard score by normalizing and averaging each school's test scores across all tests and grades.
Coming soon properties will soon be on the market, but are not yet available for showings.