$1,875,000
9861 Eagle Preserve Drive Englewood, FL 34224 - LEMON BAY INTRACOASTAL
For Sale MLS# D6145802
3 beds 3 baths 2,675 sq ft Single Family
Details for 9861 Eagle Preserve Drive
MLS# D6145802
Description for 9861 Eagle Preserve Drive, Englewood, FL, 34224 - LEMON BAY INTRACOASTAL
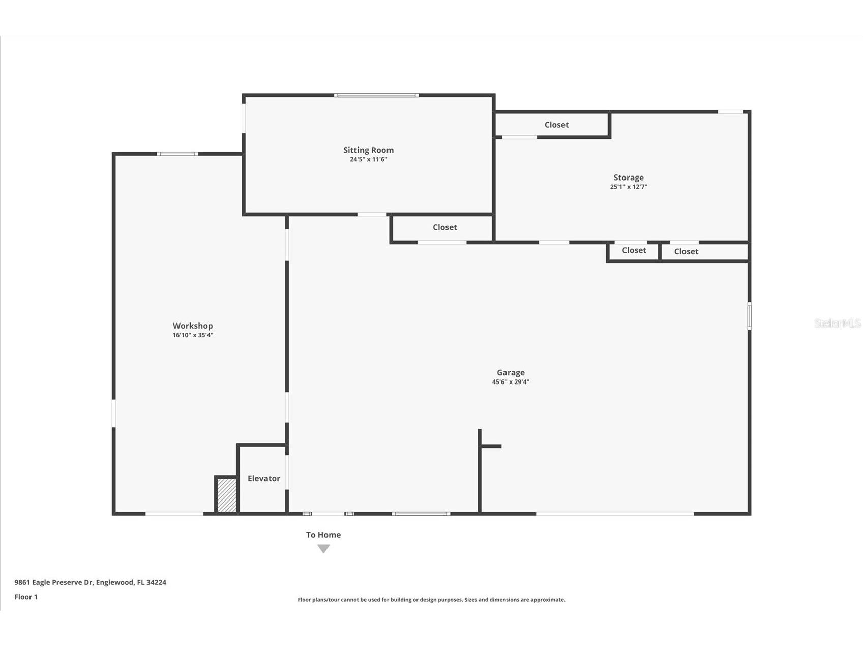
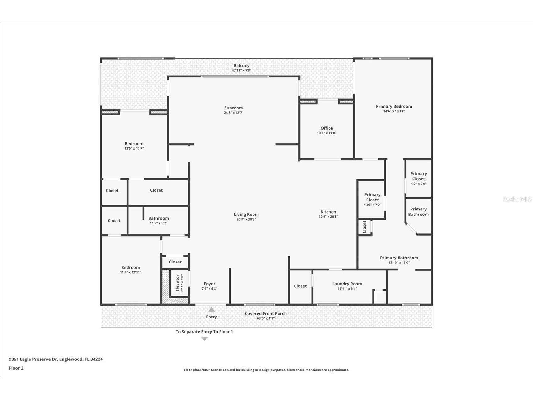
For those who appreciate the serenity and natural beauty of the Barrier Islands but prefer not to feel removed from essential conveniences, this location offers the perfect balance. Here, peaceful bayfront living meets the ease of having a golf course just steps away, creating a lifestyle where time on the water, time on the fairways, and time at home flow together seamlessly. Coastal relaxation, everyday practicality, and understated luxury combine to deliver an effortless way of living unique to Southwest Florida. Perfectly positioned along 111 feet of Lemon Bay waterfront, this contemporary home in the gated community of Eagle Preserve Estates offers exceptional coastal living with direct access to the Intracoastal Waterway. Located between the Lemon Bay Golf Course and Lemon Bay itself, and minutes from Boca Grande, the property combines privacy, water views, and a premier Southwest Florida lifestyle. The interior features luxury vinyl plank flooring, a private elevator, automated window treatments, and an enclosed waterside room with oversized picture windows that capture panoramic bay views. This climate-controlled space allows for year-round enjoyment of the waterfront setting. The chef style kitchen includes Quartz countertops, an induction cooktop, Microthermal microwave oven, Clear Cubes ice maker, Silgranite sinks, and a column refrigerator and freezer. Three ensuite bedrooms provide comfort and privacy for family and guests. The primary suite opens to a bayfront terrace with sunset views and includes two walk-in closets, dual vanities, an oversized walk-in shower, and a private commode. The lower level offers a large garage with 12 foot ceilings suitable for a car lift, a separate golf cart bay, workbench, cabinetry, two 50 amp outlets, and abundant storage. Outdoor amenities include a 47 foot heated saltwater lap pool overlooking Lemon Bay and a kayak accessible walkway for direct water access, with the ability to extend a dock if desired. This home is designed for recreation, relaxation, and refined waterfront living in Eagle Preserve Estates. Golf Membership is Not required.
Listing Information
Property Type: Residential, Single Family Residence
Status: Active
Bedrooms: 3
Bathrooms: 3
Lot Size: 0.51 Acres
Square Feet: 2,675 sq ft
Year Built: 2021
Garage: Yes
Stories: 2 Story
Construction: Block,Stucco
Subdivision: Eagle Preserve Estates
Foundation: Block,Slab
County: Charlotte
School Information
Elementary: Vineland Elementary
Middle: L.A. Ainger Middle
High: Lemon Bay High
Room Information
Upper Floor
Bedroom 3: 12x12
Bedroom 2: 12x12
Primary Bedroom: 14x19
Living Room: 20x18
Kitchen: 14x20
Bathrooms
Full Baths: 3
Additonal Room Information
Laundry: Inside, Laundry Room
Interior Features
Appliances: Ice Maker, Convection Oven, Exhaust Fan, Electric Water Heater, Microwave, Refrigerator, Washer, Cooktop, Dishwasher, Disposal, Dryer
Flooring: Luxury Vinyl
Doors/Windows: Window Treatments
Additional Interior Features: Split Bedrooms, Ceiling Fan(s), Elevator, High Ceilings, Living/Dining Room, Built-in Features, Cathedral Ceiling(s), Window Treatments, Walk-In Closet(s), Coffered Ceiling(s), Open Floorplan, Solid Surface Counters, Wood Cabinets, Main Level Primary, Kitchen/Family Room Combo
Utilities
Water: Public
Sewer: Public Sewer
Other Utilities: Cable Connected,Electricity Connected,High Speed Internet Available,Sewer Connected,Underground Utilities,Water Connected
Cooling: Ceiling Fan(s), Central Air
Heating: Electric, Central
Exterior / Lot Features
Attached Garage: Attached Garage
Garage Spaces: 3
Roof: Metal
Pool: Gunite, Salt Water, Screen Enclosure, Lap, In Ground, Heated
Lot View: Bay,Golf Course,Intercoastal,Water
Additional Exterior/Lot Features: Sprinkler/Irrigation, French Patio Doors, Outdoor Grill, Lighting, Covered, Deck, Screened, Front Porch
Waterfront Details
Standard Water Body: LEMON BAY INTRACOASTAL
Water Front Features: Bay Access, Intracoastal Access, Gulf Access, Bayfront
Community Features
Community Features: Waterfront, Gated, Golf Carts OK, Community Mailbox
Security Features: Gated Community, Fire Hydrant(s)
Association Amenities: Gated
HOA Dues Include: Common Areas, Road Maintenance, Association Management, Taxes
Homeowners Association: Yes
HOA Dues: $1,289 / Annually
Driving Directions
776 McCall to Winchester, make a left onto Placida Road and then a right at the light into Lemon Bay Golf Course. Drive past the Clubhouse to the entrance gate to Eagle Preserve Estates. 9861 Eagle Preserve Drive is the 8th house on the right.
Financial Considerations
Terms: Cash,Conventional
Tax/Property ID: 412028126004
Tax Amount: 21480.94
Tax Year: 2025
A broker reciprocity listing courtesy: COLDWELL BANKER SUNSTAR REALTY
Based on information provided by Stellar MLS as distributed by the MLS GRID. Information from the Internet Data Exchange is provided exclusively for consumers’ personal, non-commercial use, and such information may not be used for any purpose other than to identify prospective properties consumers may be interested in purchasing. This data is deemed reliable but is not guaranteed to be accurate by Edina Realty, Inc., or by the MLS. Edina Realty, Inc., is not a multiple listing service (MLS), nor does it offer MLS access.
Copyright 2026 Stellar MLS as distributed by the MLS GRID. All Rights Reserved.
Payment Calculator
Interest rate and annual percentage rate (APR) are based on current market conditions, are for informational purposes only, are subject to change without notice and may be subject to pricing add-ons related to property type, loan amount, loan-to-value, credit score and other variables. Estimated closing costs used in the APR calculation are assumed to be paid by the borrower at closing. If the closing costs are financed, the loan, APR and payment amounts will be higher. If the down payment is less than 20%, mortgage insurance may be required and could increase the monthly payment and APR. Contact us for details. Additional loan programs may be available. Accuracy is not guaranteed, and all products may not be available in all borrower's geographical areas and are based on their individual situation. This is not a credit decision or a commitment to lend.
Sales History & Tax Summary for 9861 Eagle Preserve Drive
Sales History
| Date | Price | |
|---|---|---|
| Currently not available. | ||
Tax Summary
| Tax Year | Estimated Market Value | Total Tax |
|---|---|---|
| Currently not available. | ||
Data powered by ATTOM Data Solutions. Copyright© 2026. Information deemed reliable but not guaranteed.
Schools
Schools nearby 9861 Eagle Preserve Drive
| Schools in attendance boundaries | Grades | Distance | Rating |
|---|---|---|---|
| Loading... | |||
| Schools nearby | Grades | Distance | Rating |
|---|---|---|---|
| Loading... | |||
Data powered by ATTOM Data Solutions. Copyright© 2026. Information deemed reliable but not guaranteed.
The schools shown represent both the assigned schools and schools by distance based on local school and district attendance boundaries. Attendance boundaries change based on various factors and proximity does not guarantee enrollment eligibility. Please consult your real estate agent and/or the school district to confirm the schools this property is zoned to attend. Information is deemed reliable but not guaranteed.
SchoolDigger ® Rating
The SchoolDigger rating system is a 1-5 scale with 5 as the highest rating. SchoolDigger ranks schools based on test scores supplied by each state's Department of Education. They calculate an average standard score by normalizing and averaging each school's test scores across all tests and grades.
Coming soon properties will soon be on the market, but are not yet available for showings.