$299,000
Off-Market Date: 03/04/2026989 Barrett Street Saint Paul, MN 55103
Pending MLS# 7002521
2 beds 1 baths 1,068 sq ft Single Family
Details for 989 Barrett Street
MLS# 7002521
Description for 989 Barrett Street, Saint Paul, MN, 55103
Impressive and Charming home in the heart of South Como! Updates Done In 2021-2023: New shingles on house and garage, roof decking and improved roof ventilation on house, sewer liner, completed back yard fencing, fresh paint inside, new brick patio.Updates Done in 2009: New carpeting, ceramic tile, plumbing, electric! Brand new kitchen & bath! New int/ext paint, beautiful stainless steel appliances, energy efficient washer/dryer! New "Energy Star" windows!New Boiler in 2020! Basement has space to add a 3rd Bedroom or Family Room! Window A/C in Main Level Bedroom Will NOT REMAIN with Property. Two window A/C units in the basement WILL REMAIN with property. Butcher Block Table in Kitchen WILL REMAIN with Property. This Gem will go fast!
Listing Information
Property Type: Residential, Single Family
Status: Pending
Bedrooms: 2
Bathrooms: 1
Lot Size: 0.11 Acres
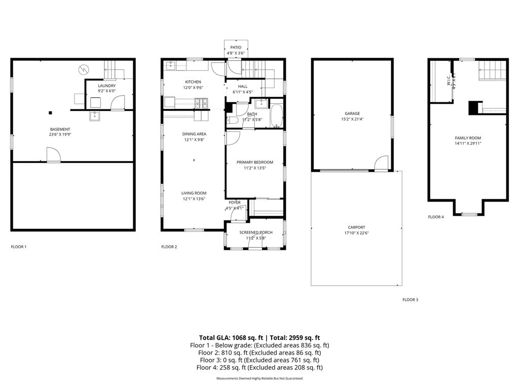
Square Feet: 1,068 sq ft
Year Built: 1912
Foundation: 780 sq ft
Garage: Yes
Stories: 1.5 Stories
Subdivision: Royal Oaks
County: Ramsey
Days On Market: 70
Construction Status: Previously Owned
School Information
District: 625 - St. Paul
Room Information
Main Floor
Bedroom 1: 14x11
Dining Room: 12x10
Foyer: 4.5x4
Kitchen: 12x10
Living Room: 13.5x12
Porch: 11x6
Upper Floor
Bedroom 2: 15x30
Lower Floor
Laundry: 9x6
Bathrooms
Full Baths: 1
Additonal Room Information
Dining: Breakfast Area,Informal Dining Room,Living/Dining Room
Laundry: In Basement, Washer Hookup, Laundry Room, Gas Dryer Hookup, Lower Level, Sink
Bath Description: Main Floor Full Bath
Interior Features
Square Footage above: 1,068 sq ft
Appliances: Electric Water Heater, Washer, Dryer, Dishwasher, Disposal, Range, Refrigerator, Microwave, Exhaust Fan/Hood
Basement: Storage Space, Concrete Block, Unfinished, Partial
Additional Interior Features: Washer/Dryer Hookup, Paneled Doors, Tile Floors, Ceiling Fan(s), Hardwood Floors, Kitchen Window
Utilities
Water: City Water/Connected
Sewer: City Sewer/Connected
Cooling: Window
Heating: Electric, Baseboard, Boiler, Natural Gas
Exterior / Lot Features
Garage Spaces: 1
Parking Description: Driveway - Asphalt, Detached Garage, Garage Dimensions - 21x15, Garage Sq Ft - 315.0
Exterior: Wood
Roof: Pitched, Age 8 Years or Less, Architectural Shingle
Lot Dimensions: 45x107x45x107
Zoning: Residential-Single Family
Fencing: Wood, Privacy, Chain Link, Full
Additional Exterior/Lot Features: Patio, Porch, Tree Coverage - Medium, Public Transit (w/in 6 blks), Road Frontage - Curbs, City, Paved Streets, Sidewalks
Driving Directions
Lexington North from 94, Right on Front Street, Left on Barrett, House on Left.
Financial Considerations
Tax/Property ID: 262923130211
Tax Amount: 4676
Tax Year: 2025
HomeStead Description: Homesteaded
A broker reciprocity listing courtesy: National Realty Guild
The data relating to real estate for sale on this web site comes in part from the Broker Reciprocity℠ Program of the Regional Multiple Listing Service of Minnesota, Inc. Real estate listings held by brokerage firms other than Edina Realty, Inc. are marked with the Broker Reciprocity℠ logo or the Broker Reciprocity℠ thumbnail and detailed information about them includes the name of the listing brokers. Edina Realty, Inc. is not a Multiple Listing Service (MLS), nor does it offer MLS access. This website is a service of Edina Realty, Inc., a broker Participant of the Regional Multiple Listing Service of Minnesota, Inc. IDX information is provided exclusively for consumers personal, non-commercial use and may not be used for any purpose other than to identify prospective properties consumers may be interested in purchasing. Open House information is subject to change without notice. Information deemed reliable but not guaranteed.
Copyright 2026 Regional Multiple Listing Service of Minnesota, Inc. All Rights Reserved.
Sales History & Tax Summary for 989 Barrett Street
Sales History
| Date | Price | |
|---|---|---|
| Currently not available. | ||
Tax Summary
| Tax Year | Estimated Market Value | Total Tax |
|---|---|---|
| Currently not available. | ||
Data powered by ATTOM Data Solutions. Copyright© 2026. Information deemed reliable but not guaranteed.
Schools
Schools nearby 989 Barrett Street
| Schools in attendance boundaries | Grades | Distance | Rating |
|---|---|---|---|
| Loading... | |||
| Schools nearby | Grades | Distance | Rating |
|---|---|---|---|
| Loading... | |||
Data powered by ATTOM Data Solutions. Copyright© 2026. Information deemed reliable but not guaranteed.
The schools shown represent both the assigned schools and schools by distance based on local school and district attendance boundaries. Attendance boundaries change based on various factors and proximity does not guarantee enrollment eligibility. Please consult your real estate agent and/or the school district to confirm the schools this property is zoned to attend. Information is deemed reliable but not guaranteed.
SchoolDigger ® Rating
The SchoolDigger rating system is a 1-5 scale with 5 as the highest rating. SchoolDigger ranks schools based on test scores supplied by each state's Department of Education. They calculate an average standard score by normalizing and averaging each school's test scores across all tests and grades.
Coming soon properties will soon be on the market, but are not yet available for showings.