$359,900
99 Princess Ruth Lane Palm Coast, FL 32164
For Sale MLS# FC313537
3 beds 2 baths 1,555 sq ft Single Family
Details for 99 Princess Ruth Lane
MLS# FC313537
Description for 99 Princess Ruth Lane, Palm Coast, FL, 32164
Under Construction. UP TO $10,000 IN BUILDER INCENTIVES!! NO ORIGINATION FEES - NO APPLICATION FEES, With our approved lender & $18,350 UPGRADES INCLUDED!! Welcome to your future dream home, where luxury meets comfort in every detail. This stunning new construction is a masterpiece of modern design, offering elegant living at its finest. Step inside through a grand 8' designer door onto Luxury Vinyl Plank flooring that flows throughout. Sunlight pours through front windows, enhancing the airy 9'4'' ceilings. An 8' sliding door connects indoor and outdoor spaces seamlessly. The chef's kitchen features shaker cabinets, quartz counters, stainless steel appliances. Every inch showcases craftsmanship and style. Model photos shown - 182 Bayside Dr. Open daily 11AM-5PM. Contact us to claim your new home.
Listing Information
Property Type: Residential, Single Family Residence
Status: Active
Bedrooms: 3
Bathrooms: 2
Lot Size: 0.26 Acres
Square Feet: 1,555 sq ft
Year Built: 2025
Garage: Yes
Stories: 1 Story
Construction: Block,Stucco
Construction Display: New Construction
Subdivision: Palm Coast Sec 24
Builder: CASPIAN INVESTMENTS LLC
Foundation: Slab
County: Flagler
Construction Status: Under Construction
School Information
Elementary: Wadsworth Elementary
Middle: Buddy Taylor Middle
High: Flagler-Palm Coast High
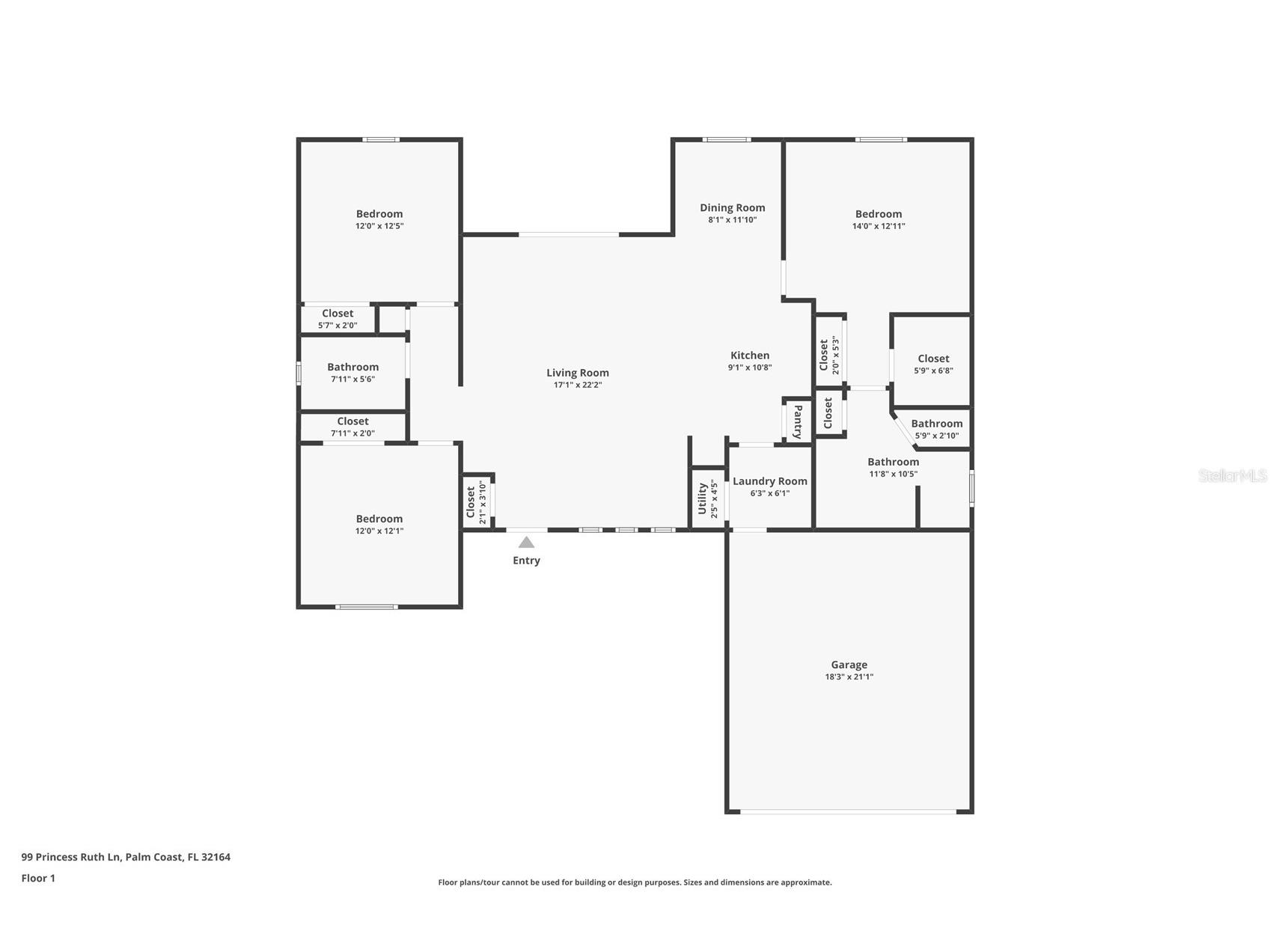
Room Information
Main Floor
Great Room:
Primary Bedroom: 14x16
Living Room: 14x18
Kitchen: 10x8
Bathrooms
Full Baths: 2
Additonal Room Information
Laundry: Inside, Laundry Room
Interior Features
Appliances: Electric Water Heater, Dishwasher, Disposal, Microwave, Range
Flooring: Luxury Vinyl
Additional Interior Features: Vaulted Ceiling(s), Eat-In Kitchen, Split Bedrooms, Walk-In Closet(s), Ceiling Fan(s), High Ceilings, Open Floorplan, Main Level Primary, Kitchen/Family Room Combo, Solid Surface Counters
Utilities
Water: Public
Sewer: Public Sewer
Other Utilities: Cable Available,Electricity Connected,Sewer Connected,Underground Utilities,Water Connected
Cooling: Ceiling Fan(s), Central Air
Heating: Central
Exterior / Lot Features
Attached Garage: Attached Garage
Garage Spaces: 2
Roof: Shingle
Additional Exterior/Lot Features: Other, Lighting, Covered, Front Porch, Rear Porch
Driving Directions
Take Belle Terre South turn left onto Pritchard Dr, right onto Princess Rose Dr, right onto Princess Kim Ln, left onto Princess Ruth Lane.
Financial Considerations
Terms: Cash,Conventional,FHA,VA Loan
Tax/Property ID: 07-11-31-7024-00040-0130
Tax Amount: 463.32
Tax Year: 2024
A broker reciprocity listing courtesy: EAZ REALTY LLC
Based on information provided by Stellar MLS as distributed by the MLS GRID. Information from the Internet Data Exchange is provided exclusively for consumers’ personal, non-commercial use, and such information may not be used for any purpose other than to identify prospective properties consumers may be interested in purchasing. This data is deemed reliable but is not guaranteed to be accurate by Edina Realty, Inc., or by the MLS. Edina Realty, Inc., is not a multiple listing service (MLS), nor does it offer MLS access.
Copyright 2025 Stellar MLS as distributed by the MLS GRID. All Rights Reserved.
Payment Calculator
Interest rate and annual percentage rate (APR) are based on current market conditions, are for informational purposes only, are subject to change without notice and may be subject to pricing add-ons related to property type, loan amount, loan-to-value, credit score and other variables. Estimated closing costs used in the APR calculation are assumed to be paid by the borrower at closing. If the closing costs are financed, the loan, APR and payment amounts will be higher. If the down payment is less than 20%, mortgage insurance may be required and could increase the monthly payment and APR. Contact us for details. Additional loan programs may be available. Accuracy is not guaranteed, and all products may not be available in all borrower's geographical areas and are based on their individual situation. This is not a credit decision or a commitment to lend.
Sales History & Tax Summary for 99 Princess Ruth Lane
Sales History
| Date | Price | Change |
|---|---|---|
| Currently not available. | ||
Tax Summary
| Tax Year | Estimated Market Value | Total Tax |
|---|---|---|
| Currently not available. | ||
Data powered by ATTOM Data Solutions. Copyright© 2025. Information deemed reliable but not guaranteed.
Schools
Schools nearby 99 Princess Ruth Lane
| Schools in attendance boundaries | Grades | Distance | Rating |
|---|---|---|---|
| Loading... | |||
| Schools nearby | Grades | Distance | Rating |
|---|---|---|---|
| Loading... | |||
Data powered by ATTOM Data Solutions. Copyright© 2025. Information deemed reliable but not guaranteed.
The schools shown represent both the assigned schools and schools by distance based on local school and district attendance boundaries. Attendance boundaries change based on various factors and proximity does not guarantee enrollment eligibility. Please consult your real estate agent and/or the school district to confirm the schools this property is zoned to attend. Information is deemed reliable but not guaranteed.
SchoolDigger ® Rating
The SchoolDigger rating system is a 1-5 scale with 5 as the highest rating. SchoolDigger ranks schools based on test scores supplied by each state's Department of Education. They calculate an average standard score by normalizing and averaging each school's test scores across all tests and grades.
Coming soon properties will soon be on the market, but are not yet available for showings.