9997 Sago Point Drive Seminole, FL 33777
For Sale MLS# TB8447908
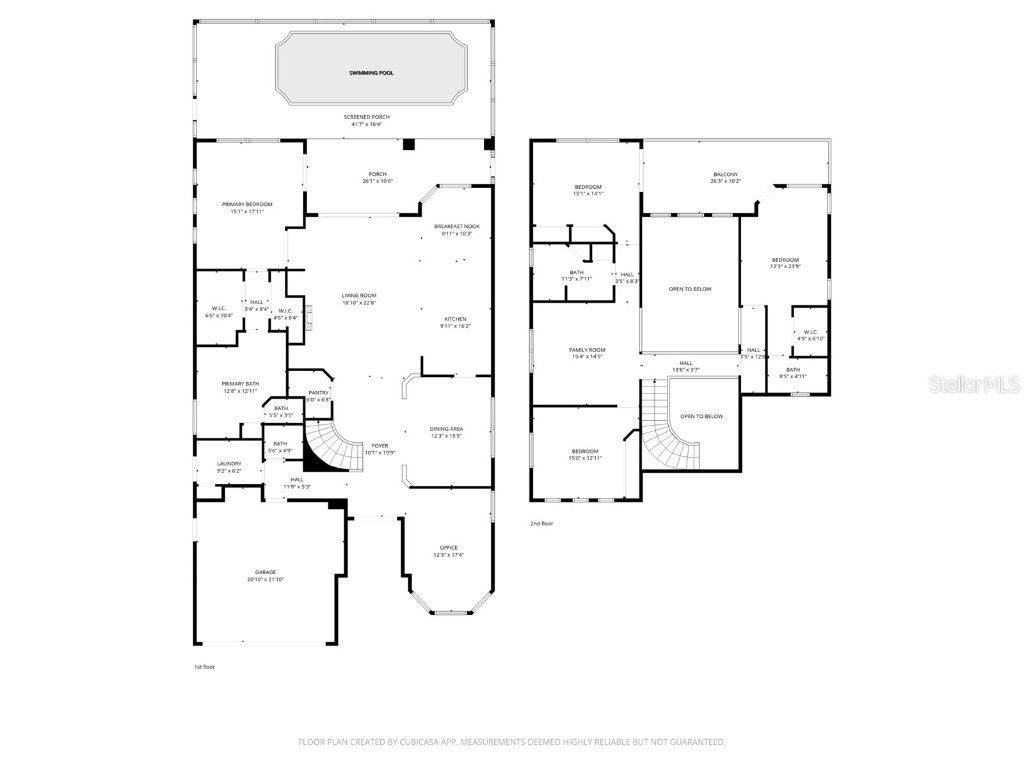
4 beds 4 baths 3,459 sq ft Single Family
Details for 9997 Sago Point Drive
MLS# TB8447908
Description for 9997 Sago Point Drive, Seminole, FL, 33777
Welcome to the highly sought after gated community of Bayou Club Golf & Country Club. This Sago Point property makes an unforgettable impression from the moment you enter with its grand curved staircase and soaring ceilings. With 3,459 square feet of living space, this is a rare find and one of the largest floor plans for a 4 bedroom, 3.5 bath property in this neighborhood. The thoughtfully designed floor plan features the main living areas on the primary floor. The kitchen underwent an extensive remodel and offers plenty of room for entertaining with a large waterfall quartz island that opens to the living room, a breakfast bar and adjacent formal dining area. A separate flex space provides the perfect spot for a home office or playroom and there’s also a convenient powder bath for guests and a laundry room on the first floor. The oversized primary suite is a true retreat with private access to the screened-in pool and lanai, plus an updated ensuite bath featuring double vanities, a soaking tub, a large walk-in shower, and two walk-in closets. Upstairs, you’ll find three additional bedrooms, two full bathrooms, and a loft-style living space. Major updates include a remodeled kitchen and bathrooms (2019), new flooring (2019), imported Egypt crystal chandeliers (2020), two new AC systems (2021), a brand-new roof (2025), and a new pool heater is being installed. The HOA covers lawn care, irrigation, trash, recycling, and 24-hour guarded gates, offering low-maintenance living in one of the area’s most prestigious gated communities.
Listing Information
Property Type: Residential, Single Family Residence
Status: Active
Bedrooms: 4
Bathrooms: 4
Lot Size: 0.23 Acres
Square Feet: 3,459 sq ft
Year Built: 2001
Garage: Yes
Stories: 2 Story
Construction: Block,Stucco
Subdivision: Bayou Club Estates Tr 5 Ph 3
Foundation: Slab
County: Pinellas
School Information
Elementary: Bardmoor Elementary-Pn
Middle: Osceola Middle-Pn
High: Dixie Hollins High-Pn
Room Information
Main Floor
Kitchen:
Living Room:
Laundry:
Dining Room:
Den:
Primary Bedroom:
Upper Floor
Bedroom 2:
Loft:
Bedroom 4:
Bedroom 3:
Bathrooms
Full Baths: 3
1/2 Baths: 1
Additonal Room Information
Laundry: Inside, Laundry Room
Interior Features
Appliances: Gas Water Heater, Range, Refrigerator, Microwave, Dishwasher, Dryer, Freezer, Water Softener, Range Hood, Washer
Flooring: Bamboo,Tile
Doors/Windows: Blinds
Fireplaces: Decorative, Living Room
Additional Interior Features: Cathedral Ceiling(s), High Ceilings, Separate/Formal Dining Room, Main Level Primary, Stone Counters, Ceiling Fan(s), Eat-In Kitchen, Split Bedrooms, Loft, Walk-In Closet(s)
Utilities
Water: Public
Sewer: Public Sewer
Other Utilities: Electricity Connected,Natural Gas Connected
Cooling: Ceiling Fan(s), Central Air
Heating: Central
Exterior / Lot Features
Attached Garage: Attached Garage
Garage Spaces: 2
Parking Description: driveway
Roof: Tile
Pool: Screen Enclosure, In Ground
Lot View: Pond,Water
Lot Dimensions: 82x125
Fencing: fenced, Other
Additional Exterior/Lot Features: Lighting, Balcony, Sprinkler/Irrigation, Rear Porch, Balcony, Covered, Deck, Enclosed, Screened, Corner Lot, Buyer Approval Required, Near Golf Course
Community Features
Community Features: Gated, Sidewalks, Lake, Clubhouse
Security Features: Gated Community, Gated with Guard
Association Amenities: Security
HOA Dues Include: Association Management, Maintenance Grounds, Trash, Security
Homeowners Association: Yes
HOA Dues: $335 / Monthly
Driving Directions
From Belcher Rd, turn into the community and proceed to the Guard Gate at 9000 Belcher Rd. Once through the gate, continue on Bayou Club Blvd N, turn right on Foxtail Rd, then right on Sago Point Dr.
Financial Considerations
Terms: Cash,Conventional,VA Loan
Tax/Property ID: 19-30-16-03817-000-0620
Tax Amount: 9342.9
Tax Year: 2024
A broker reciprocity listing courtesy: COMPASS FLORIDA LLC
Based on information provided by Stellar MLS as distributed by the MLS GRID. Information from the Internet Data Exchange is provided exclusively for consumers’ personal, non-commercial use, and such information may not be used for any purpose other than to identify prospective properties consumers may be interested in purchasing. This data is deemed reliable but is not guaranteed to be accurate by Edina Realty, Inc., or by the MLS. Edina Realty, Inc., is not a multiple listing service (MLS), nor does it offer MLS access.
Copyright 2025 Stellar MLS as distributed by the MLS GRID. All Rights Reserved.
Payment Calculator
Interest rate and annual percentage rate (APR) are based on current market conditions, are for informational purposes only, are subject to change without notice and may be subject to pricing add-ons related to property type, loan amount, loan-to-value, credit score and other variables. Estimated closing costs used in the APR calculation are assumed to be paid by the borrower at closing. If the closing costs are financed, the loan, APR and payment amounts will be higher. If the down payment is less than 20%, mortgage insurance may be required and could increase the monthly payment and APR. Contact us for details. Additional loan programs may be available. Accuracy is not guaranteed, and all products may not be available in all borrower's geographical areas and are based on their individual situation. This is not a credit decision or a commitment to lend.
Sales History & Tax Summary for 9997 Sago Point Drive
Sales History
| Date | Price | Change |
|---|---|---|
| Currently not available. | ||
Tax Summary
| Tax Year | Estimated Market Value | Total Tax |
|---|---|---|
| Currently not available. | ||
Data powered by ATTOM Data Solutions. Copyright© 2025. Information deemed reliable but not guaranteed.
Schools
Schools nearby 9997 Sago Point Drive
| Schools in attendance boundaries | Grades | Distance | Rating |
|---|---|---|---|
| Loading... | |||
| Schools nearby | Grades | Distance | Rating |
|---|---|---|---|
| Loading... | |||
Data powered by ATTOM Data Solutions. Copyright© 2025. Information deemed reliable but not guaranteed.
The schools shown represent both the assigned schools and schools by distance based on local school and district attendance boundaries. Attendance boundaries change based on various factors and proximity does not guarantee enrollment eligibility. Please consult your real estate agent and/or the school district to confirm the schools this property is zoned to attend. Information is deemed reliable but not guaranteed.
SchoolDigger ® Rating
The SchoolDigger rating system is a 1-5 scale with 5 as the highest rating. SchoolDigger ranks schools based on test scores supplied by each state's Department of Education. They calculate an average standard score by normalizing and averaging each school's test scores across all tests and grades.
Coming soon properties will soon be on the market, but are not yet available for showings.