Dayton, MN 55369
For Sale MLS# 7029908
4 beds 3 baths 2,271 sq ft Single Family
Details for
MLS# 7029908
Description for , Dayton, MN, 55369
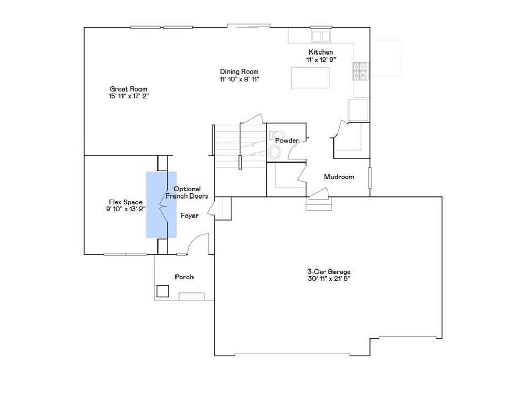
Now Open! Welcome to DCM Farms in Dayton, MN! Ideally located just minutes from Maple Grove and adjacent to Sundance Greens Golf Club, this brand-new master-planned community offers thoughtfully designed single-family homes. To-be-built home and will be completed in June! This beautifully designed two-story home offers modern living with thoughtful details throughout. The main level features an open-concept layout, highlighted by a spacious Great Room with an electric fireplace and seamless flow into the dining nook and kitchen. The kitchen includes a convenient corner pantry and abundant cabinetry. A versatile flex room with elegant glass French doors provides the perfect space for a home office, playroom, or additional living area. Upstairs, you’ll find three generous secondary bedrooms, a centrally located laundry room, and a luxurious owner’s suite complete with a private bath and walk-in closet. Stylish, functional, and move-in ready—this home is designed to fit your lifestyle. Schedule your tour today!
Listing Information
Property Type: Residential, Single Family
Status: Active
Bedrooms: 4
Bathrooms: 3
Lot Size: 0.20 Acres
Square Feet: 2,271 sq ft
Year Built: 2026
Foundation: 1,115 sq ft
Garage: Yes
Stories: 2 Stories
Date Available: 6/21/2026
Construction Display: New Construction
Completion date: 2026-06-21T05:00:00Z
Subdivision: Dcm Farms
Builder: LENNAR
County: Hennepin
Days On Market: 32
Construction Status: To Be Built/Floor Plan
School Information
District: 11 - Anoka-Hennepin
Room Information
Main Floor
Dining Room: 11x10
Flex Room: 10x13
Kitchen: 11x13
Living Room: 16x17
Upper Floor
Bedroom 1: 14x14
Bedroom 2: 11x10
Bedroom 3: 10x11
Bedroom 4: 11x11
Laundry: 8x6
Bathrooms
Full Baths: 1
3/4 Baths: 1
1/2 Baths: 1
Additonal Room Information
Family: Great Room,Main Level
Dining: Informal Dining Room,Kitchen/Dining Room
Laundry: Washer Hookup, Laundry Room, Upper Level, Gas Dryer Hookup
Bath Description: 3/4 Primary,Main Floor 1/2 Bath,Primary Walk-Thru,Private Primary,Upper Level Full Bath
Interior Features
Square Footage above: 2,271 sq ft
Appliances: Tankless Water Heater, Microwave, Range, Refrigerator, Air-To-Air Exchanger, Dishwasher, Disposal, Furnace Humidifier
Basement: Unfinished, Daylight/Lookout Windows
Fireplaces: 1, Living Room, Electric
Additional Interior Features: Kitchen Window, Walk-In Closet, Washer/Dryer Hookup, Kitchen Center Island, 2nd Floor Laundry, Primary Bdr Suite, 3 BR on One Level, 4 BR on One Level
Utilities
Water: City Water/Connected
Sewer: City Sewer/Connected
Cooling: Central
Heating: Natural Gas, Forced Air
Exterior / Lot Features
Attached Garage: Attached Garage
Garage Spaces: 3
Parking Description: Garage Door Opener, Driveway - Asphalt, Attached Garage, Garage Dimensions - 29x21, Garage Door Height - 8, Garage Sq Ft - 678.0
Exterior: Brick/Stone, Vinyl
Roof: Age 8 Years or Less, Asphalt Shingles
Lot Dimensions: TBD
Zoning: Residential-Single Family
Additional Exterior/Lot Features: Porch, Sod Included in Price, Road Frontage - Curbs, City
Community Features
HOA Dues Include: Sanitation, Snow Removal, Other
Homeowners Association: Yes
Association Name: Associa
HOA Dues: $181 / Quarterly
Driving Directions
Continue on I-494 N and take I-94 W to Maple Grove Pkwy in Maple Grove. Take exit 213 from I-94 W, then take Fernbrook Ln N to 115th Ave N in Dayton.
Financial Considerations
Tax/Property ID: TBD
Tax Year: 2026
HomeStead Description: Non-Homesteaded
A broker reciprocity listing courtesy: Lennar Sales Corp
The data relating to real estate for sale on this web site comes in part from the Broker Reciprocity℠ Program of the Regional Multiple Listing Service of Minnesota, Inc. Real estate listings held by brokerage firms other than Edina Realty, Inc. are marked with the Broker Reciprocity℠ logo or the Broker Reciprocity℠ thumbnail and detailed information about them includes the name of the listing brokers. Edina Realty, Inc. is not a Multiple Listing Service (MLS), nor does it offer MLS access. This website is a service of Edina Realty, Inc., a broker Participant of the Regional Multiple Listing Service of Minnesota, Inc. IDX information is provided exclusively for consumers personal, non-commercial use and may not be used for any purpose other than to identify prospective properties consumers may be interested in purchasing. Open House information is subject to change without notice. Information deemed reliable but not guaranteed.
Copyright 2026 Regional Multiple Listing Service of Minnesota, Inc. All Rights Reserved.
Payment Calculator
Interest rate and annual percentage rate (APR) are based on current market conditions, are for informational purposes only, are subject to change without notice and may be subject to pricing add-ons related to property type, loan amount, loan-to-value, credit score and other variables. Estimated closing costs used in the APR calculation are assumed to be paid by the borrower at closing. If the closing costs are financed, the loan, APR and payment amounts will be higher. If the down payment is less than 20%, mortgage insurance may be required and could increase the monthly payment and APR. Contact us for details. Additional loan programs may be available. Accuracy is not guaranteed, and all products may not be available in all borrower's geographical areas and are based on their individual situation. This is not a credit decision or a commitment to lend.
Sales History & Tax Summary for
Sales History
| Date | Price | |
|---|---|---|
| Currently not available. | ||
Tax Summary
| Tax Year | Estimated Market Value | Total Tax |
|---|---|---|
| Currently not available. | ||
Data powered by ATTOM Data Solutions. Copyright© 2026. Information deemed reliable but not guaranteed.
Schools
Schools nearby
| Schools in attendance boundaries | Grades | Distance | Rating |
|---|---|---|---|
| Loading... | |||
| Schools nearby | Grades | Distance | Rating |
|---|---|---|---|
| Loading... | |||
Data powered by ATTOM Data Solutions. Copyright© 2026. Information deemed reliable but not guaranteed.
The schools shown represent both the assigned schools and schools by distance based on local school and district attendance boundaries. Attendance boundaries change based on various factors and proximity does not guarantee enrollment eligibility. Please consult your real estate agent and/or the school district to confirm the schools this property is zoned to attend. Information is deemed reliable but not guaranteed.
SchoolDigger ® Rating
The SchoolDigger rating system is a 1-5 scale with 5 as the highest rating. SchoolDigger ranks schools based on test scores supplied by each state's Department of Education. They calculate an average standard score by normalizing and averaging each school's test scores across all tests and grades.
Coming soon properties will soon be on the market, but are not yet available for showings.