$350,000
Off-Market Date: 01/27/2026E4382 462nd Avenue Menomonie, WI 54751
Pending MLS# 6811993
3 beds 2 baths 1,685 sq ft Single Family
Details for E4382 462nd Avenue
MLS# 6811993
Description for E4382 462nd Avenue, Menomonie, WI, 54751
3BR/2 Full Bath UNIQUE BIRCH CREEK SOUTH MENOMONIE HOME! You will love the open KT/DR/LR w/the soaring vaulted ceiling and trendy electric fireplace, beautifully remodeled kitchen w/maple cabinets, quartz counters and soft close drawers, large master suite with double closet, full bath and separate vanity, and 3 car attached garage WITH one stall heated and insulated for a shop space if desired. Huge concrete patio area in rear for entertaining! 12" thick walls for efficiency! Many great updates include AC 2024, Furnace & water heater 2021, exterior just painted, shingles replaced with a 50 yr warranty and a wonderful 36' pergola added. This property includes a spacious 1.18 acre corner lot located outside the city limits for lower taxes and yet conveniently located near to River Heights Elementary, Menomonie High School, a close distance to UW-Stout and not far from the beautiful Red Cedar Trail! Roof replaced July 2025.
Listing Information
Property Type: Residential, Single Family
Status: Pending
Bedrooms: 3
Bathrooms: 2
Lot Size: 1.18 Acres
Square Feet: 1,685 sq ft
Year Built: 1986
Foundation: 1,685 sq ft
Garage: Yes
Stories: 1 Story
County: Dunn
Construction Status: Previously Owned
School Information
District: 3444 - Menomonie Area
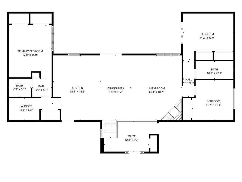
Room Information
Main Floor
Bathroom: 9x5
Bathroom: 11x5
Bedroom 1: 15x13
Bedroom 2: 11x11
Bedroom 3: 14x11
Dining Room: 18x9
Foyer: 11x9
Kitchen: 18x13
Laundry: 9x6
Living Room: 18x17
Bathrooms
Full Baths: 1
3/4 Baths: 1
Additonal Room Information
Dining: Kitchen/Dining Room,Living/Dining Room
Laundry: Main Level
Bath Description: Main Floor 3/4 Bath,Main Floor Full Bath
Interior Features
Square Footage above: 1,685 sq ft
Appliances: Washer, Range, Refrigerator, Microwave, Dishwasher, Dryer
Fireplaces: 1, Stone, Electric, Living Room
Additional Interior Features: Main Floor Laundry, 3 BR on One Level, All Living Facilities on One Level, Main Floor Primary
Utilities
Water: Well
Sewer: Private
Cooling: Central
Heating: Forced Air, Natural Gas
Exterior / Lot Features
Attached Garage: Attached Garage
Garage Spaces: 3
Parking Description: Driveway - Asphalt, Attached Garage, Insulated Garage, Garage Dimensions - 15x25 23x25, Garage Sq Ft - 950.0
Exterior: Wood
Roof: Age 8 Years or Less
Lot Dimensions: 1x1
Zoning: Residential-Single Family
Fencing: Invisible
Additional Exterior/Lot Features: Corner Lot, Road Frontage - Paved Streets
Driving Directions
Hwy 25 / Broadway South to West on 28th Avenue, to South on 440th Street, to West on 462nd Avenue. Near Pinewood Golf Course and 1 mile from Elementary & High School and churches.
Financial Considerations
Tax/Property ID: 1701622713030070001
Tax Amount: 3191.55
Tax Year: 2025
HomeStead Description: Homesteaded
A broker reciprocity listing courtesy: Rassbach Realty LLC
The data relating to real estate for sale on this web site comes in part from the Broker Reciprocity℠ Program of the Regional Multiple Listing Service of Minnesota, Inc. Real estate listings held by brokerage firms other than Edina Realty, Inc. are marked with the Broker Reciprocity℠ logo or the Broker Reciprocity℠ thumbnail and detailed information about them includes the name of the listing brokers. Edina Realty, Inc. is not a Multiple Listing Service (MLS), nor does it offer MLS access. This website is a service of Edina Realty, Inc., a broker Participant of the Regional Multiple Listing Service of Minnesota, Inc. IDX information is provided exclusively for consumers personal, non-commercial use and may not be used for any purpose other than to identify prospective properties consumers may be interested in purchasing. Open House information is subject to change without notice. Information deemed reliable but not guaranteed.
Copyright 2026 Regional Multiple Listing Service of Minnesota, Inc. All Rights Reserved.
Sales History & Tax Summary for E4382 462nd Avenue
Sales History
| Date | Price | |
|---|---|---|
| Currently not available. | ||
Tax Summary
| Tax Year | Estimated Market Value | Total Tax |
|---|---|---|
| Currently not available. | ||
Data powered by ATTOM Data Solutions. Copyright© 2026. Information deemed reliable but not guaranteed.
Schools
Schools nearby E4382 462nd Avenue
| Schools in attendance boundaries | Grades | Distance | Rating |
|---|---|---|---|
| Loading... | |||
| Schools nearby | Grades | Distance | Rating |
|---|---|---|---|
| Loading... | |||
Data powered by ATTOM Data Solutions. Copyright© 2026. Information deemed reliable but not guaranteed.
The schools shown represent both the assigned schools and schools by distance based on local school and district attendance boundaries. Attendance boundaries change based on various factors and proximity does not guarantee enrollment eligibility. Please consult your real estate agent and/or the school district to confirm the schools this property is zoned to attend. Information is deemed reliable but not guaranteed.
SchoolDigger ® Rating
The SchoolDigger rating system is a 1-5 scale with 5 as the highest rating. SchoolDigger ranks schools based on test scores supplied by each state's Department of Education. They calculate an average standard score by normalizing and averaging each school's test scores across all tests and grades.
Coming soon properties will soon be on the market, but are not yet available for showings.