$563,255
Hanover, MN 55341
For Sale MLS# 7043754
5 beds 4 baths 2,730 sq ft Single Family
Details for
MLS# 7043754
Description for , Hanover, MN, 55341
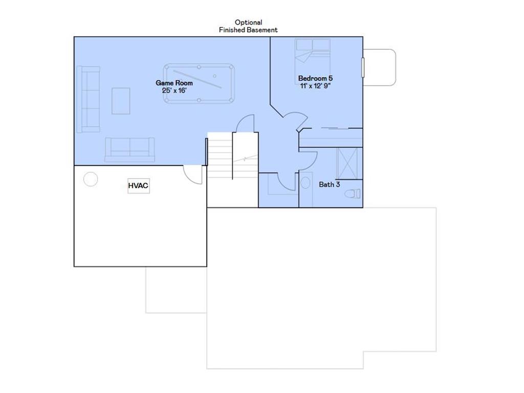
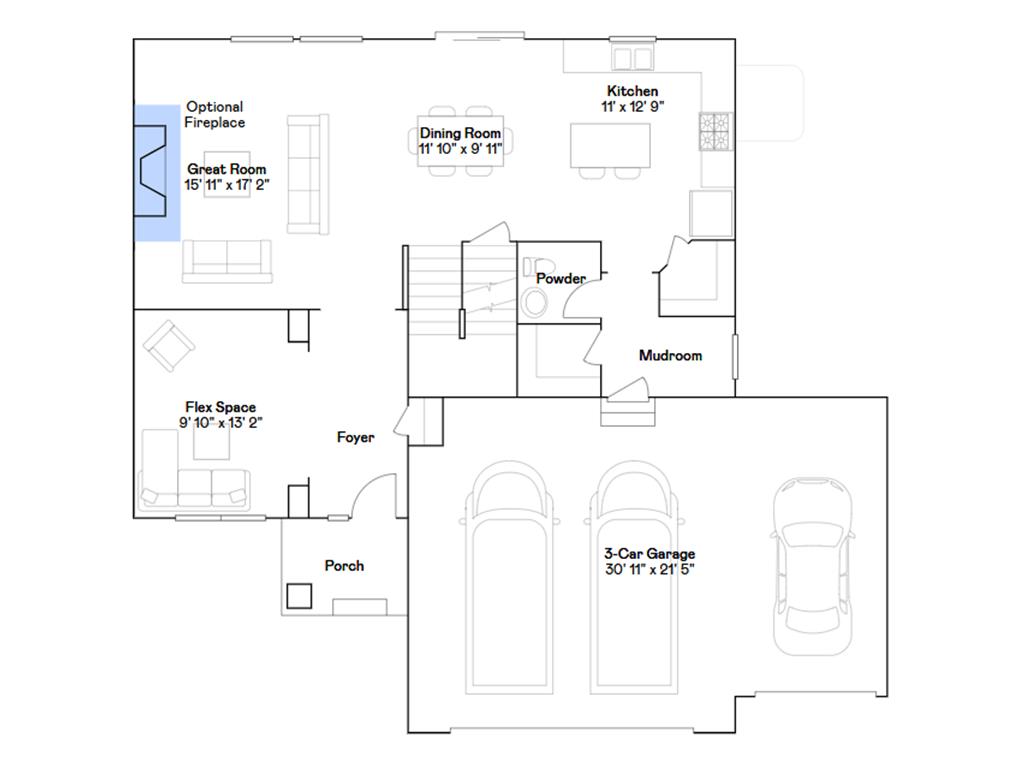
This home is under construction and available for a July closing! Step inside this stunning 2,730 square foot two-story home and discover a contemporary layout designed for modern living. The first floor welcomes you with a spacious Great Room that seamlessly connects to a stylish kitchen, featuring sleek cabinetry, Frigidaire® stainless steel appliances, Silestone® countertops and a designer backsplash. Enjoy the convenience of a corner pantry and a versatile flex space—perfect for work or play. Upstairs, retreat to the luxurious owner’s suite with a glass-enclosed shower and Moen® fixtures, plus three additional bedrooms and a laundry room for added ease. The finished walkout basement offers a large game room for entertaining, as well as a fifth bedroom and 3/4 bath. Energy-efficient details like Low-E dual pane windows, a programmable thermostat and a tankless water heater ensure comfort year-round. The fully drywalled three-car garage, complete with an insulated door and opener, offers ample space for vehicles and storage. Homes with this level of thoughtful design and premium finishes are in high demand—schedule your tour before it’s gone!
Listing Information
Property Type: Residential, Single Family
Status: Active
Bedrooms: 5
Bathrooms: 4
Lot Size: 0.20 Acres
Square Feet: 2,730 sq ft
Year Built: 2026
Foundation: 1,115 sq ft
Garage: Yes
Stories: 2 Stories
Date Available: 7/4/2026
Construction Display: New Construction
Completion date: 2026-07-04T05:00:00Z
Subdivision: Crow River Heights
Builder: LENNAR
County: Wright
Days On Market: 35
Construction Status: Under Construc/Spec Homes
School Information
District: 877 - Buffalo-Hanover-Montrose
Room Information
Main Floor
Flex Room: 9x13
Great Room: 16x17
Informal Dining Room: 11x10
Kitchen: 11x12
Upper Floor
Bedroom 1: 13x14
Bedroom 2: 11x10
Bedroom 3: 10x10
Bedroom 4: 11x10
Lower Floor
Bedroom 5: 11x13
Game Room: 25x16
Bathrooms
Full Baths: 1
3/4 Baths: 2
1/2 Baths: 1
Additonal Room Information
Family: Main Level
Dining: Informal Dining Room,Kitchen/Dining Room
Laundry: Washer Hookup, Laundry Room, Upper Level, Gas Dryer Hookup
Bath Description: 3/4 Basement,3/4 Primary,Main Floor 1/2 Bath,Private Primary,Upper Level Full Bath
Interior Features
Square Footage above: 2,271 sq ft
Square Footage below: 459 sq ft
Appliances: Tankless Water Heater, Stainless Steel Appliances, Microwave, Range, Refrigerator, Air-To-Air Exchanger, Dishwasher, Disposal, Furnace Humidifier
Basement: Walkout, Finished (Livable)
Fireplaces: 1, Living Room, Electric
Additional Interior Features: Kitchen Window, 2nd Floor Laundry, Washer/Dryer Hookup, Kitchen Center Island, Walk-In Closet, 3 BR on One Level, 4 BR on One Level
Utilities
Water: City Water/Connected
Sewer: City Sewer/Connected
Cooling: Central
Heating: Natural Gas, Fireplace, Forced Air
Exterior / Lot Features
Attached Garage: Attached Garage
Garage Spaces: 3
Parking Description: Garage Door Opener, Driveway - Asphalt, Attached Garage, Garage Door Height - 8, Garage Sq Ft - 678.0
Exterior: Brick/Stone, Vinyl
Roof: Asphalt Shingles, Age 8 Years or Less
Lot Dimensions: TBD
Zoning: Residential-Single Family
Additional Exterior/Lot Features: Porch, Sod Included in Price, Underground Utilities, Road Frontage - Paved Streets, Curbs
Driving Directions
Take I-494 N, I-94 W, 109th Ave N and County Rd 19
Financial Considerations
Tax/Property ID: TBD
Tax Year: 2026
HomeStead Description: Non-Homesteaded
A broker reciprocity listing courtesy: Lennar Sales Corp
The data relating to real estate for sale on this web site comes in part from the Broker Reciprocity℠ Program of the Regional Multiple Listing Service of Minnesota, Inc. Real estate listings held by brokerage firms other than Edina Realty, Inc. are marked with the Broker Reciprocity℠ logo or the Broker Reciprocity℠ thumbnail and detailed information about them includes the name of the listing brokers. Edina Realty, Inc. is not a Multiple Listing Service (MLS), nor does it offer MLS access. This website is a service of Edina Realty, Inc., a broker Participant of the Regional Multiple Listing Service of Minnesota, Inc. IDX information is provided exclusively for consumers personal, non-commercial use and may not be used for any purpose other than to identify prospective properties consumers may be interested in purchasing. Open House information is subject to change without notice. Information deemed reliable but not guaranteed.
Copyright 2026 Regional Multiple Listing Service of Minnesota, Inc. All Rights Reserved.
Payment Calculator
Interest rate and annual percentage rate (APR) are based on current market conditions, are for informational purposes only, are subject to change without notice and may be subject to pricing add-ons related to property type, loan amount, loan-to-value, credit score and other variables. Estimated closing costs used in the APR calculation are assumed to be paid by the borrower at closing. If the closing costs are financed, the loan, APR and payment amounts will be higher. If the down payment is less than 20%, mortgage insurance may be required and could increase the monthly payment and APR. Contact us for details. Additional loan programs may be available. Accuracy is not guaranteed, and all products may not be available in all borrower's geographical areas and are based on their individual situation. This is not a credit decision or a commitment to lend.
Sales History & Tax Summary for
Sales History
| Date | Price | |
|---|---|---|
| Currently not available. | ||
Tax Summary
| Tax Year | Estimated Market Value | Total Tax |
|---|---|---|
| Currently not available. | ||
Data powered by ATTOM Data Solutions. Copyright© 2026. Information deemed reliable but not guaranteed.
Schools
Schools nearby
| Schools in attendance boundaries | Grades | Distance | Rating |
|---|---|---|---|
| Loading... | |||
| Schools nearby | Grades | Distance | Rating |
|---|---|---|---|
| Loading... | |||
Data powered by ATTOM Data Solutions. Copyright© 2026. Information deemed reliable but not guaranteed.
The schools shown represent both the assigned schools and schools by distance based on local school and district attendance boundaries. Attendance boundaries change based on various factors and proximity does not guarantee enrollment eligibility. Please consult your real estate agent and/or the school district to confirm the schools this property is zoned to attend. Information is deemed reliable but not guaranteed.
SchoolDigger ® Rating
The SchoolDigger rating system is a 1-5 scale with 5 as the highest rating. SchoolDigger ranks schools based on test scores supplied by each state's Department of Education. They calculate an average standard score by normalizing and averaging each school's test scores across all tests and grades.
Coming soon properties will soon be on the market, but are not yet available for showings.