Hernando Beach, FL 34607
For Sale MLS# TB8444144
3 beds 2 baths 2,046 sq ft Single Family
Details for
MLS# TB8444144
Description for , Hernando Beach, FL, 34607
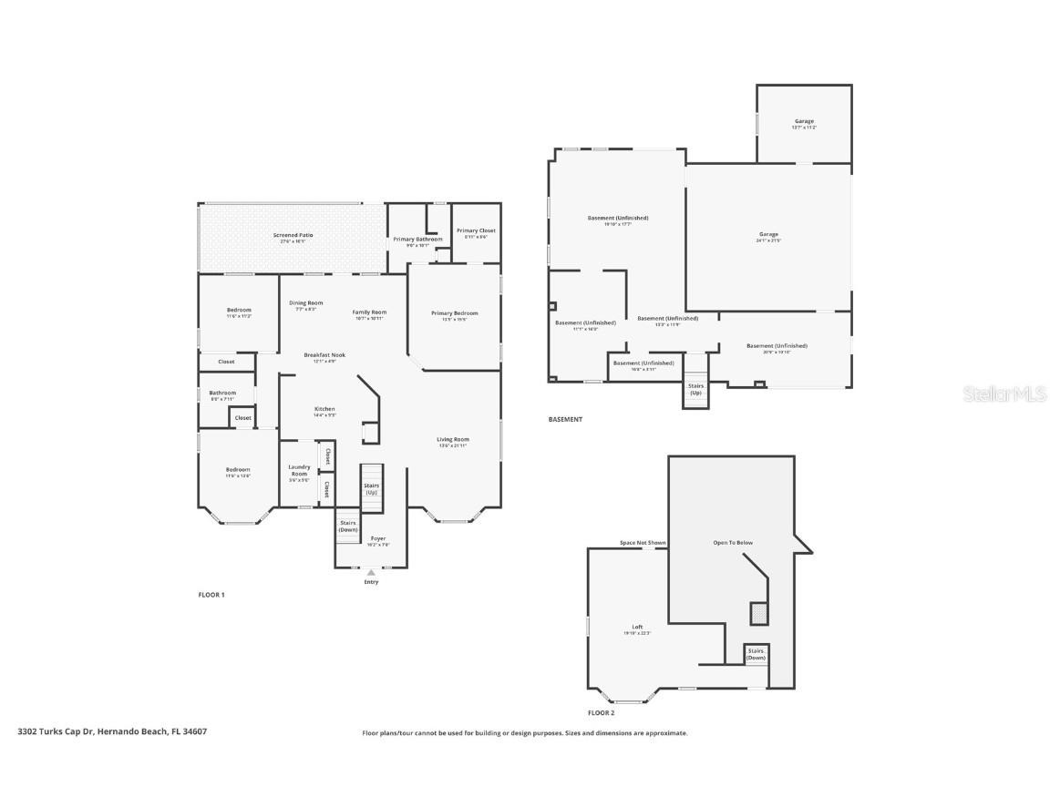
Enjoy the coastal lifestyle in this 3-level waterfront home located on a desirable corner lot in the boating community of Hernando Beach. Nestled in a peaceful neighborhood with indirect access to the Gulf of Mexico, this home offers the perfect blend of relaxation, recreation, and Florida charm. Hernando Beach is known for its laid-back atmosphere, scenic canals, proximity to the Gulf, Weeki Wachee River, local marinas, waterfront restaurants, and abundant nature preserves—truly a hidden gem along the Nature Coast. The second level serves as the main living space and is thoughtfully designed for both comfort and functionality. It features a spacious living room, family room, and dining area that flow nicely together, a centrally located kitchen with a breakfast nook, and direct access to a screened-in lanai that overlooks the tranquil canal. The primary bedroom includes an en-suite bathroom and large walk-in closet. Two additional guest bedrooms, a full bathroom, and a dedicated laundry room complete this floor, offering a practical layout ideal for everyday living or hosting guests. On the ground level, you'll find a generous 2-car garage with ample space for vehicles, storage, fishing supplies, kayaks and more. A covered outdoor area is perfect for staying cool by the water. Upstairs, the loft area features the perfect space for an office or sitting area. A west-facing walk-out porch captures beautiful sunset skies and only requires the railings to be reattached to reach its full potential. Recent updates include a 2020 A/C system and a durable metal roof, providing peace of mind for years to come. With indirect Gulf access, this home is ideal for boating, fishing, and embracing the waterfront lifestyle, offering endless opportunities to explore coastal waterways. This Hernando Beach home delivers the essence of waterfront living with added privacy and room to make it your own in one of Florida’s most scenic coastal communities.
Listing Information
Property Type: Residential, Single Family Residence
Status: Active
Bedrooms: 3
Bathrooms: 2
Lot Size: 0.20 Acres
Square Feet: 2,046 sq ft
Year Built: 1996
Garage: Yes
Construction: Wood Frame
Subdivision: Hernando Beach
Foundation: Pillar/Post/Pier
County: Hernando
School Information
Elementary: Westside Elementary-Hn
Middle: Fox Chapel Middle School
High: Weeki Wachee High School
Room Information
Upper Floor
Loft:
Primary Bedroom:
Living Room:
Laundry:
Kitchen:
Dining Room:
Bathroom 2:
Bedroom 3:
Bedroom 2:
Primary Bathroom:
Bathrooms
Full Baths: 2
Additonal Room Information
Laundry: Inside
Interior Features
Appliances: Dishwasher, Microwave, Range, Refrigerator
Flooring: Carpet,Ceramic Tile
Additional Interior Features: Ceiling Fan(s), Walk-In Closet(s), Main Level Primary, Solid Surface Counters, Stone Counters
Utilities
Water: Public
Sewer: Public Sewer
Other Utilities: Cable Available,Electricity Available
Cooling: Ceiling Fan(s), Central Air
Heating: Electric, Central
Exterior / Lot Features
Attached Garage: Attached Garage
Garage Spaces: 2
Roof: Shingle
Lot View: Canal,Ocean,Water
Additional Exterior/Lot Features: Lighting
Waterfront Details
Water Front Features: Gulf Access, Ocean Access, Canal Front
Driving Directions
Commercial Way to Osowaw Blvd, Left on Osowaw Blvd, Right on Shoal Line Blvd Left on Hermosa Blvd, Right on Turks Cap Dr, 80 ft Home is on the RIGHT
Financial Considerations
Terms: Cash,Conventional,FHA,VA Loan
Tax/Property ID: R13-223-16-2360-1140-0010
Tax Amount: 4128
Tax Year: 2024
A broker reciprocity listing courtesy: HOMAN REALTY GROUP INC
Based on information provided by Stellar MLS as distributed by the MLS GRID. Information from the Internet Data Exchange is provided exclusively for consumers’ personal, non-commercial use, and such information may not be used for any purpose other than to identify prospective properties consumers may be interested in purchasing. This data is deemed reliable but is not guaranteed to be accurate by Edina Realty, Inc., or by the MLS. Edina Realty, Inc., is not a multiple listing service (MLS), nor does it offer MLS access.
Copyright 2026 Stellar MLS as distributed by the MLS GRID. All Rights Reserved.
Payment Calculator
Interest rate and annual percentage rate (APR) are based on current market conditions, are for informational purposes only, are subject to change without notice and may be subject to pricing add-ons related to property type, loan amount, loan-to-value, credit score and other variables. Estimated closing costs used in the APR calculation are assumed to be paid by the borrower at closing. If the closing costs are financed, the loan, APR and payment amounts will be higher. If the down payment is less than 20%, mortgage insurance may be required and could increase the monthly payment and APR. Contact us for details. Additional loan programs may be available. Accuracy is not guaranteed, and all products may not be available in all borrower's geographical areas and are based on their individual situation. This is not a credit decision or a commitment to lend.
Sales History & Tax Summary for
Sales History
| Date | Price | |
|---|---|---|
| Currently not available. | ||
Tax Summary
| Tax Year | Estimated Market Value | Total Tax |
|---|---|---|
| Currently not available. | ||
Data powered by ATTOM Data Solutions. Copyright© 2026. Information deemed reliable but not guaranteed.
Schools
Schools nearby
| Schools in attendance boundaries | Grades | Distance | Rating |
|---|---|---|---|
| Loading... | |||
| Schools nearby | Grades | Distance | Rating |
|---|---|---|---|
| Loading... | |||
Data powered by ATTOM Data Solutions. Copyright© 2026. Information deemed reliable but not guaranteed.
The schools shown represent both the assigned schools and schools by distance based on local school and district attendance boundaries. Attendance boundaries change based on various factors and proximity does not guarantee enrollment eligibility. Please consult your real estate agent and/or the school district to confirm the schools this property is zoned to attend. Information is deemed reliable but not guaranteed.
SchoolDigger ® Rating
The SchoolDigger rating system is a 1-5 scale with 5 as the highest rating. SchoolDigger ranks schools based on test scores supplied by each state's Department of Education. They calculate an average standard score by normalizing and averaging each school's test scores across all tests and grades.
Coming soon properties will soon be on the market, but are not yet available for showings.