$450,000
Lutz, FL 33559
For Sale MLS# TB8455684
4 beds 2 baths 1,806 sq ft Single Family
Details for
MLS# TB8455684
Description for , Lutz, FL, 33559
Welcome to this beautifully updated home located in the highly desirable Oak Grove community! This property offers peace of mind and modern comfort with a long list of recent upgrades, including a brand-new roof (2025), new flooring (2025), fresh interior and exterior paint (2025), and updated windows and sliding doors in the master bedroom and second bedroom (2025). The HVAC system was replaced in 2022/2023, providing efficient cooling for years to come. Step outside and enjoy your backyard enhanced with newly planted lime, lemon, and mango trees, perfect for those who love fresh fruit or gardening. Oak Grove is an established community with NO CDD fees and a low HOA, offering affordability in a prime location. Conveniently situated near Denham Oaks Elementary, with school bus stops for middle and high school just a few steps away. You’ll also appreciate being minutes from Costco, multiple grocery stores, Tampa Premium Outlets, Wiregrass Mall, PopStroke, SR-54, I-75, and a wide variety of shopping, dining, and entertainment options. Don’t miss this opportunity to own a beautifully renovated home in one of Wesley Chapel’s most convenient and sought-after areas. Schedule your showing today!
Listing Information
Property Type: Residential, Single Family Residence
Status: Active
Bedrooms: 4
Bathrooms: 2
Lot Size: 0.20 Acres
Square Feet: 1,806 sq ft
Year Built: 2001
Garage: Yes
Stories: 1 Story
Construction: Stucco
Subdivision: Oak Grove Ph 2
Foundation: Slab
County: Pasco
Room Information
Main Floor
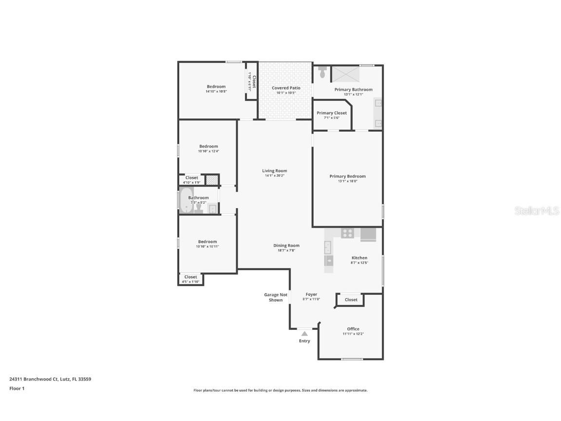
Primary Bedroom: 15x12
Living Room: 18x15
Kitchen: 12x10
Bathrooms
Full Baths: 2
Additonal Room Information
Laundry: In Garage
Interior Features
Flooring: Carpet
Additional Interior Features: Attic
Utilities
Sewer: Public Sewer
Other Utilities: Cable Available,Water Not Available
Cooling: Central Air
Heating: Central
Exterior / Lot Features
Garage Spaces: 3
Roof: Shingle
Additional Exterior/Lot Features: Other
Community Features
Homeowners Association: Yes
HOA Dues: $275 / Annually
Driving Directions
use gps
Financial Considerations
Tax/Property ID: 33-26-19-0100-00000-0370
Tax Amount: 3392
Tax Year: 2025
A broker reciprocity listing courtesy: MIRANDA LANDA REALTY GROUP LLC
Based on information provided by Stellar MLS as distributed by the MLS GRID. Information from the Internet Data Exchange is provided exclusively for consumers’ personal, non-commercial use, and such information may not be used for any purpose other than to identify prospective properties consumers may be interested in purchasing. This data is deemed reliable but is not guaranteed to be accurate by Edina Realty, Inc., or by the MLS. Edina Realty, Inc., is not a multiple listing service (MLS), nor does it offer MLS access.
Copyright 2025 Stellar MLS as distributed by the MLS GRID. All Rights Reserved.
Payment Calculator
Interest rate and annual percentage rate (APR) are based on current market conditions, are for informational purposes only, are subject to change without notice and may be subject to pricing add-ons related to property type, loan amount, loan-to-value, credit score and other variables. Estimated closing costs used in the APR calculation are assumed to be paid by the borrower at closing. If the closing costs are financed, the loan, APR and payment amounts will be higher. If the down payment is less than 20%, mortgage insurance may be required and could increase the monthly payment and APR. Contact us for details. Additional loan programs may be available. Accuracy is not guaranteed, and all products may not be available in all borrower's geographical areas and are based on their individual situation. This is not a credit decision or a commitment to lend.
Sales History & Tax Summary for
Sales History
| Date | Price | Change |
|---|---|---|
| Currently not available. | ||
Tax Summary
| Tax Year | Estimated Market Value | Total Tax |
|---|---|---|
| Currently not available. | ||
Data powered by ATTOM Data Solutions. Copyright© 2025. Information deemed reliable but not guaranteed.
Schools
Schools nearby
| Schools in attendance boundaries | Grades | Distance | Rating |
|---|---|---|---|
| Loading... | |||
| Schools nearby | Grades | Distance | Rating |
|---|---|---|---|
| Loading... | |||
Data powered by ATTOM Data Solutions. Copyright© 2025. Information deemed reliable but not guaranteed.
The schools shown represent both the assigned schools and schools by distance based on local school and district attendance boundaries. Attendance boundaries change based on various factors and proximity does not guarantee enrollment eligibility. Please consult your real estate agent and/or the school district to confirm the schools this property is zoned to attend. Information is deemed reliable but not guaranteed.
SchoolDigger ® Rating
The SchoolDigger rating system is a 1-5 scale with 5 as the highest rating. SchoolDigger ranks schools based on test scores supplied by each state's Department of Education. They calculate an average standard score by normalizing and averaging each school's test scores across all tests and grades.
Coming soon properties will soon be on the market, but are not yet available for showings.