$510,000
W20744 Hammer Gale, WI 54630
For Sale MLS# 1944793
5 beds 3 baths 3,526 sq ft Single Family
OPEN HOUSE: Tuesday, 12/16 02:00 PM - 04:30 PM
Details for W20744 Hammer
MLS# 1944793
Description for W20744 Hammer, Gale, WI, 54630
Secluded 5 bedroom ranch on 3+ acres gives you your private country retreat. This little slice of paradise is surrounded by sprawling crop fields and offers unmatched seclusion and serenity. The home offers generous sized bedrooms and a spacious great room with a gorgeous stone fireplace mantle that beautifully frames the cozy gas fireplace. The family/rec room offers ample room for games/movies and bar is included. Oversized 3 car attached garage and a huge 36' x 27' pole shed that's ideal for toys, equipment, workshop or hobby farm needs. Along the front of the property is a small stream that meanders through (not stocked with fish) and attracts other wildlife. Large bucks have been spotted in the neighbors adjoining cornfield. This home is perfect for nature lovers and hunters alike
Listing Information
Property Type: Residential, 1 Story
Status: Active
Bedrooms: 5
Bathrooms: 3
Lot Size: 3.18 Acres
Square Feet: 3,526 sq ft
Year Built: 2000
Garage: Yes
County: Trempealeau
School Information
District: Galesville-Ettrick-Trempealeau
Middle: Gale-Ettrick-Tremp
High: Gale-Ettrick-Tremp
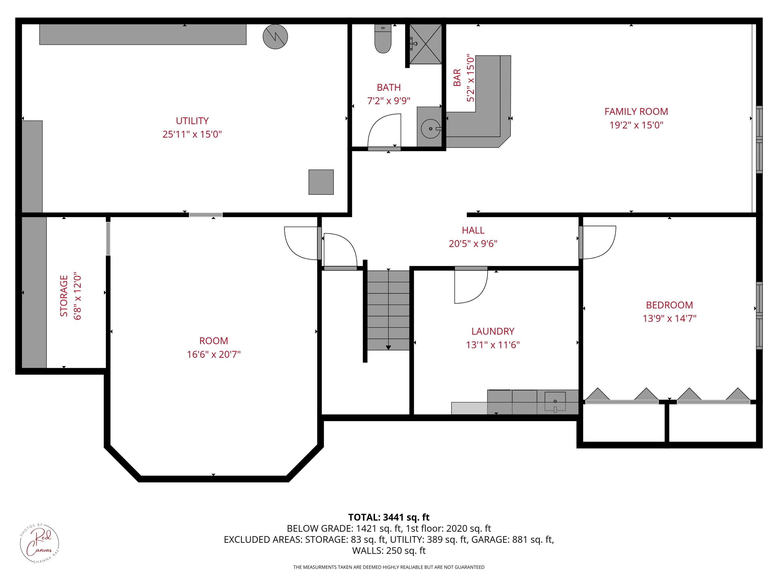
Room Information
Main Floor
Primary Bedroom: 16x14
Bedroom 2: 14x11
Bedroom 3: 14x11
Bedroom 4: 13x12
Living/Great Room: 17x17
Kitchen: 23x20
Lower Floor
Bedroom 5: 14x14
Family Room: 24x15
Laundry: 14x11
Family Room: 23x16
Bathrooms
Full Baths: 3
Additonal Room Information
Bath Description: At least one Bathtub,Ceramic Tile,Jetted Tub,MBR Bath Walk-in Shower,Off MBR,Shower Stall
Interior Features
Square Footage above: 1,516 sq ft
Square Footage below: 505 sq ft
Appliances: Water Softener Owned, Cooktop, Dishwasher, Dryer, Microwave, Other, Refrigerator, Washer, Oven
Basement: 8+ Ceiling, Shower, Finished, Poured Concrete, Full, Full Size Windows
Additional Interior Features: Central Vacuum, Gas Fireplace, Kitchen Island, Wood Floors, Vaulted Ceiling(s), Walk-In Closet(s)
Utilities
Water: Private Well
Sewer: Septic System
Cooling: Central Air, Forced Air
Heating: Propane Gas
Exterior / Lot Features
Attached Garage: Attached Garage
Garage Spaces: 3
Parking Description: Electric Door Opener, Garage Description - Attached, Driveway - Unpaved
Exterior: Vinyl
Zoning: RES
Additional Exterior/Lot Features: Rural
Out Buildings: Pole Building
Waterfront Details
Water Front Features: Creek
Driving Directions
HWY 53 North of Galesville, West on TTT, North on T, West on Hammer Lane. 1 Mile to property on the right. Property is the left None from the driveway in. neighbors garage is on right side of drive.
Financial Considerations
Tax Amount: 5902.32
Tax Year: 2024
A broker reciprocity listing courtesy: Keller Williams Realty Diversified
The data relating to real estate for sale on this web site comes in part from the Broker Reciprocity℠ Program of the Multiple Listing Service, Inc. Real estate listings held by brokerage firms other than Edina Realty, Inc. are marked with the Broker Reciprocity℠ logo or the Broker Reciprocity℠ thumbnail and detailed information about them includes the name of the listing brokers. Edina Realty, Inc. is not a Multiple Listing Service (MLS), nor does it offer MLS access. This website is a service of Edina Realty, Inc., a broker Participant of the Multiple Listing Service, Inc. IDX information is provided exclusively for consumers personal, non-commercial use and may not be used for any purpose other than to identify prospective properties consumers may be interested in purchasing. Open House information is subject to change without notice. Information deemed reliable but not guaranteed. Information is supplied by seller and other third parties and has not been verified.
Copyright 2025 Multiple Listing Service, Inc. All Rights Reserved.
Payment Calculator
Interest rate and annual percentage rate (APR) are based on current market conditions, are for informational purposes only, are subject to change without notice and may be subject to pricing add-ons related to property type, loan amount, loan-to-value, credit score and other variables. Estimated closing costs used in the APR calculation are assumed to be paid by the borrower at closing. If the closing costs are financed, the loan, APR and payment amounts will be higher. If the down payment is less than 20%, mortgage insurance may be required and could increase the monthly payment and APR. Contact us for details. Additional loan programs may be available. Accuracy is not guaranteed, and all products may not be available in all borrower's geographical areas and are based on their individual situation. This is not a credit decision or a commitment to lend.
Sales History & Tax Summary for W20744 Hammer
Sales History
| Date | Price | Change |
|---|---|---|
| Currently not available. | ||
Tax Summary
| Tax Year | Estimated Market Value | Total Tax |
|---|---|---|
| Currently not available. | ||
Data powered by ATTOM Data Solutions. Copyright© 2025. Information deemed reliable but not guaranteed.
Schools
Schools nearby W20744 Hammer
| Schools in attendance boundaries | Grades | Distance | Rating |
|---|---|---|---|
| Loading... | |||
| Schools nearby | Grades | Distance | Rating |
|---|---|---|---|
| Loading... | |||
Data powered by ATTOM Data Solutions. Copyright© 2025. Information deemed reliable but not guaranteed.
The schools shown represent both the assigned schools and schools by distance based on local school and district attendance boundaries. Attendance boundaries change based on various factors and proximity does not guarantee enrollment eligibility. Please consult your real estate agent and/or the school district to confirm the schools this property is zoned to attend. Information is deemed reliable but not guaranteed.
SchoolDigger ® Rating
The SchoolDigger rating system is a 1-5 scale with 5 as the highest rating. SchoolDigger ranks schools based on test scores supplied by each state's Department of Education. They calculate an average standard score by normalizing and averaging each school's test scores across all tests and grades.
Coming soon properties will soon be on the market, but are not yet available for showings.