$374,500
W2551 Winton Road Springbrook, WI 54875
Active Contingent MLS# 1597173
3 beds 2 baths 1,782 sq ft Single Family
Details for W2551 Winton Road
MLS# 1597173
Description for W2551 Winton Road, Springbrook, WI, 54875
Discover the perfect Northwoods retreat with this charming 3-bedroom, 2-bath cedar-sided home, complete with a finished walkout basement and set on a beautiful 5-acre wooded parcel overlooking a serene pond. Located between Hayward and Spooner, this property sits in the heart of a true recreational paradise. Enjoy thousands of acres of public land, nearby lakes and rivers, and easy access to ATV trails—ideal for hunting, fishing, riding, and year-round outdoor adventure. The home features a full covered porch, a back deck with peaceful views, and a 2-car garage perfect for storing all your toys and equipment. Whether you're looking for a weekend getaway or a comfortable long-term camp, this property has everything you need to enjoy the Northwoods lifestyle.
Listing Information
Property Type: Residential, Single Family Residence
Status: Active Under Contract
Bedrooms: 3
Bathrooms: 2
Lot Size: 5 Acres
Square Feet: 1,782 sq ft
Year Built: 2005
Garage: Yes
Stories: 1 Story
Construction: Cedar
Foundation: Poured
County: Washburn
Days On Market: 92
School Information
District: Spooner Area
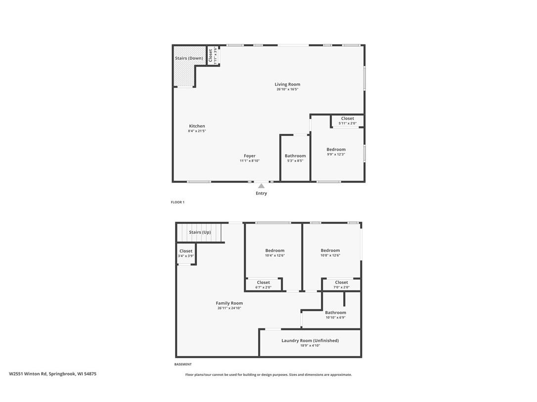
Room Information
Main Floor
Bedroom: 10x12
Bathroom: 5x9
Living Room: 12x18
Dining Room: 10x12
Kitchen: 12x13
Lower Floor
Bathroom: 7x10
Bedroom: 11x12
Bedroom: 11x12
Family Room: 12x20
Bathrooms
Full Baths: 2
Interior Features
Square Footage above: 936 sq ft
Square Footage below: 846 sq ft
Appliances: Dishwasher, Dryer, Range, Refrigerator, Washer, Microwave, Oven, Electric Water Heater
Basement: Finished, Daylight
Utilities
Water: Drilled Well
Sewer: Septic Tank
Cooling: Central Air
Heating: Forced Air
Exterior / Lot Features
Garage Spaces: 2
Parking Description: driveway, Gravel, Garage, Detached
Lot Dimensions: 0 x 0 x
Zoning: Residential
Additional Exterior/Lot Features: Covered, Deck
Driving Directions
From Hayward: South on Hwy 63, in Springbrook turn left on Cty Rd M, Left on Winton Rd, Right at the fire number and sign, Continue past the neighbors on the easement to the home.
Financial Considerations
Covenants/Deed Restrictions: Washer
Tax/Property ID: 25011
Tax Amount: 2366.46
Tax Year: 2025
A broker reciprocity listing courtesy: Re/Max 4 Seasons, LLC
The data relating to real estate for sale on this web site comes in part from the Broker Reciprocity℠ Program of the Northwestern Wisconsin MLS. Real estate listings held by brokerage firms other than Edina Realty, Inc. are marked with the Broker Reciprocity℠ logo or the Broker Reciprocity℠ thumbnail and detailed information about them includes the name of the listing brokers. Edina Realty, Inc. is not a Multiple Listing Service (MLS), nor does it offer MLS access. This website is a service of Edina Realty, Inc., a broker Participant of the Northwestern Wisconsin MLS. IDX information is provided exclusively for consumers personal, non-commercial use and may not be used for any purpose other than to identify prospective properties consumers may be interested in purchasing. Open House information is subject to change without notice. Information deemed reliable but not guaranteed.
Copyright 2026 Northwestern Wisconsin MLS. All Rights Reserved.
Payment Calculator
Interest rate and annual percentage rate (APR) are based on current market conditions, are for informational purposes only, are subject to change without notice and may be subject to pricing add-ons related to property type, loan amount, loan-to-value, credit score and other variables. Estimated closing costs used in the APR calculation are assumed to be paid by the borrower at closing. If the closing costs are financed, the loan, APR and payment amounts will be higher. If the down payment is less than 20%, mortgage insurance may be required and could increase the monthly payment and APR. Contact us for details. Additional loan programs may be available. Accuracy is not guaranteed, and all products may not be available in all borrower's geographical areas and are based on their individual situation. This is not a credit decision or a commitment to lend.
Sales History & Tax Summary for W2551 Winton Road
Sales History
| Date | Price | |
|---|---|---|
| Currently not available. | ||
Tax Summary
| Tax Year | Estimated Market Value | Total Tax |
|---|---|---|
| Currently not available. | ||
Data powered by ATTOM Data Solutions. Copyright© 2026. Information deemed reliable but not guaranteed.
Schools
Schools nearby W2551 Winton Road
| Schools in attendance boundaries | Grades | Distance | Rating |
|---|---|---|---|
| Loading... | |||
| Schools nearby | Grades | Distance | Rating |
|---|---|---|---|
| Loading... | |||
Data powered by ATTOM Data Solutions. Copyright© 2026. Information deemed reliable but not guaranteed.
The schools shown represent both the assigned schools and schools by distance based on local school and district attendance boundaries. Attendance boundaries change based on various factors and proximity does not guarantee enrollment eligibility. Please consult your real estate agent and/or the school district to confirm the schools this property is zoned to attend. Information is deemed reliable but not guaranteed.
SchoolDigger ® Rating
The SchoolDigger rating system is a 1-5 scale with 5 as the highest rating. SchoolDigger ranks schools based on test scores supplied by each state's Department of Education. They calculate an average standard score by normalizing and averaging each school's test scores across all tests and grades.
Coming soon properties will soon be on the market, but are not yet available for showings.