10462 Poughkeepsie Circle Port Charlotte, FL 33981 - POUGHKEEPSIE WATERWAY
For Sale MLS# O6318478
0.23 Acres Lot/Land
Details for 10462 Poughkeepsie Circle
MLS# O6318478
Description for 10462 Poughkeepsie Circle, Port Charlotte, FL, 33981 - POUGHKEEPSIE WATERWAY
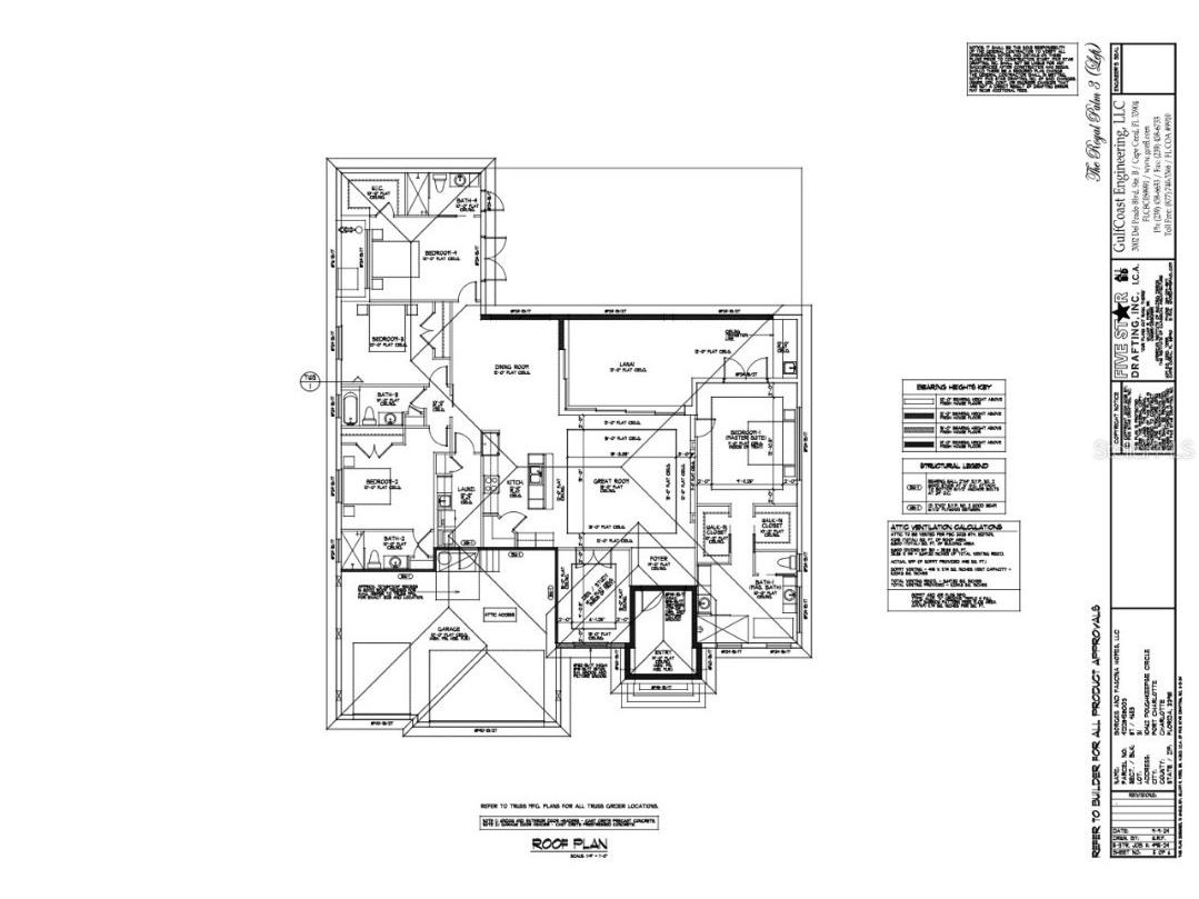
Build-Ready Waterfront Lot WITH PERMITS in South Gulf Cove – Direct Boating Access to Charlotte Harbor! Don’t miss your chance to own this 82x125 waterfront lot in the thriving, deed-restricted community of South Gulf Cove. This exceptional property at 10462 Poughkeepsie Circle comes with approved building permits, giving you a valuable head start on constructing your custom Florida home or investment property. Situated along a quiet residential street, this lot offers direct boating access to Charlotte Harbor and the Gulf of Mexico, making it perfect for boating enthusiasts and anglers alike. Enjoy picturesque sunsets and the laid-back waterfront lifestyle right from your backyard. The lot is equipped with public water and sewer, and is surrounded by a mix of well-kept homes and new development. Welcoming community with access to a boat ramp, park, walking trails, clubhouse, and a wide variety of social activities and clubs. Located just minutes from Gulf beaches, golf courses, shopping, restaurants, and two MLB Spring Training facilities (Tampa Bay Rays and Atlanta Braves), this homesite puts the best of Southwest Florida at your fingertips. WITH PERMITS in place, this is a rare turnkey opportunity—start building immediately and bring your waterfront vision to life.
Listing Information
Property Type: Lot/Land, Residential
Status: Active
Lot Size: 0.23 Acres
Subdivision: Port Charlotte Sec 87
Current Use: Residential,Single Family
County: Charlotte
School Information
Elementary: Myakka River Elementary
Middle: L.A. Ainger Middle
High: Lemon Bay High
Utilities
Water: Public
Sewer: Public Sewer
Other Utilities: Electricity Available,Sewer Available,Water Available
Exterior / Lot Features
Lot View: Canal,Water
Lot Dimensions: 82x125
Waterfront Details
Standard Water Body: POUGHKEEPSIE WATERWAY
Water Front Features: Canal Access
Driving Directions
To reach 10462 Poughkeepsie Circle, Port Charlotte, FL 33981, take I-75 to Exit 170 and head west on Kings Highway. Turn left onto Veterans Boulevard (FL-776 W) and continue for about 10 miles. Turn left onto Gasparilla Road (CR-771 S), then drive approximately 4.5 miles and turn right onto Appleton Boulevard. After about 0.7 miles, turn left onto Poughkeepsie Circle. The property will be on your left.
Financial Considerations
Tax/Property ID: 412128458003
Tax Amount: 992.92
Tax Year: 2023
A broker reciprocity listing courtesy: AUTHENTIC REAL ESTATE TEAM
Based on information provided by Stellar MLS as distributed by the MLS GRID. Information from the Internet Data Exchange is provided exclusively for consumers’ personal, non-commercial use, and such information may not be used for any purpose other than to identify prospective properties consumers may be interested in purchasing. This data is deemed reliable but is not guaranteed to be accurate by Edina Realty, Inc., or by the MLS. Edina Realty, Inc., is not a multiple listing service (MLS), nor does it offer MLS access.
Copyright 2025 Stellar MLS as distributed by the MLS GRID. All Rights Reserved.
Payment Calculator
Interest rate and annual percentage rate (APR) are based on current market conditions, are for informational purposes only, are subject to change without notice and may be subject to pricing add-ons related to property type, loan amount, loan-to-value, credit score and other variables. Estimated closing costs used in the APR calculation are assumed to be paid by the borrower at closing. If the closing costs are financed, the loan, APR and payment amounts will be higher. If the down payment is less than 20%, mortgage insurance may be required and could increase the monthly payment and APR. Contact us for details. Additional loan programs may be available. Accuracy is not guaranteed, and all products may not be available in all borrower's geographical areas and are based on their individual situation. This is not a credit decision or a commitment to lend.
Sales History & Tax Summary for 10462 Poughkeepsie Circle
Sales History
| Date | Price | Change |
|---|---|---|
| Currently not available. | ||
Tax Summary
| Tax Year | Estimated Market Value | Total Tax |
|---|---|---|
| Currently not available. | ||
Data powered by ATTOM Data Solutions. Copyright© 2025. Information deemed reliable but not guaranteed.
Schools
Schools nearby 10462 Poughkeepsie Circle
| Schools in attendance boundaries | Grades | Distance | Rating |
|---|---|---|---|
| Loading... | |||
| Schools nearby | Grades | Distance | Rating |
|---|---|---|---|
| Loading... | |||
Data powered by ATTOM Data Solutions. Copyright© 2025. Information deemed reliable but not guaranteed.
The schools shown represent both the assigned schools and schools by distance based on local school and district attendance boundaries. Attendance boundaries change based on various factors and proximity does not guarantee enrollment eligibility. Please consult your real estate agent and/or the school district to confirm the schools this property is zoned to attend. Information is deemed reliable but not guaranteed.
SchoolDigger ® Rating
The SchoolDigger rating system is a 1-5 scale with 5 as the highest rating. SchoolDigger ranks schools based on test scores supplied by each state's Department of Education. They calculate an average standard score by normalizing and averaging each school's test scores across all tests and grades.
Coming soon properties will soon be on the market, but are not yet available for showings.