11 AC Hwy 371 Baxter, MN 56425
Active Contingent MLS# 6631962
11.90 Acres Lot/Land
Details for 11 AC Hwy 371
MLS# 6631962
Description for 11 AC Hwy 371, Baxter, MN, 56425
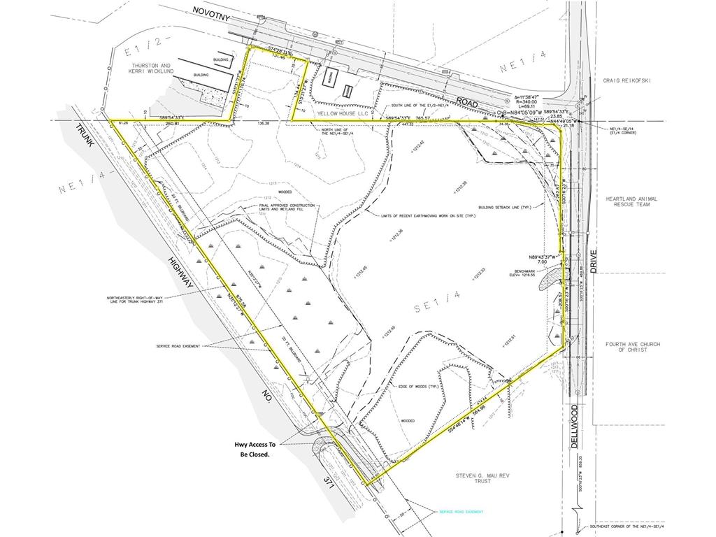
Exceptional opportunity to secure 11.9 acres of prime commercial land with 975 feet of high-visibility Hwy 371 frontage. Situated in the rapidly expanding Hwy 371 corridor, just north of Menards, this property offers unparalleled exposure. Whether you’re looking to build new or expand, this is the perfect location to capitalize on the area’s growth. Don’t miss out on this highly sought-after spot to establish your business in one of the region’s most dynamic areas!
Listing Information
Property Type: Lot/Land
Status: Active Contingent-Other
Lot Size: 11.90 Acres
County: Crow Wing
Days On Market: 532
School Information
District: 181 - Brainerd
Utilities
Other Utilities: Cable Available,Electricity Available,Natural Gas Available,None Connected,Phone Available,Sewer Available,Water Available
Exterior / Lot Features
Lot Dimensions: 975x260x170xIrregular
Zoning: Business/Commercial
Topography: High Ground, Level, Low Land
Additional Exterior/Lot Features: Raw Land, Land Inclusions - Survey, Road Frontage - City, Paved Streets, State
Driving Directions
From Hwy 210/371 intersection in Baxter - North on Hwy 371 approx. 1/5 miles - Property is located on the right (east), directly after Brainerd General Rental
Financial Considerations
Other Annual Tax: $11,204
Tax/Property ID: 030314100AA0009
Tax Amount: 17763.74
Tax Year: 2025
HomeStead Description: Non-Homesteaded
A broker reciprocity listing courtesy: Close-Converse Commercial Prop
The data relating to real estate for sale on this web site comes in part from the Broker Reciprocity℠ Program of the Regional Multiple Listing Service of Minnesota, Inc. Real estate listings held by brokerage firms other than Edina Realty, Inc. are marked with the Broker Reciprocity℠ logo or the Broker Reciprocity℠ thumbnail and detailed information about them includes the name of the listing brokers. Edina Realty, Inc. is not a Multiple Listing Service (MLS), nor does it offer MLS access. This website is a service of Edina Realty, Inc., a broker Participant of the Regional Multiple Listing Service of Minnesota, Inc. IDX information is provided exclusively for consumers personal, non-commercial use and may not be used for any purpose other than to identify prospective properties consumers may be interested in purchasing. Open House information is subject to change without notice. Information deemed reliable but not guaranteed.
Copyright 2026 Regional Multiple Listing Service of Minnesota, Inc. All Rights Reserved.
Payment Calculator
Interest rate and annual percentage rate (APR) are based on current market conditions, are for informational purposes only, are subject to change without notice and may be subject to pricing add-ons related to property type, loan amount, loan-to-value, credit score and other variables. Estimated closing costs used in the APR calculation are assumed to be paid by the borrower at closing. If the closing costs are financed, the loan, APR and payment amounts will be higher. If the down payment is less than 20%, mortgage insurance may be required and could increase the monthly payment and APR. Contact us for details. Additional loan programs may be available. Accuracy is not guaranteed, and all products may not be available in all borrower's geographical areas and are based on their individual situation. This is not a credit decision or a commitment to lend.
Sales History & Tax Summary for 11 AC Hwy 371
Sales History
| Date | Price | |
|---|---|---|
| Currently not available. | ||
Tax Summary
| Tax Year | Estimated Market Value | Total Tax |
|---|---|---|
| Currently not available. | ||
Data powered by ATTOM Data Solutions. Copyright© 2026. Information deemed reliable but not guaranteed.
Schools
Schools nearby 11 AC Hwy 371
| Schools in attendance boundaries | Grades | Distance | Rating |
|---|---|---|---|
| Loading... | |||
| Schools nearby | Grades | Distance | Rating |
|---|---|---|---|
| Loading... | |||
Data powered by ATTOM Data Solutions. Copyright© 2026. Information deemed reliable but not guaranteed.
The schools shown represent both the assigned schools and schools by distance based on local school and district attendance boundaries. Attendance boundaries change based on various factors and proximity does not guarantee enrollment eligibility. Please consult your real estate agent and/or the school district to confirm the schools this property is zoned to attend. Information is deemed reliable but not guaranteed.
SchoolDigger ® Rating
The SchoolDigger rating system is a 1-5 scale with 5 as the highest rating. SchoolDigger ranks schools based on test scores supplied by each state's Department of Education. They calculate an average standard score by normalizing and averaging each school's test scores across all tests and grades.
Coming soon properties will soon be on the market, but are not yet available for showings.