$150,000
1217 Butterfly Orchid Road Davenport, FL 33837
For Sale MLS# S5132119
0.17 Acres Lot/Land
Details for 1217 Butterfly Orchid Road
MLS# S5132119
Description for 1217 Butterfly Orchid Road, Davenport, FL, 33837
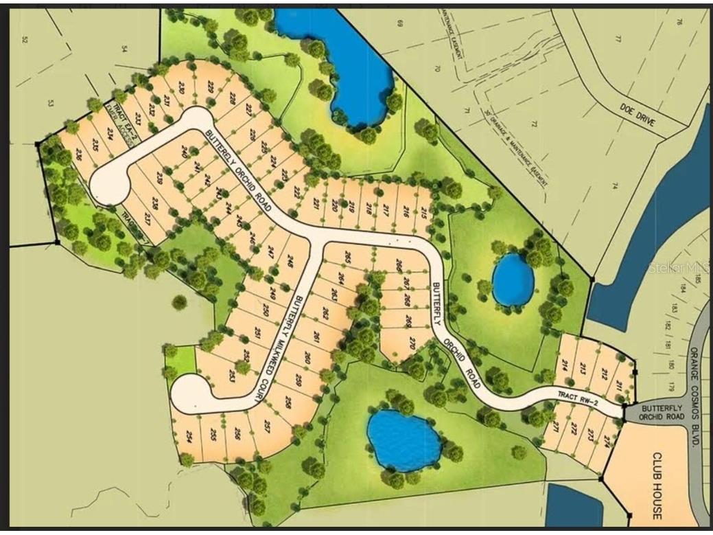
BIG DEAL ALERT — 27 LOTS, DISNEY CORRIDOR “This is the kind of opportunity that builds empires. Believe me.” Watersong Resort is releasing an exclusive bulk package of 27 prime lots — and it’s the type of deal serious investors fight for. Perfectly positioned minutes from Disney and Orlando’s world-famous theme parks, this package gives you control of the hottest short-term rental product on the market. 22 lots (50x120 ft.) 12-Bedroom Vacation Homes 5 lots (70x120 ft.) 15-Bedroom Estates Six-Month Build Rule: Start first 10 within 6 months, then build in batches of 10 Here’s the winning formula: Park Square Homes builds them all — with the two most profitable floor plans of the past 3 years. These designs rent at top rates, stay booked, and deliver serious cash flow. Smart investors know: timing is everything. Bulk inventory like this, in a gated resort with global demand, doesn’t hit the market twice. Secure it now — before someone else does.
Listing Information
Property Type: Lot/Land, Residential
Status: Active
Lot Size: 0.17 Acres
Current Use: Residential,Single Family
County: Polk
School Information
Elementary: Davenport Elem
Middle: Davenport School Of The Arts
High: Davenport High School
Utilities
Water: Public
Sewer: Public Sewer
Other Utilities: Municipal Utilities
Exterior / Lot Features
Lot Dimensions: 52x52x147x151
Driving Directions
From I-4, take Exit 58 to ChampionsGate Blvd/Osceola Polk Line Rd (CR-532). Drive east for approx. 4 miles and turn right on Old Lake Wilson Rd (CR-545). After 1 mile, turn left on Ronald Reagan Pkwy (CR-54). Continue 2.5 miles and turn right on Pine Tree Trail, then left into Watersong Resort (guard gate). Follow Watersong Blvd, turn right on Butterfly Orchid Rd.
Financial Considerations
Tax/Property ID: 27-26-24-706192-002710
Tax Amount: 1277.12
Tax Year: 2024
A broker reciprocity listing courtesy: EMPIRE NETWORK REALTY
Based on information provided by Stellar MLS as distributed by the MLS GRID. Information from the Internet Data Exchange is provided exclusively for consumers’ personal, non-commercial use, and such information may not be used for any purpose other than to identify prospective properties consumers may be interested in purchasing. This data is deemed reliable but is not guaranteed to be accurate by Edina Realty, Inc., or by the MLS. Edina Realty, Inc., is not a multiple listing service (MLS), nor does it offer MLS access.
Copyright 2025 Stellar MLS as distributed by the MLS GRID. All Rights Reserved.
Payment Calculator
Interest rate and annual percentage rate (APR) are based on current market conditions, are for informational purposes only, are subject to change without notice and may be subject to pricing add-ons related to property type, loan amount, loan-to-value, credit score and other variables. Estimated closing costs used in the APR calculation are assumed to be paid by the borrower at closing. If the closing costs are financed, the loan, APR and payment amounts will be higher. If the down payment is less than 20%, mortgage insurance may be required and could increase the monthly payment and APR. Contact us for details. Additional loan programs may be available. Accuracy is not guaranteed, and all products may not be available in all borrower's geographical areas and are based on their individual situation. This is not a credit decision or a commitment to lend.
Sales History & Tax Summary for 1217 Butterfly Orchid Road
Sales History
| Date | Price | Change |
|---|---|---|
| Currently not available. | ||
Tax Summary
| Tax Year | Estimated Market Value | Total Tax |
|---|---|---|
| Currently not available. | ||
Data powered by ATTOM Data Solutions. Copyright© 2025. Information deemed reliable but not guaranteed.
Schools
Schools nearby 1217 Butterfly Orchid Road
| Schools in attendance boundaries | Grades | Distance | Rating |
|---|---|---|---|
| Loading... | |||
| Schools nearby | Grades | Distance | Rating |
|---|---|---|---|
| Loading... | |||
Data powered by ATTOM Data Solutions. Copyright© 2025. Information deemed reliable but not guaranteed.
The schools shown represent both the assigned schools and schools by distance based on local school and district attendance boundaries. Attendance boundaries change based on various factors and proximity does not guarantee enrollment eligibility. Please consult your real estate agent and/or the school district to confirm the schools this property is zoned to attend. Information is deemed reliable but not guaranteed.
SchoolDigger ® Rating
The SchoolDigger rating system is a 1-5 scale with 5 as the highest rating. SchoolDigger ranks schools based on test scores supplied by each state's Department of Education. They calculate an average standard score by normalizing and averaging each school's test scores across all tests and grades.
Coming soon properties will soon be on the market, but are not yet available for showings.