13 Pagoda Court W Homosassa, FL 34446
Pending MLS# O6355698
4 beds 3 baths 1,990 sq ft Single Family
Details for 13 Pagoda Court W
MLS# O6355698
Description for 13 Pagoda Court W, Homosassa, FL, 34446
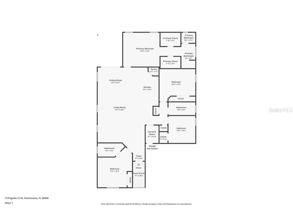
Under contract-accepting backup offers. BEAUTIFUL 2025 NEW BUILD with 4 BEDROOMS 3 BATHROOMS + 3 Car Garage + 0.28 ACRES with 1,990 square feet of living space on a CUL-DE-SAC surrounded by WOODED VIEWS! This BRAND NEW HOME features an open concept THREE WAY SPLIT PLAN with beautiful finishes throughout. The kitchen is complete with QUARTZ COUNTERTOPS, HERRINGBONE SUBWAY TILE BACKSPLASH, crown molding with staggered WHITE SHAKER CABINETS, hardware and faucet, oversized pantry, and large kitchen island with bar top seating and TWO TONE CABINETS. The kitchen opens to the living room area with tons of natural light. The primary bedroom has a tray ceiling, LARGE HIS & HERS WALK IN CLOSETS. The primary bathroom has a QUARTZ DUAL VANITY, along with a GLASS SHOWER ENCLOSURE WITH FLOOR TO CEILING TILE AND SHOWER NICHE. At the front of the home is a FULL BEDROOM AND EN SUITE perfect as a GUEST OR MOTHER-IN-LAW SUITE! Two bedrooms and another full bathroom are located down a hallway. The laundry room has a Brand New Washer & Dryer. This new construction home has Luxury Vinyl Plank flooring! Call to make an appointment to see this home today! PUBLIC WATER & SEWER.
Listing Information
Property Type: Residential, Single Family Residence
Status: Pending
Bedrooms: 4
Bathrooms: 3
Lot Size: 0.28 Acres
Square Feet: 1,990 sq ft
Year Built: 2025
Garage: Yes
Stories: 1 Story
Construction: Block,Concrete,Stucco
Construction Display: New Construction
Subdivision: Sugarmill Woods Cypress Village
Foundation: Slab
County: Citrus
Construction Status: New Construction
Room Information
Main Floor
Laundry: 5x7
Bedroom 4: 14x16
Bedroom 3: 11x11
Bedroom 2: 13x14
Primary Bedroom: 13x23
Kitchen: 9x15
Living Room: 19x21
Bathrooms
Full Baths: 3
Additonal Room Information
Laundry: Laundry Room
Interior Features
Appliances: Dishwasher, Dryer, Microwave, Refrigerator, Washer, Convection Oven
Flooring: Luxury Vinyl,Tile
Additional Interior Features: Walk-In Closet(s), Tray Ceiling(s)
Utilities
Water: Public
Sewer: Public Sewer
Other Utilities: Cable Available,High Speed Internet Available
Cooling: Central Air
Heating: Central
Exterior / Lot Features
Attached Garage: Attached Garage
Garage Spaces: 2
Parking Description: driveway
Roof: Shingle
Lot View: Trees/Woods
Lot Dimensions: 67x120
Additional Exterior/Lot Features: Rain Gutters, Sprinkler/Irrigation, Rear Porch, Covered, Cul-de-Sac
Community Features
Homeowners Association: Yes
HOA Dues: $132 / Annually
Driving Directions
Heading NORTH on Richtop Terrace from W Oak Park Blvd, turn RIGHT onto Whitewood St, turn LEFT onto Pagoda Dr, turn LEFT onto Pagoda Ct W, home is down on the cul-de-sac.
Financial Considerations
Terms: Cash,Conventional,FHA,VA Loan
Tax/Property ID: 18E-20S-13-0010-00460-0210
Tax Amount: 370.42
Tax Year: 2024
A broker reciprocity listing courtesy: THE WILKINS WAY LLC
Based on information provided by Stellar MLS as distributed by the MLS GRID. Information from the Internet Data Exchange is provided exclusively for consumers’ personal, non-commercial use, and such information may not be used for any purpose other than to identify prospective properties consumers may be interested in purchasing. This data is deemed reliable but is not guaranteed to be accurate by Edina Realty, Inc., or by the MLS. Edina Realty, Inc., is not a multiple listing service (MLS), nor does it offer MLS access.
Copyright 2025 Stellar MLS as distributed by the MLS GRID. All Rights Reserved.
Sales History & Tax Summary for 13 Pagoda Court W
Sales History
| Date | Price | Change |
|---|---|---|
| Currently not available. | ||
Tax Summary
| Tax Year | Estimated Market Value | Total Tax |
|---|---|---|
| Currently not available. | ||
Data powered by ATTOM Data Solutions. Copyright© 2025. Information deemed reliable but not guaranteed.
Schools
Schools nearby 13 Pagoda Court W
| Schools in attendance boundaries | Grades | Distance | Rating |
|---|---|---|---|
| Loading... | |||
| Schools nearby | Grades | Distance | Rating |
|---|---|---|---|
| Loading... | |||
Data powered by ATTOM Data Solutions. Copyright© 2025. Information deemed reliable but not guaranteed.
The schools shown represent both the assigned schools and schools by distance based on local school and district attendance boundaries. Attendance boundaries change based on various factors and proximity does not guarantee enrollment eligibility. Please consult your real estate agent and/or the school district to confirm the schools this property is zoned to attend. Information is deemed reliable but not guaranteed.
SchoolDigger ® Rating
The SchoolDigger rating system is a 1-5 scale with 5 as the highest rating. SchoolDigger ranks schools based on test scores supplied by each state's Department of Education. They calculate an average standard score by normalizing and averaging each school's test scores across all tests and grades.
Coming soon properties will soon be on the market, but are not yet available for showings.