$2,500,000
13377 Lake Butler Boulevard Winter Garden, FL 34787 - LAKE ROPER
For Sale MLS# O6304334
5 Acres Lot/Land
Details for 13377 Lake Butler Boulevard
MLS# O6304334
Description for 13377 Lake Butler Boulevard, Winter Garden, FL, 34787 - LAKE ROPER
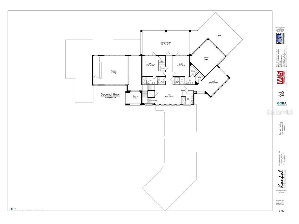
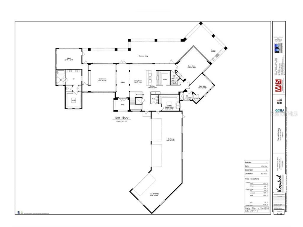
Fantastic opportunity to purchase 12+ acres of private, quiet lake front property in Winter Garden/Windermere area on West Lake Butler Blvd. with 4+ acres high and dry and no HOA. Property currently boasts dock with electricity and boat lift on a skiable lake. There is an existing house that could be remodeled or torn down and start fresh. Home is 4961 square feet and built in 1990 with approximately 844 linear feet of lakefront property on Lake Roper. Home could also be rebuilt as a multigen and could be larger if needed with ample room for multiple garage spaces as well (example of possible home and floor plan attached in photos). This is a RARE OPPORTUNITY to acquire this much lakefront property and land but be in close proximity to city center, major thoroughfares, restaurants, theme parks, international airports. Example photos of possible home and floor plan provided by custom home builder, David Konkol Custom Homes.
Listing Information
Property Type: Lot/Land, Residential
Status: Active
Lot Size: 5 Acres
Current Use: Residential
County: Orange
School Information
Elementary: Lake Whitney Elem
Middle: Sunridge Middle
High: West Orange High
Utilities
Water: Well
Sewer: Septic Tank
Other Utilities: Electricity Available,Sewer Available
Exterior / Lot Features
Lot View: Lake,Water
Lot Dimensions: 260x1016x747x852
Additional Exterior/Lot Features: Landscaped, Conservation Area
Waterfront Details
Standard Water Body: LAKE ROPER
Water Front Features: Lake Front, Lake Privileges
Driving Directions
From Downtown Windermere, take Main Street north to Park Avenue. West on Park Avenue until it become Butler Blvd. Continue to home on right (north side of the road).
Financial Considerations
Terms: Cash,Conventional
Tax/Property ID: 11-23-27-0000-00-030
Tax Amount: 27430.21
Tax Year: 2024
A broker reciprocity listing courtesy: BLUE MAGNOLIA REALTY LLC
Based on information provided by Stellar MLS as distributed by the MLS GRID. Information from the Internet Data Exchange is provided exclusively for consumers’ personal, non-commercial use, and such information may not be used for any purpose other than to identify prospective properties consumers may be interested in purchasing. This data is deemed reliable but is not guaranteed to be accurate by Edina Realty, Inc., or by the MLS. Edina Realty, Inc., is not a multiple listing service (MLS), nor does it offer MLS access.
Copyright 2026 Stellar MLS as distributed by the MLS GRID. All Rights Reserved.
Payment Calculator
Interest rate and annual percentage rate (APR) are based on current market conditions, are for informational purposes only, are subject to change without notice and may be subject to pricing add-ons related to property type, loan amount, loan-to-value, credit score and other variables. Estimated closing costs used in the APR calculation are assumed to be paid by the borrower at closing. If the closing costs are financed, the loan, APR and payment amounts will be higher. If the down payment is less than 20%, mortgage insurance may be required and could increase the monthly payment and APR. Contact us for details. Additional loan programs may be available. Accuracy is not guaranteed, and all products may not be available in all borrower's geographical areas and are based on their individual situation. This is not a credit decision or a commitment to lend.
Sales History & Tax Summary for 13377 Lake Butler Boulevard
Sales History
| Date | Price | |
|---|---|---|
| Currently not available. | ||
Tax Summary
| Tax Year | Estimated Market Value | Total Tax |
|---|---|---|
| Currently not available. | ||
Data powered by ATTOM Data Solutions. Copyright© 2026. Information deemed reliable but not guaranteed.
Schools
Schools nearby 13377 Lake Butler Boulevard
| Schools in attendance boundaries | Grades | Distance | Rating |
|---|---|---|---|
| Loading... | |||
| Schools nearby | Grades | Distance | Rating |
|---|---|---|---|
| Loading... | |||
Data powered by ATTOM Data Solutions. Copyright© 2026. Information deemed reliable but not guaranteed.
The schools shown represent both the assigned schools and schools by distance based on local school and district attendance boundaries. Attendance boundaries change based on various factors and proximity does not guarantee enrollment eligibility. Please consult your real estate agent and/or the school district to confirm the schools this property is zoned to attend. Information is deemed reliable but not guaranteed.
SchoolDigger ® Rating
The SchoolDigger rating system is a 1-5 scale with 5 as the highest rating. SchoolDigger ranks schools based on test scores supplied by each state's Department of Education. They calculate an average standard score by normalizing and averaging each school's test scores across all tests and grades.
Coming soon properties will soon be on the market, but are not yet available for showings.