$84,000
2190 NE Maple Leaf Lane NE Owatonna, MN 55060
For Sale MLS# 6158993
0.34 Acres Lot/Land
Details for 2190 NE Maple Leaf Lane NE
MLS# 6158993
Description for 2190 NE Maple Leaf Lane NE, Owatonna, MN, 55060
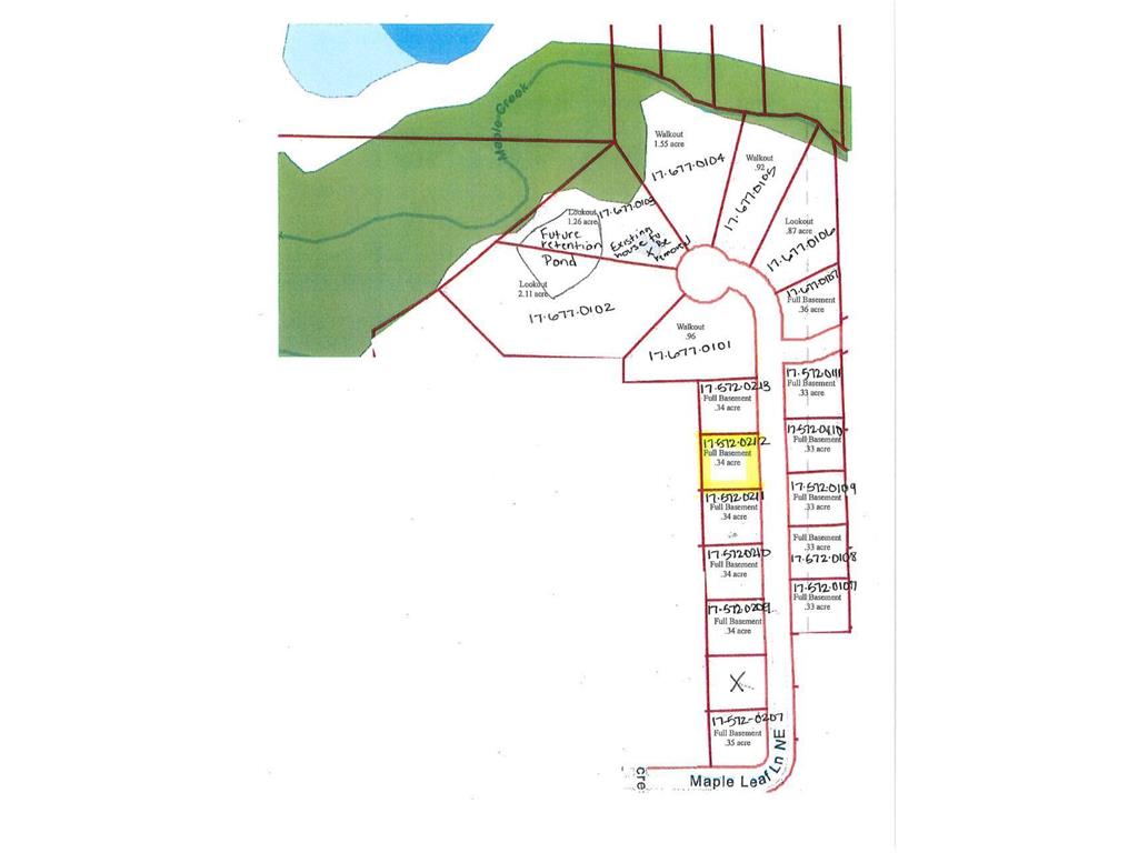
SOMETHING NEW AND DIFFERENT ON THE EDGE OF OWATONNA! WELCOME TO MAPLE CREEK ESTATES #2 and #3. Here is an amazing opportunity to build your dream home in this attractive location on the edge of town. It boasts easy access to I-35 and is just minutes from downtown. This specific lot is just the beginning of the opportunities you will see in the newest development in Owatonna. Bring your building plans or ask for help from us. Choose the lot that fits you! There are full basements, lookouts, walkouts, cul-de-sac and even a pond. Paved streets, curb and gutter and utilities are included. $100 annual fee applies to all the lots for the environmental maintenance agreement that provides service and maintenance for the retention pond.
Listing Information
Property Type: Lot/Land
Status: Active
Lot Size: 0.34 Acres
Subdivision: Maple Creek Estates
Builder: SCHROM CONSTRUCTION INC
County: Steele
Days On Market: 1391
School Information
District: 761 - Owatonna
Utilities
Other Utilities: Cable Available,Electricity Connected,Natural Gas Connected,Phone Available,Sewer Connected,Storm Sewer Connected,Underground Utilities Connected,Water Connected
Exterior / Lot Features
Lot Dimensions: 117x126x117x126
Zoning: Residential-Single Family
Topography: Rolling
Additional Exterior/Lot Features: Site Plan Approved, Land Inclusions - Platted, Road Frontage - Paved Streets, Street Lights, Storm Sewer, City, Cul De Sac, Curbs
Community Features
HOA Dues Include: Other
Driving Directions
I-35 to 26th St. NE, Turn South(Right) on Kenyon Road, Turn East(Left) on Dane Road, Turn North(Left) on Maple Leaf Lane NE.
Financial Considerations
Covenants/Deed Restrictions: Other Bldg Restrictions, Other Covenants
Tax/Property ID: 175720212
Tax Amount: 64
Tax Year: 2025
HomeStead Description: Non-Homesteaded
A broker reciprocity listing courtesy: Berkshire Hathaway Advantage Real Estate
The data relating to real estate for sale on this web site comes in part from the Broker Reciprocity℠ Program of the Regional Multiple Listing Service of Minnesota, Inc. Real estate listings held by brokerage firms other than Edina Realty, Inc. are marked with the Broker Reciprocity℠ logo or the Broker Reciprocity℠ thumbnail and detailed information about them includes the name of the listing brokers. Edina Realty, Inc. is not a Multiple Listing Service (MLS), nor does it offer MLS access. This website is a service of Edina Realty, Inc., a broker Participant of the Regional Multiple Listing Service of Minnesota, Inc. IDX information is provided exclusively for consumers personal, non-commercial use and may not be used for any purpose other than to identify prospective properties consumers may be interested in purchasing. Open House information is subject to change without notice. Information deemed reliable but not guaranteed.
Copyright 2025 Regional Multiple Listing Service of Minnesota, Inc. All Rights Reserved.
Payment Calculator
Interest rate and annual percentage rate (APR) are based on current market conditions, are for informational purposes only, are subject to change without notice and may be subject to pricing add-ons related to property type, loan amount, loan-to-value, credit score and other variables. Estimated closing costs used in the APR calculation are assumed to be paid by the borrower at closing. If the closing costs are financed, the loan, APR and payment amounts will be higher. If the down payment is less than 20%, mortgage insurance may be required and could increase the monthly payment and APR. Contact us for details. Additional loan programs may be available. Accuracy is not guaranteed, and all products may not be available in all borrower's geographical areas and are based on their individual situation. This is not a credit decision or a commitment to lend.
Sales History & Tax Summary for 2190 NE Maple Leaf Lane NE
Sales History
| Date | Price | Change |
|---|---|---|
| Currently not available. | ||
Tax Summary
| Tax Year | Estimated Market Value | Total Tax |
|---|---|---|
| Currently not available. | ||
Data powered by ATTOM Data Solutions. Copyright© 2025. Information deemed reliable but not guaranteed.
Schools
Schools nearby 2190 NE Maple Leaf Lane NE
| Schools in attendance boundaries | Grades | Distance | Rating |
|---|---|---|---|
| Loading... | |||
| Schools nearby | Grades | Distance | Rating |
|---|---|---|---|
| Loading... | |||
Data powered by ATTOM Data Solutions. Copyright© 2025. Information deemed reliable but not guaranteed.
The schools shown represent both the assigned schools and schools by distance based on local school and district attendance boundaries. Attendance boundaries change based on various factors and proximity does not guarantee enrollment eligibility. Please consult your real estate agent and/or the school district to confirm the schools this property is zoned to attend. Information is deemed reliable but not guaranteed.
SchoolDigger ® Rating
The SchoolDigger rating system is a 1-5 scale with 5 as the highest rating. SchoolDigger ranks schools based on test scores supplied by each state's Department of Education. They calculate an average standard score by normalizing and averaging each school's test scores across all tests and grades.
Coming soon properties will soon be on the market, but are not yet available for showings.