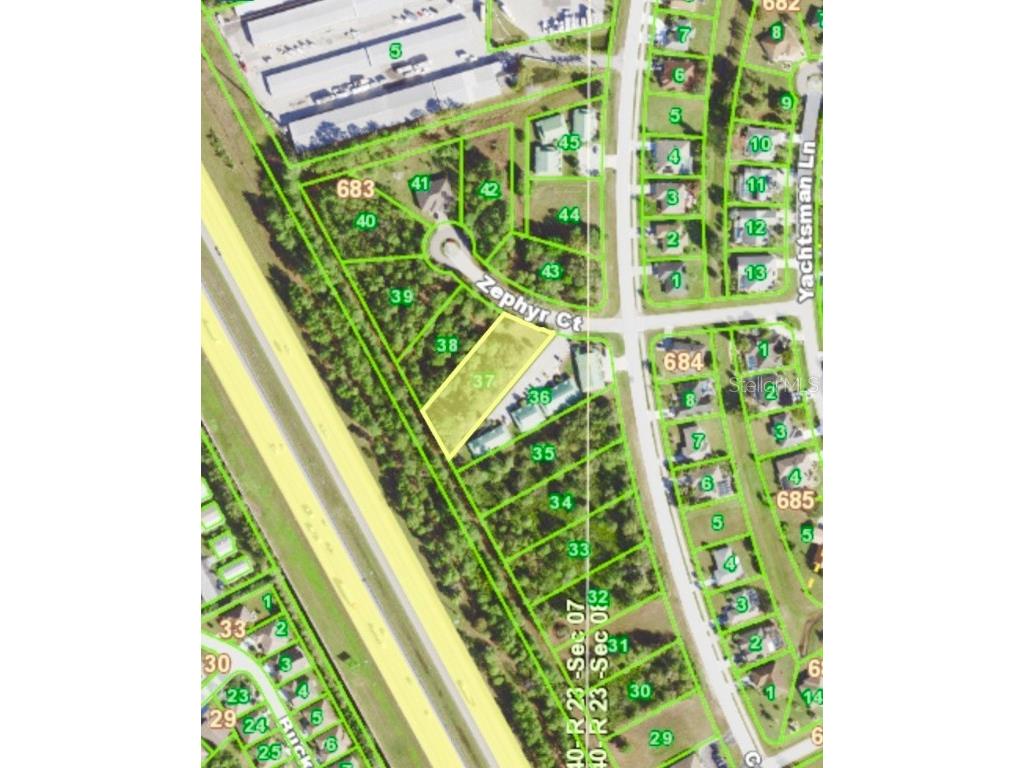
24511 Zephyr Court Punta Gorda, FL 33983
For Sale MLS# D6125722
0.65 Acres Lot/Land
Details for 24511 Zephyr Court
MLS# D6125722
Description for 24511 Zephyr Court, Punta Gorda, FL, 33983
ATTENTION INVESTORS AND DEVELOPERS!!! This oversized RMF-15 vacant lot located in the famous Deep Creek subdivision. The lot per County public records says can build 9 units. It measures 106x249x107X322. Check this out and build your building stay in one unit and rent the rest. Enjoy the deed restrictions and beauty of this community and what makes this area one of the best place to retire, the Punta Gorda had been number one place to retire for couple of years past and present!! Easy access to I-75 and takes 45 mins to Ft Myers and Sarasota Airports. Punta Gorda airport is just 15 mins away. There is also community Park with playground with cover and tennis court and basketball court. The Harbourview Park is just 5 miles away and it has a lot of amenities for families to enjoy like Public boat dock for fishing, picnic area, tennis courts and basketball court and many more.
Listing Information
Property Type: Lot/Land, Unimproved Land
Status: Active
Lot Size: 0.65 Acres
Subdivision: Punta Gorda Isles Sec 23
Current Use: Unimproved
County: Charlotte
School Information
Elementary: Deep Creek Elementary
Middle: Punta Gorda Middle
High: Charlotte High
Utilities
Water: Public
Sewer: Public Sewer
Other Utilities: Electricity Available,Municipal Utilities,Sewer Available,Water Available
Exterior / Lot Features
Lot Dimensions: 106X249X107X322
Community Features
Community Features: Playground, Tennis Court(s)
Association Amenities: Tennis Court(s), Playground
Homeowners Association: Yes
HOA Dues: $145 / Annually
Driving Directions
41 to Kings Hwy to Rampart then left Capricorn then left on Zephyr Ct. lot is the empty lot right after the building when you turn left on Zyphyr!
Financial Considerations
Terms: Cash,Conventional
Tax/Property ID: 402307281004
Tax Amount: 1033.06
Tax Year: 2021
A broker reciprocity listing courtesy: CENTURY 21 SUNBELT REALTY
Based on information provided by Stellar MLS as distributed by the MLS GRID. Information from the Internet Data Exchange is provided exclusively for consumers’ personal, non-commercial use, and such information may not be used for any purpose other than to identify prospective properties consumers may be interested in purchasing. This data is deemed reliable but is not guaranteed to be accurate by Edina Realty, Inc., or by the MLS. Edina Realty, Inc., is not a multiple listing service (MLS), nor does it offer MLS access.
Copyright 2025 Stellar MLS as distributed by the MLS GRID. All Rights Reserved.
Payment Calculator
Interest rate and annual percentage rate (APR) are based on current market conditions, are for informational purposes only, are subject to change without notice and may be subject to pricing add-ons related to property type, loan amount, loan-to-value, credit score and other variables. Estimated closing costs used in the APR calculation are assumed to be paid by the borrower at closing. If the closing costs are financed, the loan, APR and payment amounts will be higher. If the down payment is less than 20%, mortgage insurance may be required and could increase the monthly payment and APR. Contact us for details. Additional loan programs may be available. Accuracy is not guaranteed, and all products may not be available in all borrower's geographical areas and are based on their individual situation. This is not a credit decision or a commitment to lend.
Sales History & Tax Summary for 24511 Zephyr Court
Sales History
| Date | Price | Change |
|---|---|---|
| Currently not available. | ||
Tax Summary
| Tax Year | Estimated Market Value | Total Tax |
|---|---|---|
| Currently not available. | ||
Data powered by ATTOM Data Solutions. Copyright© 2025. Information deemed reliable but not guaranteed.
Schools
Schools nearby 24511 Zephyr Court
| Schools in attendance boundaries | Grades | Distance | Rating |
|---|---|---|---|
| Loading... | |||
| Schools nearby | Grades | Distance | Rating |
|---|---|---|---|
| Loading... | |||
Data powered by ATTOM Data Solutions. Copyright© 2025. Information deemed reliable but not guaranteed.
The schools shown represent both the assigned schools and schools by distance based on local school and district attendance boundaries. Attendance boundaries change based on various factors and proximity does not guarantee enrollment eligibility. Please consult your real estate agent and/or the school district to confirm the schools this property is zoned to attend. Information is deemed reliable but not guaranteed.
SchoolDigger ® Rating
The SchoolDigger rating system is a 1-5 scale with 5 as the highest rating. SchoolDigger ranks schools based on test scores supplied by each state's Department of Education. They calculate an average standard score by normalizing and averaging each school's test scores across all tests and grades.
Coming soon properties will soon be on the market, but are not yet available for showings.