$419,000
2560 Baybreeze Street Saint James City, FL 33956
For Sale MLS# 225039744
0.23 Acres Lot/Land
Details for 2560 Baybreeze Street
MLS# 225039744
Description for 2560 Baybreeze Street, Saint James City, FL, 33956
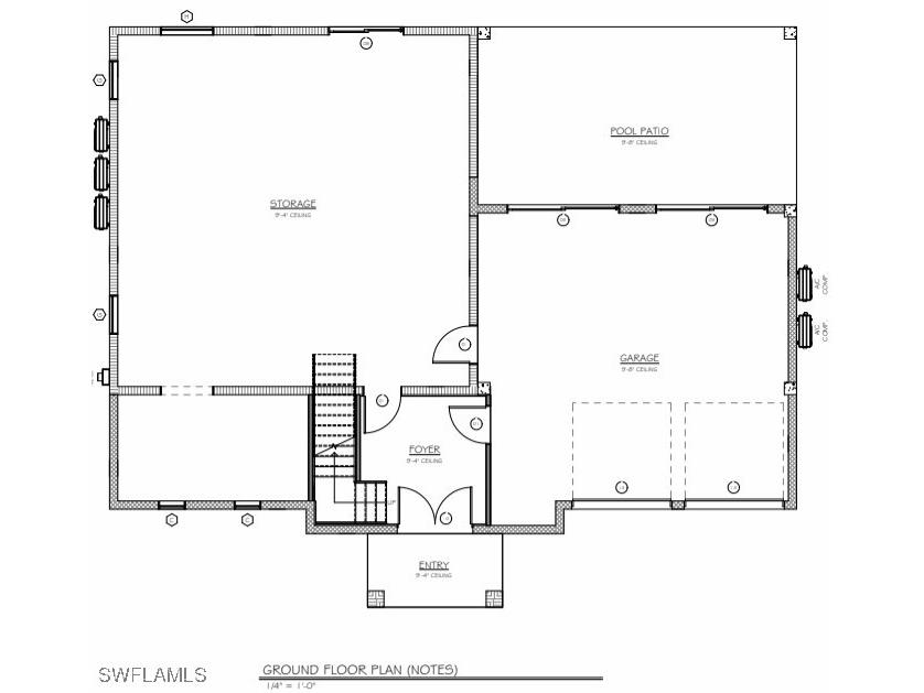
Remodel permit approved, all fees PAID. All a new owner needs to complete is an owner/builder affidavit with the building department or have your contractor provide their contractor information to the County. Pool permit in hand with Design Concepts! Took over a year to get the remodel permit. House is ready for complete transformation. Existing home requires remodel per building plan. The planned addition is to be built ON TOP of the existing concrete block walls. No expensive lifting of the house required. House is totally gutted and concrete cut and hammered out for new thickened footings. All that is left to do is remove the trusses and roof. Two existing boat lifts, one is 10,000 lb the other is 20,000 lb. Beautiful open floor plan with all vaulted ceilings. Modern design with old Florida appeal. 2,075 sq ft of finished space, two car garage and roughly 1,215 sq ft of flex space on lower level. Seller got tired of waiting for the permit and bought another one in the neighborhood. Pool design does not encroach under the house as shown in the renderings. A short 10 minute boat ride to open water via Philips canal. Situated in the heart of a golf cart-friendly community, this home offers easy access to nearby amenities, including a general store, local fish market, Galt Preserve, and St. Jude Nature Trail—all within golf cart distance in St. James City. The island is also home to several preserves, including the Calusa Heritage Trail and the Pine Island Sound Aquatic Preserve, perfect for nature enthusiasts. St. James City is alive with community spirit, featuring the Civic Association Park, which hosts a variety of events, including free afternoon concerts. There is no shortage of things to keep you occupied, with 18 miles of biking/walking paths, tennis and pickleball courts, heated community pool, and playground. Plus, you’ll find weekly live entertainment at several spots across the island, and fun tiki restaurants, creating an inviting and vibrant atmosphere. Short boating adventures out to Sanibel, Captiva, or Fort Myers Beach. Come experience the laid back island lifestyle you’ve been looking for!
Listing Information
Property Type: Lot/Land, Residential, Residential,Unimproved Land
Status: Active
Lot Size: 0.23 Acres
Construction Display: New Construction
Subdivision: St James City
Current Use: Single Family
County: Lee
Days On Market: 236
Construction Status: Building Permit,To Be Built
Utilities
Water: Public
Sewer: Septic Tank
Other Utilities: Cable Available,Electricity Available,Other,Trash Collection,Underground Utilities,Water Available
Exterior / Lot Features
Lot View: Canal
Lot Dimensions: 81 x 125 x 81 x 125
Zoning: RS-1
Additional Exterior/Lot Features: Rectangular Lot
Waterfront Details
Water Front Features: Canal Access
Community Features
Community Features: Boat Facilities
Driving Directions
From SW Pine Island Rd, go left on Stringfellow Rd to Sixth Ave, go left on Sixth Ave, then right on Baybreeze St, home is on your left.
Financial Considerations
Terms: All Financing Considered,Cash
Tax/Property ID: 02-46-22-08-0000C.0180
Tax Amount: 3153.51
Tax Year: 2024
A broker reciprocity listing courtesy: Calenda Real Estate Group
Based on information provided by FGCMLS. Internet Data Exchange information is provided exclusively for consumers’ personal, non-commercial use, and such information may not be used for any purpose other than to identify prospective properties consumers may be interested in purchasing. This data is deemed reliable but is not guaranteed to be accurate by Edina Realty, Inc., or by the MLS. Edina Realty, Inc., is not a multiple listing service (MLS), nor does it offer MLS access.
Copyright 2025 FGCMLS. All Rights Reserved.
Payment Calculator
Interest rate and annual percentage rate (APR) are based on current market conditions, are for informational purposes only, are subject to change without notice and may be subject to pricing add-ons related to property type, loan amount, loan-to-value, credit score and other variables. Estimated closing costs used in the APR calculation are assumed to be paid by the borrower at closing. If the closing costs are financed, the loan, APR and payment amounts will be higher. If the down payment is less than 20%, mortgage insurance may be required and could increase the monthly payment and APR. Contact us for details. Additional loan programs may be available. Accuracy is not guaranteed, and all products may not be available in all borrower's geographical areas and are based on their individual situation. This is not a credit decision or a commitment to lend.
Sales History & Tax Summary for 2560 Baybreeze Street
Sales History
| Date | Price | Change |
|---|---|---|
| Currently not available. | ||
Tax Summary
| Tax Year | Estimated Market Value | Total Tax |
|---|---|---|
| Currently not available. | ||
Data powered by ATTOM Data Solutions. Copyright© 2025. Information deemed reliable but not guaranteed.
Schools
Schools nearby 2560 Baybreeze Street
| Schools in attendance boundaries | Grades | Distance | Rating |
|---|---|---|---|
| Loading... | |||
| Schools nearby | Grades | Distance | Rating |
|---|---|---|---|
| Loading... | |||
Data powered by ATTOM Data Solutions. Copyright© 2025. Information deemed reliable but not guaranteed.
The schools shown represent both the assigned schools and schools by distance based on local school and district attendance boundaries. Attendance boundaries change based on various factors and proximity does not guarantee enrollment eligibility. Please consult your real estate agent and/or the school district to confirm the schools this property is zoned to attend. Information is deemed reliable but not guaranteed.
SchoolDigger ® Rating
The SchoolDigger rating system is a 1-5 scale with 5 as the highest rating. SchoolDigger ranks schools based on test scores supplied by each state's Department of Education. They calculate an average standard score by normalizing and averaging each school's test scores across all tests and grades.
Coming soon properties will soon be on the market, but are not yet available for showings.