$47,900
2900 Yvonne Avenue S Lehigh Acres, FL 33976
For Sale MLS# 2025018111
0.27 Acres Lot/Land
Details for 2900 Yvonne Avenue S
MLS# 2025018111
Description for 2900 Yvonne Avenue S, Lehigh Acres, FL, 33976
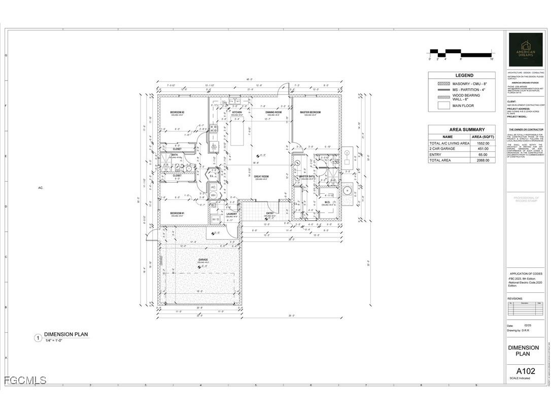
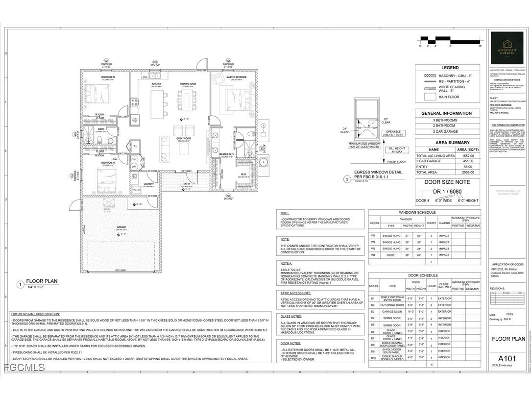
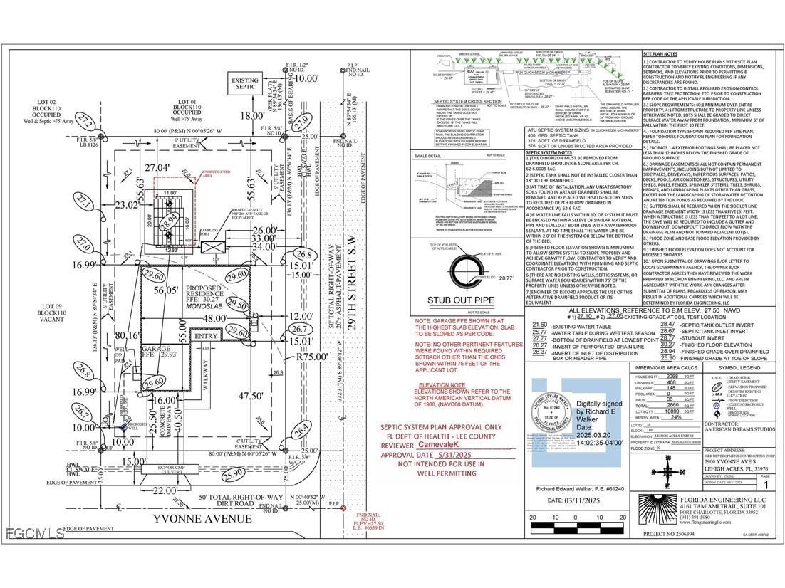
What truly sets this property apart is that it includes advanced planning and development work for a contemporary style home, saving the buyer months of paperwork, upfront costs, and administrative risk. The package includes: Complete architectural design for a contemporary 2,068 sq ft home with 3 BEDROOMS, 2 FULL BATHROOMS, and a 2-CAR GARAGE + Completed topographic survey, ready for immediate use + Approved floor plans, ready to proceed with final permitting + Approved SEPTIC SYSTEM design, including the AEROBIC TREATMENT UNIT, meeting all current county requirements. No trees to remove. Compared to other raw lots in the area, this parcel offers substantial savings in technical studies, engineering, design work, and permitting time, which fully justifies its higher market value. This property is READY to build. Located in a rapidly growing area, 33976 is one of the most sought-after areas in Lehigh Acres.
Listing Information
Property Type: Lot/Land, Residential, Residential,Unimproved Land
Status: Active
Lot Size: 0.27 Acres
Subdivision: Lehigh Acres
Current Use: Single Family
County: Lee
Days On Market: 40
Utilities
Sewer: Septic Tank
Other Utilities: None,Water Not Available
Exterior / Lot Features
Lot Dimensions: 85 x 135 x 85 x 135
Zoning: RS-1
Additional Exterior/Lot Features: Corner Lot
Financial Considerations
Terms: Cash
Tax/Property ID: 03-45-26-12-00110.0100
Tax Amount: 473.83
Tax Year: 2024
A broker reciprocity listing courtesy: K & A Realty
Based on information provided by FGCMLS. Internet Data Exchange information is provided exclusively for consumers’ personal, non-commercial use, and such information may not be used for any purpose other than to identify prospective properties consumers may be interested in purchasing. This data is deemed reliable but is not guaranteed to be accurate by Edina Realty, Inc., or by the MLS. Edina Realty, Inc., is not a multiple listing service (MLS), nor does it offer MLS access.
Copyright 2025 FGCMLS. All Rights Reserved.
Payment Calculator
Interest rate and annual percentage rate (APR) are based on current market conditions, are for informational purposes only, are subject to change without notice and may be subject to pricing add-ons related to property type, loan amount, loan-to-value, credit score and other variables. Estimated closing costs used in the APR calculation are assumed to be paid by the borrower at closing. If the closing costs are financed, the loan, APR and payment amounts will be higher. If the down payment is less than 20%, mortgage insurance may be required and could increase the monthly payment and APR. Contact us for details. Additional loan programs may be available. Accuracy is not guaranteed, and all products may not be available in all borrower's geographical areas and are based on their individual situation. This is not a credit decision or a commitment to lend.
Sales History & Tax Summary for 2900 Yvonne Avenue S
Sales History
| Date | Price | Change |
|---|---|---|
| Currently not available. | ||
Tax Summary
| Tax Year | Estimated Market Value | Total Tax |
|---|---|---|
| Currently not available. | ||
Data powered by ATTOM Data Solutions. Copyright© 2025. Information deemed reliable but not guaranteed.
Schools
Schools nearby 2900 Yvonne Avenue S
| Schools in attendance boundaries | Grades | Distance | Rating |
|---|---|---|---|
| Loading... | |||
| Schools nearby | Grades | Distance | Rating |
|---|---|---|---|
| Loading... | |||
Data powered by ATTOM Data Solutions. Copyright© 2025. Information deemed reliable but not guaranteed.
The schools shown represent both the assigned schools and schools by distance based on local school and district attendance boundaries. Attendance boundaries change based on various factors and proximity does not guarantee enrollment eligibility. Please consult your real estate agent and/or the school district to confirm the schools this property is zoned to attend. Information is deemed reliable but not guaranteed.
SchoolDigger ® Rating
The SchoolDigger rating system is a 1-5 scale with 5 as the highest rating. SchoolDigger ranks schools based on test scores supplied by each state's Department of Education. They calculate an average standard score by normalizing and averaging each school's test scores across all tests and grades.
Coming soon properties will soon be on the market, but are not yet available for showings.