$699,900
3209 W Bay Vista Avenue Tampa, FL 33611
For Sale MLS# TB8474198
0.23 Acres Lot/Land
Details for 3209 W Bay Vista Avenue
MLS# TB8474198
Description for 3209 W Bay Vista Avenue, Tampa, FL, 33611
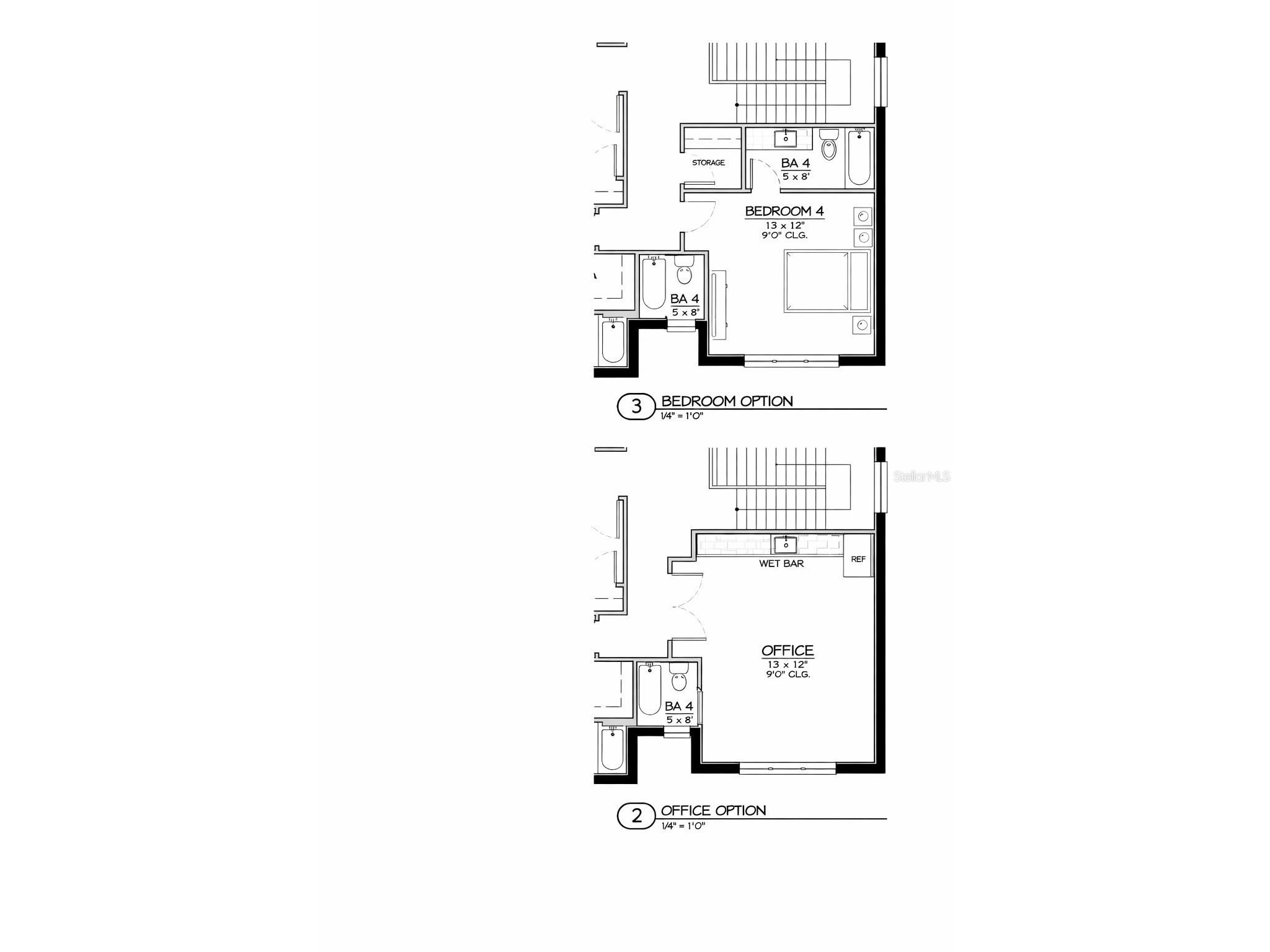
A home is currently being permitted for this property. Wonderful location with direct proximity to Crosstown, but serene enough to enjoy your backyard & secluded pond. Situated in the City of Tampa, this unique homesite offers a rare blend of convenience and privacy — providing easy access to major roadways, downtown Tampa, shopping, dining, and entertainment while maintaining a peaceful natural setting. The property backs to a secluded pond, meaning no backyard neighbors — just tranquil water views, natural surroundings, and added privacy to enjoy your outdoor space without interruption. Property lines extend into the water, enhancing the sense of space and creating a distinctive waterfront setting, while the upland portion of the property is approximately 56' x 117'. This provides a thoughtfully sized building envelope with unique natural surroundings. Whether you’re looking to build your dream residence or invest in a thoughtfully planned project already in progress, this property presents an exceptional opportunity. With permitting underway, much of the groundwork has already begun, allowing you to move forward with confidence toward creating a custom home tailored to modern living. Call Agent now to get information on floorplans and permitting progress. Don’t miss the chance to secure a distinctive piece of Tampa real estate where location, lifestyle, and potential come together.
Listing Information
Property Type: Lot/Land, Residential
Status: Active
Lot Size: 0.23 Acres
Subdivision: Boulevard Heights 2
Current Use: Residential,Single Family
County: Hillsborough
Utilities
Water: Public
Sewer: Public Sewer
Other Utilities: Sewer Available,Water Available
Exterior / Lot Features
Lot View: Pond,Water
Lot Dimensions: 56x120
Waterfront Details
Water Front Features: Pond
Driving Directions
Head east on Euclid, south on Lynwood east on Bay Vista
Financial Considerations
Tax/Property ID: A-03-30-18-3VH-000000-0017B.0
Tax Amount: 7198.44
Tax Year: 2024
A broker reciprocity listing courtesy: SCHMIDT REAL ESTATE, INC.
Based on information provided by Stellar MLS as distributed by the MLS GRID. Information from the Internet Data Exchange is provided exclusively for consumers’ personal, non-commercial use, and such information may not be used for any purpose other than to identify prospective properties consumers may be interested in purchasing. This data is deemed reliable but is not guaranteed to be accurate by Edina Realty, Inc., or by the MLS. Edina Realty, Inc., is not a multiple listing service (MLS), nor does it offer MLS access.
Copyright 2026 Stellar MLS as distributed by the MLS GRID. All Rights Reserved.
Payment Calculator
Interest rate and annual percentage rate (APR) are based on current market conditions, are for informational purposes only, are subject to change without notice and may be subject to pricing add-ons related to property type, loan amount, loan-to-value, credit score and other variables. Estimated closing costs used in the APR calculation are assumed to be paid by the borrower at closing. If the closing costs are financed, the loan, APR and payment amounts will be higher. If the down payment is less than 20%, mortgage insurance may be required and could increase the monthly payment and APR. Contact us for details. Additional loan programs may be available. Accuracy is not guaranteed, and all products may not be available in all borrower's geographical areas and are based on their individual situation. This is not a credit decision or a commitment to lend.
Sales History & Tax Summary for 3209 W Bay Vista Avenue
Sales History
| Date | Price | |
|---|---|---|
| Currently not available. | ||
Tax Summary
| Tax Year | Estimated Market Value | Total Tax |
|---|---|---|
| Currently not available. | ||
Data powered by ATTOM Data Solutions. Copyright© 2026. Information deemed reliable but not guaranteed.
Schools
Schools nearby 3209 W Bay Vista Avenue
| Schools in attendance boundaries | Grades | Distance | Rating |
|---|---|---|---|
| Loading... | |||
| Schools nearby | Grades | Distance | Rating |
|---|---|---|---|
| Loading... | |||
Data powered by ATTOM Data Solutions. Copyright© 2026. Information deemed reliable but not guaranteed.
The schools shown represent both the assigned schools and schools by distance based on local school and district attendance boundaries. Attendance boundaries change based on various factors and proximity does not guarantee enrollment eligibility. Please consult your real estate agent and/or the school district to confirm the schools this property is zoned to attend. Information is deemed reliable but not guaranteed.
SchoolDigger ® Rating
The SchoolDigger rating system is a 1-5 scale with 5 as the highest rating. SchoolDigger ranks schools based on test scores supplied by each state's Department of Education. They calculate an average standard score by normalizing and averaging each school's test scores across all tests and grades.
Coming soon properties will soon be on the market, but are not yet available for showings.