$795,900
4155 Marsh Road Deland, FL 32724
For Sale MLS# V4948296
9.80 Acres Lot/Land
Details for 4155 Marsh Road
MLS# V4948296
Description for 4155 Marsh Road, Deland, FL, 32724
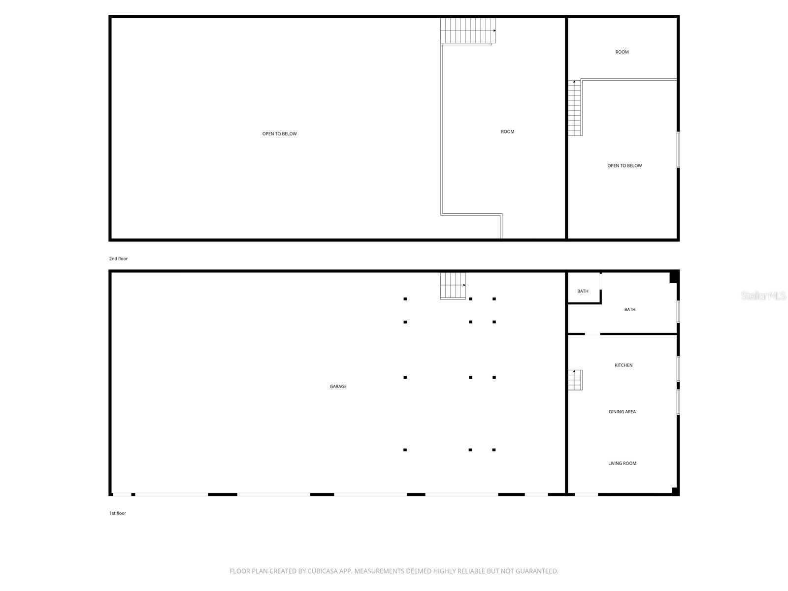
PRIVATE 9.86-ACRE COUNTRY RETREAT WITH MASSIVE STEEL BUILDING + LIVING QUARTERS! Bring your horses, cows, RV, and all your toys—this nearly 10-acre, fully fenced and cross-fenced property offers the space, privacy, and flexibility you’ve been looking for! The centerpiece is an impressive 40x100 insulated steel building featuring (3) 12-ft roll-up doors and a 13-ft sliding door, plus a 6" concrete floor—perfect for equipment, hobbies, or a workshop. Above, a HUGE loft provides exceptional storage, and out front you’ll find a massive 100x20 concrete pad ideal for additional parking or workspace. Live comfortably while you build your dream home! The property includes a move-in ready apartment with full kitchen, bathroom, and washer/dryer—perfect for immediate use or guest quarters. Additional features include:Solar-powered electric gate for secure entry; Private well (no water bill!); Two large fuel tanks for farm equipment; Metal carport—perfect for a boat or RV; Detached 20x12 storage building; Shelving in main building INCLUDED! Enjoy the peace and beauty of this secluded, tree-filled property with gorgeous magnolias and room to roam. BONUS: Ranger/Polaris conveys with purchase—explore your land in style! Prime DeLand location on Marsh Rd: Just 20 minutes to Daytona Beach; Only 10 minutes to I-4 for easy access to Sanford & Orlando. This is a rare opportunity to own a versatile, ready-to-use property with endless potential—farm, homestead, business, or build your dream estate!
Listing Information
Property Type: Lot/Land, Agriculture
Status: Active
Lot Size: 9.80 Acres
Current Use: Agricultural
County: Volusia
Utilities
Water: Well
Sewer: Septic Tank
Other Utilities: Electricity Available,Water Available
Exterior / Lot Features
Lot Dimensions: 330x1815
Fencing: Wood, fenced, Cross Fenced
Additional Exterior/Lot Features: Trees
Driving Directions
Hwy 92 to North on Marsh Rd. Property on Right. Gated.
Financial Considerations
Terms: Cash,Conventional
Tax/Property ID: 6014-00-00-0116
Tax Amount: 6406
Tax Year: 2025
A broker reciprocity listing courtesy: CHARLES RUTENBERG REALTY ORLANDO
Based on information provided by Stellar MLS as distributed by the MLS GRID. Information from the Internet Data Exchange is provided exclusively for consumers’ personal, non-commercial use, and such information may not be used for any purpose other than to identify prospective properties consumers may be interested in purchasing. This data is deemed reliable but is not guaranteed to be accurate by Edina Realty, Inc., or by the MLS. Edina Realty, Inc., is not a multiple listing service (MLS), nor does it offer MLS access.
Copyright 2026 Stellar MLS as distributed by the MLS GRID. All Rights Reserved.
Payment Calculator
Interest rate and annual percentage rate (APR) are based on current market conditions, are for informational purposes only, are subject to change without notice and may be subject to pricing add-ons related to property type, loan amount, loan-to-value, credit score and other variables. Estimated closing costs used in the APR calculation are assumed to be paid by the borrower at closing. If the closing costs are financed, the loan, APR and payment amounts will be higher. If the down payment is less than 20%, mortgage insurance may be required and could increase the monthly payment and APR. Contact us for details. Additional loan programs may be available. Accuracy is not guaranteed, and all products may not be available in all borrower's geographical areas and are based on their individual situation. This is not a credit decision or a commitment to lend.
Sales History & Tax Summary for 4155 Marsh Road
Sales History
| Date | Price | |
|---|---|---|
| Currently not available. | ||
Tax Summary
| Tax Year | Estimated Market Value | Total Tax |
|---|---|---|
| Currently not available. | ||
Data powered by ATTOM Data Solutions. Copyright© 2026. Information deemed reliable but not guaranteed.
Schools
Schools nearby 4155 Marsh Road
| Schools in attendance boundaries | Grades | Distance | Rating |
|---|---|---|---|
| Loading... | |||
| Schools nearby | Grades | Distance | Rating |
|---|---|---|---|
| Loading... | |||
Data powered by ATTOM Data Solutions. Copyright© 2026. Information deemed reliable but not guaranteed.
The schools shown represent both the assigned schools and schools by distance based on local school and district attendance boundaries. Attendance boundaries change based on various factors and proximity does not guarantee enrollment eligibility. Please consult your real estate agent and/or the school district to confirm the schools this property is zoned to attend. Information is deemed reliable but not guaranteed.
SchoolDigger ® Rating
The SchoolDigger rating system is a 1-5 scale with 5 as the highest rating. SchoolDigger ranks schools based on test scores supplied by each state's Department of Education. They calculate an average standard score by normalizing and averaging each school's test scores across all tests and grades.
Coming soon properties will soon be on the market, but are not yet available for showings.